江東区大島7丁目 中古一戸建て 2122 成約済み(2122)

  • 総合トップ
  • 中古マンション
  • 一戸建て・土地
  • 投資・収益物件
  • 売りたい[売却査定]
  • 貸したい[賃料査定]

江東区大島7丁目 中古一戸建て 成約済み(2122)

恵比寿不動産の強み

こちらの物件は既に成約済みです。

物件検索より最新の物件をお探しください。

  • 一戸建て
価格
***
毎月の返済額
(目安)
loansimulationIcon
土地面積 51.50m2(約15.58坪)
建物面積 82.65m2(約25坪)
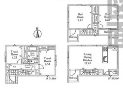
築年月 2005年3月 間取り 2SLDK
建ぺい率 60% 容積率 300%
所在地
交通

「大島」駅徒歩5分!2SLDK+カースペース

【特徴・設備】
■都営新宿線「大島」駅 徒歩5分
■江東区大島アドレス
■JR総武線「亀戸」駅までも徒歩20分の徒歩圏内。
■2SLDKの間取り!1階サービスルームは広さもあります!
■前面道路は通り抜けのない私道であり、プライベートな空間です。
■サンロード中の橋商店街まで徒歩1分!お買い物に便利です。

2冠達成 恵比寿不動産は物件数No.1 中古マンション数No.1

物件概要

物件名 江東区大島7丁目 中古一戸建て
種別 一戸建て
所在地
交通
問合せ番号 2122
価格 *** 借地料 ***円
借地期間 - その他費用 ***円
土地面積 51.50m2(約15.58坪) 建物面積 82.65m2(約25坪)
バルコニー面積 - 庭面積 -
構造 木造 総階数 地上3階
築年月 2005年3月 間取り 2SLDK
方角 駐車場
土地権利 所有権 用途地域 準工業地域
地目 宅地 私道負担 44.35㎡
セットバック - 建ぺい率 60%
容積率 300% 接道状況 北側 約2.0m 私道
都市計画 市街化区域 国土法届出 -
建築条件 - 取引態様 仲介
小学校学区 - 周辺情報 -
現況 成約済 引渡し ***
更新日 2025年9月3日

備考

設備/公営水道・本下水・都市ガス
前面道路は所有権持ち分あり。

条件

  • 小学校まで徒歩10分以内
  • スーパーまで徒歩5分以内
  • TVドアホン
  • 駐車場付き
  • 独立洗面台
  • 温水洗浄便座
  • システムキッチン
  • ガスコンロ
  • フローリング
  • バス・トイレ別

周辺地図

※建物周辺情報はGoogleMapを使用しており、実際とは若干異なる場合がございます。

掲載情報について

  • ※本掲載情報と現況に差異がある場合、現況を優先いたします。
  • ※掲載物件は売却済あるいは売出中止となる場合もあります。
  • ※掲載写真やパース(絵)、または間取図に描かれている家具や車などは、価格に含まれておりません。また、過去に撮影したものをそのまま利用している場合があり、名称・外観・背景等、実際のものとは異なる場合がございます。予めご了承ください。
  • ※仲介物件には所定の仲介手数料(消費税等相当額を含みます)が必要です。
2冠達成 恵比寿不動産は物件数No.1 中古マンション数No.1