「下神明」駅徒歩7分!5K+車庫
【特徴・設備】
■東急大井町線「下神明」駅 徒歩7分
■品川区西品川アドレス
■東京駅まで乗車約30分とアクセス良好◎
■公園が多く点在する、みどり豊かな住環境◎
■日当たりや風通しが良い庭付物件
■大型収納スペースを完備

| 価格 | 2億4,100万円 |
毎月の返済額 (目安) |
|
|---|---|---|---|
| 土地面積 | 186.34m2(約56.37坪) | ||
| 建物面積 | 106.25m2(約32.14坪) | ||
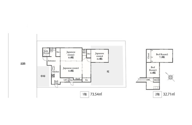
| 築年月 | 1954年4月 | 間取り | 5K |
| 建ぺい率 | 60% | 容積率 | 200% |
| 所在地 | 東京都品川区西品川2 | ||
| 交通 |
東急大井町線「下神明駅」徒歩7分 JR山手線「大崎駅」徒歩13分 | ||
【特徴・設備】
■東急大井町線「下神明」駅 徒歩7分
■品川区西品川アドレス
■東京駅まで乗車約30分とアクセス良好◎
■公園が多く点在する、みどり豊かな住環境◎
■日当たりや風通しが良い庭付物件
■大型収納スペースを完備

| 物件名 | 品川区西品川2丁目 中古一戸建て | ||
|---|---|---|---|
| 種別 | 一戸建て | ||
| 所在地 | 東京都品川区西品川2 | ||
| 交通 |
東急大井町線「下神明駅」徒歩7分 JR山手線「大崎駅」徒歩13分 |
||
| 問合せ番号 | 2200 | ||
| 価格 | 2億4,100万円 | 借地料 | - |
| 借地期間 | - | その他費用 | - |
| 土地面積 | 186.34m2(約56.37坪) | 建物面積 | 106.25m2(約32.14坪) |
| バルコニー面積 | - | 庭面積 | - |
| 構造 | 木造 | 総階数 | 地上2階 |
| 築年月 | 1954年4月 | 間取り | 5K |
| 方角 | 南東 | 駐車場 | - |
| 土地権利 | 所有権 | 用途地域 | 第一種住居地域 |
| 地目 | 宅地 | 私道負担 | - |
| セットバック | - | 建ぺい率 | 60% |
| 容積率 | 200% | 接道状況 | 北西側 公道 |
| 都市計画 | 市街化区域 | 国土法届出 | - |
| 建築条件 | - | 取引態様 | 仲介 |
| 小学校学区 | 三木小学校 | 周辺情報 | - |
| 現況 | 居住中 | 引渡し | 相談 |
| 更新日 | 2025年12月8日 | ||
| 頭金 |
|
|---|---|
| 金利 |
|
| 返済年数 | 年 |
※建物周辺情報はGoogleMapを使用しており、実際とは若干異なる場合がございます。
掲載情報について

物件写真 物件画像1