江東区千石2丁目 土地 2367 成約済み(2367)

  • 総合トップ
  • 中古マンション
  • 一戸建て・土地
  • 投資・収益物件
  • 売りたい[売却査定]
  • 貸したい[賃料査定]

江東区千石2丁目 土地 成約済み(2367)

恵比寿不動産の強み

こちらの物件は既に成約済みです。

物件検索より最新の物件をお探しください。

  • 一戸建て
価格
***
毎月の返済額
(目安)
loansimulationIcon
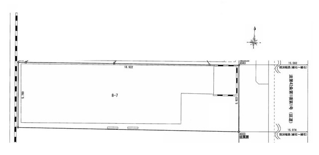
土地面積 110.90m2(約33.55坪)
建物面積 -
築年月 - 間取り -
建ぺい率 60% 容積率 300%
所在地
交通

「東陽町」駅 徒歩13分!約33坪の土地

【特徴・設備】
■東西線「東陽町」駅 徒歩13分
■江東区千石アドレス
■2030年代半ば開業予定「千石」駅 徒歩3分
■東側前面道路15m、陽当たり良好
■戸建・マンション用地に最適
■現況/更地(引渡し即時)

2冠達成 恵比寿不動産は物件数No.1 中古マンション数No.1

物件概要

物件名 江東区千石2丁目 土地
種別 一戸建て
所在地
交通
問合せ番号 2367
価格 *** 借地料 ***円
借地期間 - その他費用 ***円
土地面積 110.90m2(約33.55坪) 建物面積 -
バルコニー面積 - 庭面積 -
構造 - 総階数 -
築年月 - 間取り -
方角 - 駐車場 -
土地権利 所有権 用途地域 準工業地域
地目 宅地 私道負担 -
セットバック - 建ぺい率 60%
容積率 300% 接道状況 東側 約15.0m 公道 接面 約5.9m
都市計画 市街化区域 国土法届出 -
建築条件 - 取引態様 仲介
小学校学区 - 周辺情報 -
現況 成約済 引渡し ***
更新日 2025年11月6日

備考

条件

  • 平坦地
  • 整形地
  • 小学校まで徒歩10分以内
  • 公園まで徒歩5分以内
  • 補修・保証サービス
  • 前面道路幅員6m以上
  • 建築条件なし

周辺地図

※建物周辺情報はGoogleMapを使用しており、実際とは若干異なる場合がございます。

掲載情報について

  • ※本掲載情報と現況に差異がある場合、現況を優先いたします。
  • ※掲載物件は売却済あるいは売出中止となる場合もあります。
  • ※掲載写真やパース(絵)、または間取図に描かれている家具や車などは、価格に含まれておりません。また、過去に撮影したものをそのまま利用している場合があり、名称・外観・背景等、実際のものとは異なる場合がございます。予めご了承ください。
  • ※仲介物件には所定の仲介手数料(消費税等相当額を含みます)が必要です。
2冠達成 恵比寿不動産は物件数No.1 中古マンション数No.1

最近見た物件

杉並区宮前4丁目 土地 成約済み(2439) 最近見た物件画像

杉並区宮前4丁目 土地 成約済み(2439)

  • ***
  • 東京都杉並区宮前4
  • 京王井の頭線「久我山駅」徒歩11分
    JR中央・総武線「西荻窪駅」徒歩25分
  • 土地面積 231.93m2(約70.16坪)(公簿)
  • 建物面積 -
  • -
世田谷区祖師谷6丁目 新築一戸建て 2号棟 成約済み(2441) 最近見た物件画像

世田谷区祖師谷6丁目 新築一戸建て 2号棟 成約済み(2441)

  • ***
  • 東京都世田谷区祖師谷6
  • 京王線「千歳烏山駅」徒歩19分
    小田急線「祖師ヶ谷大蔵駅」徒歩23分
  • 土地面積 124.25m2(約37.59坪)
  • 建物面積 -
  • 2025年9月