「新高円寺」駅 徒歩20分!3LDK+ロフト
【特徴・設備】
■東京メトロ丸ノ内線「新高円寺」駅 徒歩20分
■杉並区松ノ木アドレス
■リフォーム済み
■システムキッチン・ビルトインガスコンロ
■温水洗浄便座・追い焚き・洗面台・ビルトインガレージ
■設備/東京電力・東京ガス・公営水道・公共下水(私設管)
【リフォーム内容】
□洗面化粧台・エアコン・一部壁面塗装
□クロス戸張替・各部屋壁天井クロス張替

| 価格 | 4,200万円 |
毎月の返済額 (目安) |
|
|---|---|---|---|
| 土地面積 | 42.87m2(約12.97坪) | ||
| 建物面積 | 68.03m2(約20.58坪) | ||
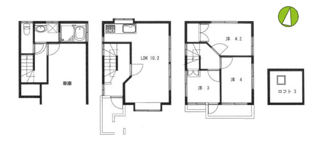
| 築年月 | 1989年8月 | 間取り | 3LDK+ロフト |
| 建ぺい率 | 50% | 容積率 | 100% |
| 所在地 | 東京都杉並区松ノ木1 | ||
| 交通 | 東京メトロ丸ノ内線「新高円寺駅」徒歩20分 | ||
【特徴・設備】
■東京メトロ丸ノ内線「新高円寺」駅 徒歩20分
■杉並区松ノ木アドレス
■リフォーム済み
■システムキッチン・ビルトインガスコンロ
■温水洗浄便座・追い焚き・洗面台・ビルトインガレージ
■設備/東京電力・東京ガス・公営水道・公共下水(私設管)
【リフォーム内容】
□洗面化粧台・エアコン・一部壁面塗装
□クロス戸張替・各部屋壁天井クロス張替

| 物件名 | 杉並区松ノ木1丁目 中古一戸建て | ||
|---|---|---|---|
| 種別 | 一戸建て | ||
| 所在地 | 東京都杉並区松ノ木1 | ||
| 交通 |
東京メトロ丸ノ内線「新高円寺駅」徒歩20分 |
||
| 問合せ番号 | 2584 | ||
| 価格 | 4,200万円 | 借地料 | - |
| 借地期間 | - | その他費用 | - |
| 土地面積 | 42.87m2(約12.97坪) | 建物面積 | 68.03m2(約20.58坪) |
| バルコニー面積 | - | 庭面積 | - |
| 構造 | 木造 | 総階数 | - |
| 築年月 | 1989年8月 | 間取り | 3LDK |
| 方角 | 南 | 駐車場 | 有 |
| 土地権利 | 所有権 | 用途地域 | 第一種低層住居専用地域 |
| 地目 | 宅地 | 私道負担 | - |
| セットバック | - | 建ぺい率 | 50% |
| 容積率 | 100% | 接道状況 | 南側 約4.0m 私道 |
| 都市計画 | 市街化区域 | 国土法届出 | - |
| 建築条件 | - | 取引態様 | 仲介 |
| 小学校学区 | - | 周辺情報 | - |
| 現況 | 空家 | 引渡し | 相談 |
| 更新日 | 2025年12月18日 | ||
和田堀風致地区
西側隣家と基礎が一体となっているため、再建築の場合は西側隣家所有者との協議、承諾等が必要となります。※ニチガス契約継承
| 頭金 |
|
|---|---|
| 金利 |
|
| 返済年数 | 年 |
※建物周辺情報はGoogleMapを使用しており、実際とは若干異なる場合がございます。
掲載情報について

物件写真 物件画像1