【2020/11/3 価格改定】4,380万円→3,980万円 東急目黒線「洗足」駅徒歩7分の閑静な住宅街に立地する、駐車場付き中古一戸建て。
【特徴・設備】
■システムキッチン
■コンロ3口
■駐車場付き
■南道路につき日当たり良好

物件検索より最新の物件をお探しください。
| 価格 | ***万円 |
毎月の返済額 (目安) |
|
|---|---|---|---|
| 土地面積 | 49.79m2(約15.06坪) | ||
| 建物面積 | 84.80m2(約25.65坪) | ||
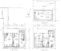
| 築年月 | 1995年8月 | 間取り | 4DK |
| 建ぺい率 | 50% | 容積率 | 100% |
| 所在地 | 東京都品川区荏原7 | ||
| 交通 | 東急目黒線「洗足駅」徒歩7分 | ||
【特徴・設備】
■システムキッチン
■コンロ3口
■駐車場付き
■南道路につき日当たり良好

| 物件名 | 品川区荏原7丁目 中古一戸建て | ||
|---|---|---|---|
| 種別 | 一戸建て | ||
| 所在地 | 東京都品川区荏原7 | ||
| 交通 |
東急目黒線「洗足駅」徒歩7分 |
||
| 問合せ番号 | 88 | ||
| 価格 | ***万円 | 借地料 | ***円 |
| 借地期間 | - | その他費用 | ***円 |
| 土地面積 | 49.79m2(約15.06坪) | 建物面積 | 84.80m2(約25.65坪) |
| バルコニー面積 | - | 庭面積 | - |
| 構造 | 木造 | 総階数 | 地上2階 地下1階 |
| 築年月 | 1995年8月 | 間取り | 4DK |
| 方角 | 南 | 駐車場 | 有り |
| 土地権利 | 所有権 | 用途地域 | 第一種低層住居専用地域 |
| 地目 | 宅地 | 私道負担 | - |
| セットバック | 42条2項によるセットバック(約2.71㎡ 持分1/1) | 建ぺい率 | 50% |
| 容積率 | 100% | 接道状況 | 私道 幅員約4m 接道約4.4m |
| 都市計画 | - | 国土法届出 | - |
| 建築条件 | - | 取引態様 | 仲介 |
| 小学校学区 | 第二延山小学校 | 周辺情報 | - |
| 現況 | 成約済 | 引渡し | *** |
| 更新日 | 2021年1月29日 | ||
※建物周辺情報はGoogleMapを使用しており、実際とは若干異なる場合がございます。
掲載情報について

間取り