世田谷区祖師谷1丁目 土地 1号棟 1120 成約済み(1120)

  • 総合トップ
  • 中古マンション
  • 一戸建て・土地
  • 投資・収益物件
  • 売りたい[売却査定]
  • 貸したい[賃料査定]

世田谷区祖師谷1丁目 土地 1号棟 成約済み(1120)

恵比寿不動産の強み

こちらの物件は既に成約済みです。

物件検索より最新の物件をお探しください。

  • 土地
価格
***
毎月の返済額
(目安)
loansimulationIcon
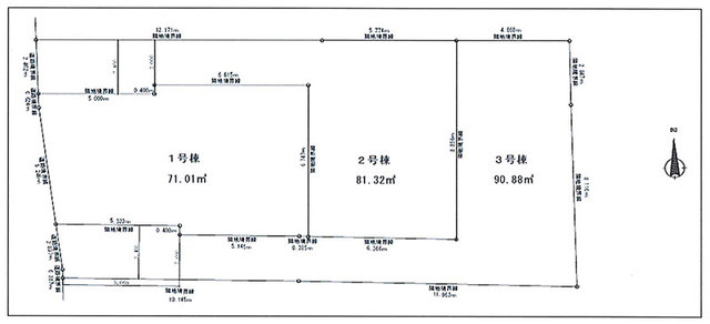
土地面積 71.00m2(約21.48坪)(実測)
建物面積 -
築年月 - 間取り -
建ぺい率 60% 容積率 150%
所在地
交通

閑静な住宅街(祖師ヶ谷大蔵駅)約21坪の土地

【特徴・設備】
■小田急線「祖師ヶ谷大蔵」駅徒歩6分
■世田谷区祖師谷アドレス
■閑静な住宅街(低層住宅専用地域)
■東京電力、都市ガス、公共上下水
■建築条件あり
■現状/更地

2冠達成 恵比寿不動産は物件数No.1 中古マンション数No.1

物件概要

物件名 世田谷区祖師谷1丁目 土地 1号棟
種別 土地
所在地
交通
問合せ番号 1120
価格 *** 借地料 ***円
借地期間 - その他費用 ***円
土地面積 71.00m2(約21.48坪)(実測) 建物面積 -
バルコニー面積 - 庭面積 -
構造 - 総階数 -
築年月 - 間取り -
方角 - 駐車場 -
土地権利 所有権 用途地域 第一種低層住居専用地域
地目 宅地 私道負担 -
セットバック - 建ぺい率 60%
容積率 150% 接道状況 西側 4.0m 公道 接面 約5.8m (道路幅員 約3.8m)
都市計画 市街化区域 国土法届出 -
建築条件 あり 取引態様 仲介
小学校学区 祖師谷小学校 周辺情報 -
現況 成約済 引渡し ***
更新日 2023年11月23日

備考

引渡時期/2024年6月下旬以降

条件

  • 低層住居専用地域
  • 小学校まで徒歩10分以内

周辺地図

※建物周辺情報はGoogleMapを使用しており、実際とは若干異なる場合がございます。

掲載情報について

  • ※本掲載情報と現況に差異がある場合、現況を優先いたします。
  • ※掲載物件は売却済あるいは売出中止となる場合もあります。
  • ※掲載写真やパース(絵)、または間取図に描かれている家具や車などは、価格に含まれておりません。また、過去に撮影したものをそのまま利用している場合があり、名称・外観・背景等、実際のものとは異なる場合がございます。予めご了承ください。
  • ※仲介物件には所定の仲介手数料(消費税等相当額を含みます)が必要です。
2冠達成 恵比寿不動産は物件数No.1 中古マンション数No.1