閑静な住宅街(祖師ヶ谷大蔵駅)約27坪の土地
【特徴・設備】
■小田急線「祖師ヶ谷大蔵」駅徒歩6分
■世田谷区祖師谷アドレス
■閑静な住宅街(低層住宅専用地域)
■東京電力、都市ガス、公共上下水
■建築条件あり
■現状/更地

物件検索より最新の物件をお探しください。
| 価格 | ***万円 |
毎月の返済額 (目安) |
|
|---|---|---|---|
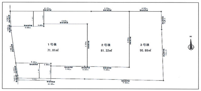
| 土地面積 | 90.80m2(約27.47坪)(実測) | ||
| 建物面積 | - | ||
| 築年月 | - | 間取り | - |
| 建ぺい率 | 60% | 容積率 | 150% |
| 所在地 | 東京都世田谷区祖師谷1 | ||
| 交通 | 小田急線「祖師ヶ谷大蔵駅」徒歩6分 | ||
【特徴・設備】
■小田急線「祖師ヶ谷大蔵」駅徒歩6分
■世田谷区祖師谷アドレス
■閑静な住宅街(低層住宅専用地域)
■東京電力、都市ガス、公共上下水
■建築条件あり
■現状/更地

| 物件名 | 世田谷区祖師谷1丁目 土地 3号棟 | ||
|---|---|---|---|
| 種別 | 土地 | ||
| 所在地 | 東京都世田谷区祖師谷1 | ||
| 交通 |
小田急線「祖師ヶ谷大蔵駅」徒歩6分 |
||
| 問合せ番号 | 1123 | ||
| 価格 | ***万円 | 借地料 | ***円 |
| 借地期間 | - | その他費用 | ***円 |
| 土地面積 | 90.80m2(約27.47坪)(実測) | 建物面積 | - |
| バルコニー面積 | - | 庭面積 | - |
| 構造 | - | 総階数 | - |
| 築年月 | - | 間取り | - |
| 方角 | - | 駐車場 | - |
| 土地権利 | 所有権 | 用途地域 | 第一種低層住居専用地域 |
| 地目 | 宅地 | 私道負担 | - |
| セットバック | - | 建ぺい率 | 60% |
| 容積率 | 150% | 接道状況 | 西 4.0m 公道 接面 2.4m(道路幅員 約3.8m) |
| 都市計画 | 市街化区域 | 国土法届出 | - |
| 建築条件 | あり | 取引態様 | 仲介 |
| 小学校学区 | - | 周辺情報 | - |
| 現況 | 成約済 | 引渡し | *** |
| 更新日 | 2023年11月23日 | ||
引渡時期/2024年6月下旬以降
※建物周辺情報はGoogleMapを使用しており、実際とは若干異なる場合がございます。
掲載情報について

物件写真 物件画像1