世田谷区新町2丁目 新築戸建て 1169 成約済み(1169)

  • 総合トップ
  • 中古マンション
  • 一戸建て・土地
  • 投資・収益物件
  • 売りたい[売却査定]
  • 貸したい[賃料査定]

世田谷区新町2丁目 新築戸建て 成約済み(1169)

恵比寿不動産の強み

こちらの物件は既に成約済みです。

物件検索より最新の物件をお探しください。

  • 新築一戸建て
価格
***
毎月の返済額
(目安)
loansimulationIcon
土地面積 102.00m2(約30.86坪)
建物面積 89.42m2(約27.05坪)
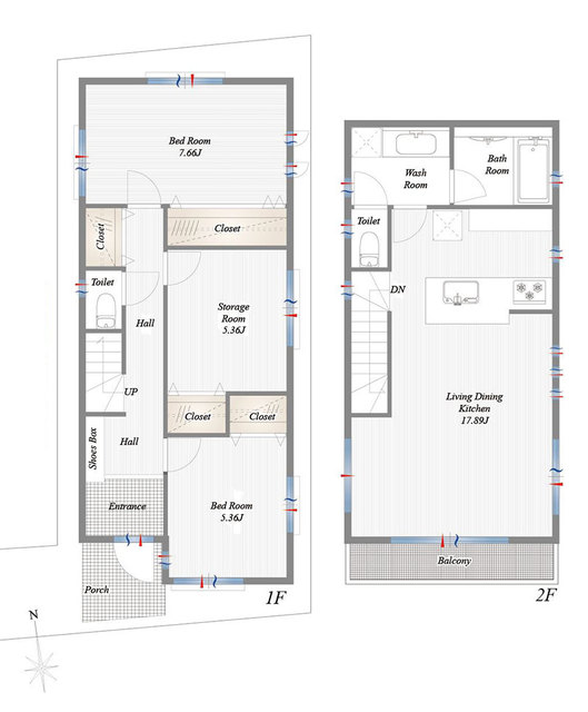
築年月 2023年10月 間取り 2SLDK
建ぺい率 50% 容積率 100%
所在地
交通

「桜新町」駅徒歩1分の好立地!2階建て2LDK

【特徴・設備】
■東急田園都市線「桜新町」駅徒歩1分
■世田谷区新町アドレス
■令和5年10月築
■玄関タッチレスキー
■TVモニター付きインターホン
■蛇口一体型浄水器
■食洗機、システムキッチン
■シャンプードレッサー付洗面台
■浴室換気暖房乾燥機、保温浴槽
■LDK床暖房、温水洗浄便座
■駐車場有り、防火専用サッシ
■高断熱複層ガラス、防犯シャッター

2冠達成 恵比寿不動産は物件数No.1 中古マンション数No.1

物件概要

物件名 世田谷区新町2丁目 新築戸建て
種別 一戸建て
所在地
交通
問合せ番号 1169
価格 *** 借地料 ***円
借地期間 - その他費用 ***円
土地面積 102.00m2(約30.86坪) 建物面積 89.42m2(約27.05坪)
バルコニー面積 - 庭面積 -
構造 木造 総階数 地上2階
築年月 2023年10月 間取り 2SLDK
方角 駐車場
土地権利 所有権 用途地域 第一種低層住居専用地域
地目 宅地 私道負担 -
セットバック - 建ぺい率 50%
容積率 100% 接道状況 北西側 約4.0m 公道 接道 3.4m
都市計画 市街化区域 国土法届出 -
建築条件 - 取引態様 仲介
小学校学区 東深沢小学校 周辺情報 -
現況 成約済 引渡し ***
更新日 2023年12月15日

備考

完成予定:令和5年10月末

条件

  • 低層住居専用地域
  • スーパーまで徒歩5分以内
  • コンビニまで徒歩3分以内
  • TVドアホン
  • 駐車場付き
  • 独立洗面台
  • 追い焚き
  • 温水洗浄便座
  • 浴室乾燥機
  • システムキッチン
  • 食器洗浄機
  • 浄水器
  • 床暖房
  • バス・トイレ別
  • 浴室1坪以上
  • 複層ガラス

周辺地図

※建物周辺情報はGoogleMapを使用しており、実際とは若干異なる場合がございます。

掲載情報について

  • ※本掲載情報と現況に差異がある場合、現況を優先いたします。
  • ※掲載物件は売却済あるいは売出中止となる場合もあります。
  • ※掲載写真やパース(絵)、または間取図に描かれている家具や車などは、価格に含まれておりません。また、過去に撮影したものをそのまま利用している場合があり、名称・外観・背景等、実際のものとは異なる場合がございます。予めご了承ください。
  • ※仲介物件には所定の仲介手数料(消費税等相当額を含みます)が必要です。
2冠達成 恵比寿不動産は物件数No.1 中古マンション数No.1