「新井薬師前」駅 徒歩3分!1LDK+2S
【特徴・設備】
■西武新宿線「新井薬師前」駅 徒歩3分
■中野区松が丘アドレス
■利便性あふれる好立地。
■周辺は便利な施設や自然スポットが充実しています。
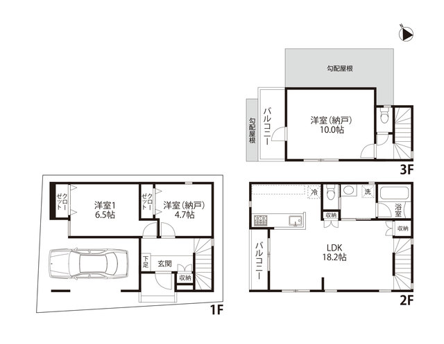
■システムキッチン・3口コンロ・リビングイン階段
■トイレ2ヶ所・クローゼット・シューズボックス

物件検索より最新の物件をお探しください。
| 価格 | ***万円 |
毎月の返済額 (目安) |
|
|---|---|---|---|
| 土地面積 | 60.50m2(約18.3坪) | ||
| 建物面積 | 104.08m2(約31.48坪) | ||
| 築年月 | 2025年7月 | 間取り | 1SLDK |
| 建ぺい率 | 60% | 容積率 | 150% |
| 所在地 | 東京都中野区松が丘1 | ||
| 交通 |
西武新宿線「新井薬師前駅」徒歩3分 JR中央・総武線「中野駅」徒歩23分 | ||
【特徴・設備】
■西武新宿線「新井薬師前」駅 徒歩3分
■中野区松が丘アドレス
■利便性あふれる好立地。
■周辺は便利な施設や自然スポットが充実しています。
■システムキッチン・3口コンロ・リビングイン階段
■トイレ2ヶ所・クローゼット・シューズボックス

| 物件名 | 中野区松が丘1丁目 新築一戸建て B棟 | ||
|---|---|---|---|
| 種別 | 一戸建て | ||
| 所在地 | 東京都中野区松が丘1 | ||
| 交通 |
西武新宿線「新井薬師前駅」徒歩3分 JR中央・総武線「中野駅」徒歩23分 |
||
| 問合せ番号 | 2206 | ||
| 価格 | ***万円 | 借地料 | ***円 |
| 借地期間 | - | その他費用 | ***円 |
| 土地面積 | 60.50m2(約18.3坪) | 建物面積 | 104.08m2(約31.48坪) |
| バルコニー面積 | - | 庭面積 | - |
| 構造 | 木造 | 総階数 | 地上3階 |
| 築年月 | 2025年7月 | 間取り | 1SLDK |
| 方角 | 南西 | 駐車場 | 有 |
| 土地権利 | 所有権 | 用途地域 | 第一種低層住居専用地域 |
| 地目 | - | 私道負担 | - |
| セットバック | - | 建ぺい率 | 60% |
| 容積率 | 150% | 接道状況 | 北側 約4.0m 公道 ・西側 約4.0m 私道・南側 約3.1m 私道 |
| 都市計画 | 市街化区域 | 国土法届出 | - |
| 建築条件 | - | 取引態様 | 仲介 |
| 小学校学区 | - | 周辺情報 | - |
| 現況 | 成約済 | 引渡し | *** |
| 更新日 | 2025年8月2日 | ||
引渡時期:令和7年7月末
※建物周辺情報はGoogleMapを使用しており、実際とは若干異なる場合がございます。
掲載情報について

物件写真 物件画像1