世田谷区玉川田園調布1丁目 中古一戸建て 2247 成約済み(2247)

  • 総合トップ
  • 中古マンション
  • 一戸建て・土地
  • 投資・収益物件
  • 売りたい[売却査定]
  • 貸したい[賃料査定]

世田谷区玉川田園調布1丁目 中古一戸建て 成約済み(2247)

恵比寿不動産の強み

こちらの物件は既に成約済みです。

物件検索より最新の物件をお探しください。

  • 一戸建て
価格
***
毎月の返済額
(目安)
loansimulationIcon
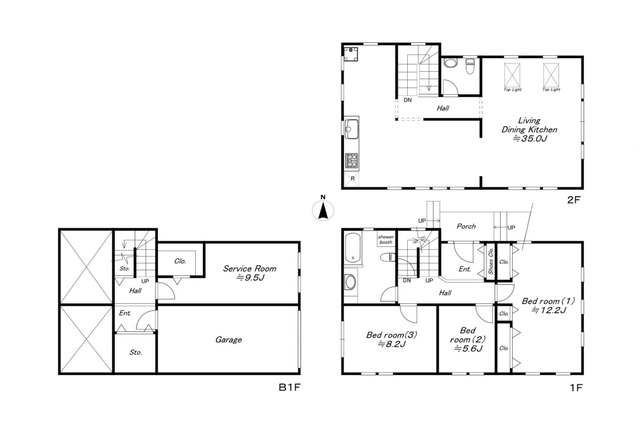
土地面積 171.91m2(約52坪)
建物面積 187.30m2(約56.66坪)
築年月 2000年10月 間取り 3SLDK
建ぺい率 40% 容積率 80%
所在地
交通

「田園調布」駅 徒歩5分!3SLDK+車庫

【特徴・設備】
■東急東横線「田園調布」駅 徒歩5分
■世田谷区玉川田園調布アドレス
■放射線状に広がる閑静な住宅街
■大型デザイン窓&レンガ貼映える輸入住宅
■シャッター付ガレージ(車2台駐車可)
■リフォーム済み(R7/3末完了)


【リフォーム内容】
□システムキッチン新規交換
□トイレ一式(温水洗浄便座)新規交換
□ユニットバス・洗面化粧台補修
□新規床部分張替
□内部部分塗装
□外壁一部塗装
□ハウスクリーニングetc

2冠達成 恵比寿不動産は物件数No.1 中古マンション数No.1

物件概要

物件名 世田谷区玉川田園調布1丁目 中古一戸建て
種別 一戸建て
所在地
交通
問合せ番号 2247
価格 *** 借地料 ***円
借地期間 - その他費用 ***円
土地面積 171.91m2(約52坪) 建物面積 187.30m2(約56.66坪)
バルコニー面積 - 庭面積 -
構造 木造 総階数 地上2階
築年月 2000年10月 間取り 3SLDK
方角 駐車場
土地権利 所有権 用途地域 第一種低層住居専用地域
地目 宅地 私道負担 -
セットバック - 建ぺい率 40%
容積率 80% 接道状況 東側 約5.3m 公道
都市計画 市街化区域 国土法届出 -
建築条件 - 取引態様 仲介
小学校学区 - 周辺情報 -
現況 成約済 引渡し ***
更新日 2025年8月3日

備考

●設備/東京電力・公営水道・都市ガス・本下水
※工事中につき、リフォーム内容等変更が生じる場合があります。
※司法書士は売主指定となります。
※図面と現況が異なる場合は現況優先とします。
※広告制作中に万一成約済の場合はご容赦下さい。

条件

  • 小学校まで徒歩10分以内
  • 公園まで徒歩5分以内
  • TVドアホン
  • 駐車場付き
  • 独立洗面台
  • 追い焚き
  • 温水洗浄便座
  • 浴室乾燥機
  • システムキッチン
  • ガスコンロ
  • フローリング
  • リノベーション
  • バス・トイレ別

周辺地図

※建物周辺情報はGoogleMapを使用しており、実際とは若干異なる場合がございます。

掲載情報について

  • ※本掲載情報と現況に差異がある場合、現況を優先いたします。
  • ※掲載物件は売却済あるいは売出中止となる場合もあります。
  • ※掲載写真やパース(絵)、または間取図に描かれている家具や車などは、価格に含まれておりません。また、過去に撮影したものをそのまま利用している場合があり、名称・外観・背景等、実際のものとは異なる場合がございます。予めご了承ください。
  • ※仲介物件には所定の仲介手数料(消費税等相当額を含みます)が必要です。
2冠達成 恵比寿不動産は物件数No.1 中古マンション数No.1