世田谷区瀬田5丁目 中古一戸建て 2395

  • 総合トップ
  • 中古マンション
  • 一戸建て・土地
  • 投資・収益物件
  • 売りたい[売却査定]
  • 貸したい[賃料査定]

世田谷区瀬田5丁目 中古一戸建て

恵比寿不動産の強み
  • 一戸建て
価格
12,500
毎月の返済額
(目安)
loansimulationIcon
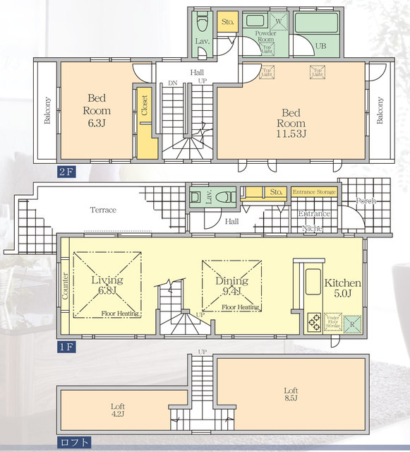
土地面積 125.48m2(約37.96坪)
建物面積 100.28m2(約30.33坪)
築年月 2008年12月 間取り 2LDK+ロフト
建ぺい率 40% 容積率 80%
所在地
交通

「用賀」駅 徒歩12分!2LDK+駐車場2台

【特徴・設備】
■東急田園都市線「用賀」駅 徒歩12分
■世田谷区瀬田アドレス
■システムキッチン・3口コンロ・床下収納
■LD床暖房完備・おしゃれなトップライト付き
■ロフトは階段で上がることが可能です!
■テラス庭(約7帖)・井戸・24時間換気システム

2冠達成 恵比寿不動産は物件数No.1 中古マンション数No.1

お問い合わせはこちらから

contact us
オフィス内観写真
オフィス外観写真

恵比寿不動産までお気軽にお問合せください

お電話でのお問い合わせはこちら:03-6421-0543 10:00 - 19:00 (水曜定休)

恵比寿不動産 渋谷区東3-25-11 TOKYU REIT恵比寿ビル4階店舗情報

リフォーム無料お見積りサービス

物件概要

物件名 世田谷区瀬田5丁目 中古一戸建て
種別 一戸建て
所在地
交通
問合せ番号 2395
価格 12,500 借地料 -
借地期間 - その他費用 -
土地面積 125.48m2(約37.96坪) 建物面積 100.28m2(約30.33坪)
バルコニー面積 - 庭面積 -
構造 木造 総階数 地上2階
築年月 2008年12月 間取り 2LDK
方角 駐車場 有(2台分)
土地権利 所有権 用途地域 第一種低層住居専用地域
地目 宅地 私道負担 -
セットバック - 建ぺい率 40%
容積率 80% 接道状況 東側 約4.0m 公道
都市計画 市街化区域 国土法届出 -
建築条件 - 取引態様 仲介
小学校学区 - 周辺情報 -
現況 空家 引渡し 相談
更新日 2025年10月4日

備考

※図面と現況が異なる場合は現況を優先とします。

条件

  • 低層住居専用地域
  • 公園まで徒歩5分以内
  • TVドアホン
  • 駐車場付き
  • 駐車場二台以上
  • 閑静な住宅街
  • 独立洗面台
  • 追い焚き
  • 温水洗浄便座
  • 浴室乾燥機
  • システムキッチン
  • カウンターキッチン
  • 食器洗浄機
  • 浄水器
  • ガスコンロ
  • 床暖房
  • フローリング
  • ロフト付き
  • バス・トイレ別

世田谷区瀬田5丁目 中古一戸建て のローンシミュレーション

借入金額
12,500
頭金
毎月の返済額
頭金
  • 支払い額万円※半角数字
金利
  • %※半角数字
返済年数
  • ※元利均等返済方式、最大優遇の場合で計算しています。
  • ※融資には個別審査があり、審査結果により、貸出条件(金利・貸出期間・借入額)が異なる場合がございます。
  • ※不動産のご購入に際しましては物件価格以外にその他諸費用が必要となります。
    諸費用に関する詳細につきましてはお問い合わせ下さいませ。

周辺地図

※建物周辺情報はGoogleMapを使用しており、実際とは若干異なる場合がございます。

掲載情報について

  • ※本掲載情報と現況に差異がある場合、現況を優先いたします。
  • ※掲載物件は売却済あるいは売出中止となる場合もあります。
  • ※掲載写真やパース(絵)、または間取図に描かれている家具や車などは、価格に含まれておりません。また、過去に撮影したものをそのまま利用している場合があり、名称・外観・背景等、実際のものとは異なる場合がございます。予めご了承ください。
  • ※仲介物件には所定の仲介手数料(消費税等相当額を含みます)が必要です。
2冠達成 恵比寿不動産は物件数No.1 中古マンション数No.1

お問い合わせはこちらから

contact us
オフィス内観写真
オフィス外観写真

恵比寿不動産までお気軽にお問合せください

お電話でのお問い合わせはこちら:03-6421-0543 10:00 - 19:00 (水曜定休)

恵比寿不動産 渋谷区東3-25-11 TOKYU REIT恵比寿ビル4階店舗情報

最近見た物件

渋谷区笹塚2丁目 新築一戸建て 最近見た物件画像

渋谷区笹塚2丁目 新築一戸建て

  • 16,980
  • 東京都渋谷区笹塚2
  • 京王線「笹塚駅」徒歩8分
    京王線「代田橋駅」徒歩8分
  • 土地面積 68.10m2(約20.6坪)
  • 建物面積 100.28m2(約30.33坪)
  • 2026年3月
世田谷区祖師谷6丁目 新築一戸建て 3号棟 最近見た物件画像

世田谷区祖師谷6丁目 新築一戸建て 3号棟

  • 8,780
  • 東京都世田谷区祖師谷6
  • 京王線「千歳烏山駅」徒歩19分
    小田急線「祖師ヶ谷大蔵駅」徒歩23分
  • 土地面積 117.18m2(約35.45坪)
  • 建物面積 100.28m2(約30.33坪)
  • 2025年7月
中野区中野6丁目 土地 最近見た物件画像

中野区中野6丁目 土地

  • 8,980
  • 東京都中野区中野6
  • JR中央・総武線「東中野駅」徒歩8分
    都営大江戸線「東中野駅」徒歩8分
  • 土地面積 102.86m2(約31.12坪)
  • 建物面積 100.28m2(約30.33坪)
  • -
杉並区成田西1丁目 土地 最近見た物件画像

杉並区成田西1丁目 土地

  • 5,980
  • 東京都杉並区成田西1
  • 京王井の頭線「西永福駅」徒歩10分
    京王井の頭線「永福町駅」徒歩16分
  • 土地面積 70.93m2(約21.46坪)
  • 建物面積 100.28m2(約30.33坪)
  • -
新宿区高田馬場4丁目 新築一戸建て B号棟 最近見た物件画像

新宿区高田馬場4丁目 新築一戸建て B号棟

  • 6,580
  • 東京都新宿区高田馬場4
  • JR山手線「高田馬場駅」徒歩11分
  • 土地面積 42.01m2(約12.71坪)
  • 建物面積 100.28m2(約30.33坪)
  • 2025年1月
杉並区永福2丁目 土地 最近見た物件画像

杉並区永福2丁目 土地

  • 13,300
  • 東京都杉並区永福2
  • 京王井の頭線「永福町駅」徒歩8分
    京王井の頭線「西永福駅」徒歩13分
  • 土地面積 132.92m2(約40.21坪)(公簿)
  • 建物面積 100.28m2(約30.33坪)
  • -