「八幡山」駅 徒歩11分!3LDK+駐車場(2台)
【特徴・設備】
■京王電鉄京王線「八幡山」駅 徒歩11分
■杉並区上高井戸アドレス
■2路線3駅利用可能
■敷地35坪超!落ち着いた住環境の3LDK新邸
■フルフラットペニンシュラキッチン
■リビングにガス式温水床暖房・ガス式浴室乾燥機

| 価格 | 9,450万円 |
毎月の返済額 (目安) |
|
|---|---|---|---|
| 土地面積 | 119.54m2(約36.16坪) | ||
| 建物面積 | 84.04m2(約25.42坪) | ||
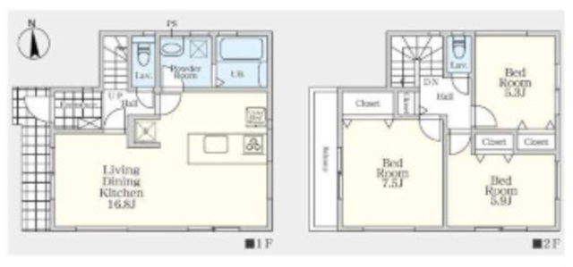
| 築年月 | 2026年2月 | 間取り | 3LDK |
| 建ぺい率 | 40% | 容積率 | 80% |
| 所在地 | 東京都杉並区上高井戸3 | ||
| 交通 |
京王線「八幡山駅」徒歩11分 京王井の頭線「高井戸駅」徒歩11分 | ||
【特徴・設備】
■京王電鉄京王線「八幡山」駅 徒歩11分
■杉並区上高井戸アドレス
■2路線3駅利用可能
■敷地35坪超!落ち着いた住環境の3LDK新邸
■フルフラットペニンシュラキッチン
■リビングにガス式温水床暖房・ガス式浴室乾燥機

| 物件名 | 杉並区上高井戸3丁目 土地 | ||
|---|---|---|---|
| 種別 | 土地 | ||
| 所在地 | 東京都杉並区上高井戸3 | ||
| 交通 |
京王線「八幡山駅」徒歩11分 京王井の頭線「高井戸駅」徒歩11分 京王線「芦花公園駅」徒歩13分 |
||
| 問合せ番号 | 2588 | ||
| 価格 | 9,450万円 | 借地料 | - |
| 借地期間 | - | その他費用 | - |
| 土地面積 | 119.54m2(約36.16坪) | 建物面積 | 84.04m2(約25.42坪) |
| バルコニー面積 | - | 庭面積 | - |
| 構造 | 木造 | 総階数 | 地上2階 |
| 築年月 | 2026年2月 | 間取り | 3LDK |
| 方角 | 西 | 駐車場 | 有 |
| 土地権利 | 所有権 | 用途地域 | 第一種低層住居専用地域 |
| 地目 | 宅地 | 私道負担 | - |
| セットバック | - | 建ぺい率 | 40% |
| 容積率 | 80% | 接道状況 | 西側 約3.9m 私道 接道 約9.9m |
| 都市計画 | 市街化区域 | 国土法届出 | - |
| 建築条件 | - | 取引態様 | 仲介 |
| 小学校学区 | - | 周辺情報 | - |
| 現況 | 未完成 | 引渡し | 相談 |
| 更新日 | 2026年2月4日 | ||
| 頭金 |
|
|---|---|
| 金利 |
|
| 返済年数 | 年 |
※建物周辺情報はGoogleMapを使用しており、実際とは若干異なる場合がございます。
掲載情報について

物件写真 物件画像1