台東区西浅草2丁目 土地 2619

  • 総合トップ
  • 中古マンション
  • 一戸建て・土地
  • 投資・収益物件
  • 売りたい[売却査定]
  • 貸したい[賃料査定]

台東区西浅草2丁目 土地

恵比寿不動産の強み
  • 土地
価格
11,260
毎月の返済額
(目安)
loansimulationIcon
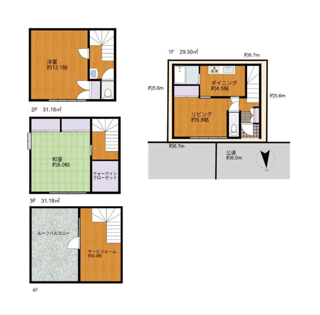
土地面積 36.19m2(約10.95坪)(公簿)
建物面積 -
築年月 - 間取り -
建ぺい率 80% 容積率 600%
所在地
交通

「浅草」駅 徒歩5分の好立地!

【特徴・設備】
■つくばエクスプレス線「浅草」駅 徒歩5分
■台東区西浅草アドレス
■建築条件はございません
■現況/上物有(空家)
■建築年月/昭和53年11月築
■設備/都市ガス・ガス給湯器

2冠達成 恵比寿不動産は物件数No.1 中古マンション数No.1

お問い合わせはこちらから

contact us
オフィス内観写真
オフィス外観写真

恵比寿不動産までお気軽にお問合せください

お電話でのお問い合わせはこちら:03-6421-0543 10:00 - 19:00 (水曜定休)

恵比寿不動産 渋谷区東3-25-11 TOKYU REIT恵比寿ビル4階店舗情報

リフォーム無料お見積りサービス

物件概要

物件名 台東区西浅草2丁目 土地
種別 土地
所在地
交通
問合せ番号 2619
価格 11,260 借地料 -
借地期間 - その他費用 -
土地面積 36.19m2(約10.95坪)(公簿) 建物面積 -
バルコニー面積 - 庭面積 -
構造 鉄骨造 総階数 地上3階
築年月 - 間取り -
方角 - 駐車場 -
土地権利 所有権 用途地域 商業地域 
地目 宅地 私道負担 -
セットバック - 建ぺい率 80%
容積率 600% 接道状況 -
都市計画 市街化区域 国土法届出 -
建築条件 - 取引態様 仲介
小学校学区 - 周辺情報 -
現況 古家あり 引渡し 相談
更新日 2026年1月18日

備考

条件

  • 平坦地
  • 小学校まで徒歩10分以内
  • 公園まで徒歩5分以内
  • 前面道路幅員6m以上
  • 建築条件なし

台東区西浅草2丁目 土地 のローンシミュレーション

借入金額
11,260
頭金
毎月の返済額
頭金
  • 支払い額万円※半角数字
金利
  • %※半角数字
返済年数
  • ※元利均等返済方式、最大優遇の場合で計算しています。
  • ※融資には個別審査があり、審査結果により、貸出条件(金利・貸出期間・借入額)が異なる場合がございます。
  • ※不動産のご購入に際しましては物件価格以外にその他諸費用が必要となります。
    諸費用に関する詳細につきましてはお問い合わせ下さいませ。

周辺地図

※建物周辺情報はGoogleMapを使用しており、実際とは若干異なる場合がございます。

掲載情報について

  • ※本掲載情報と現況に差異がある場合、現況を優先いたします。
  • ※掲載物件は売却済あるいは売出中止となる場合もあります。
  • ※掲載写真やパース(絵)、または間取図に描かれている家具や車などは、価格に含まれておりません。また、過去に撮影したものをそのまま利用している場合があり、名称・外観・背景等、実際のものとは異なる場合がございます。予めご了承ください。
  • ※仲介物件には所定の仲介手数料(消費税等相当額を含みます)が必要です。
2冠達成 恵比寿不動産は物件数No.1 中古マンション数No.1

お問い合わせはこちらから

contact us
オフィス内観写真
オフィス外観写真

恵比寿不動産までお気軽にお問合せください

お電話でのお問い合わせはこちら:03-6421-0543 10:00 - 19:00 (水曜定休)

恵比寿不動産 渋谷区東3-25-11 TOKYU REIT恵比寿ビル4階店舗情報