杉並区上荻2丁目 新築一戸建て A号棟 2653

  • 総合トップ
  • 中古マンション
  • 一戸建て・土地
  • 投資・収益物件
  • 売りたい[売却査定]
  • 貸したい[賃料査定]

杉並区上荻2丁目 新築一戸建て A号棟

恵比寿不動産の強み
  • 新築一戸建て
価格
13,680
毎月の返済額
(目安)
loansimulationIcon
土地面積 107.11m2(約32.4坪)
建物面積 112.60m2(約34.06坪)
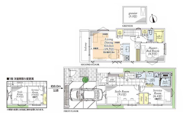
築年月 2025年5月 間取り 2SLDK+WIC
建ぺい率 50% 容積率 100%
所在地
交通

「荻窪」駅 徒歩12分!2SLDK+グルニエ(5.3帖)

【特徴・設備】
■JR中央線・総武線「荻窪」駅
■杉並区上荻アドレス
■リビング天井高約3.5m、床暖房付
■システムキッチン、オール浄水システム
■間仕切りにて4部屋に変更可能
■電動シャッター付ガレージ

2冠達成 恵比寿不動産は物件数No.1 中古マンション数No.1

お問い合わせはこちらから

contact us
オフィス内観写真
オフィス外観写真

恵比寿不動産までお気軽にお問合せください

お電話でのお問い合わせはこちら:03-6421-0543 10:00 - 19:00 (水曜定休)

恵比寿不動産 渋谷区東3-25-11 TOKYU REIT恵比寿ビル4階店舗情報

リフォーム無料お見積りサービス

物件概要

物件名 杉並区上荻2丁目 新築一戸建て A号棟
種別 一戸建て
所在地
交通
問合せ番号 2653
価格 13,680 借地料 -
借地期間 - その他費用 -
土地面積 107.11m2(約32.4坪) 建物面積 112.60m2(約34.06坪)
バルコニー面積 - 庭面積 -
構造 木造 総階数 地上2階
築年月 2025年5月 間取り 2SLDK
方角 西 駐車場
土地権利 所有権 用途地域 第一種低層住居専用地域
地目 宅地 私道負担 -
セットバック - 建ぺい率 50%
容積率 100% 接道状況 北西側 約8.0m 公道
都市計画 市街化区域 国土法届出 -
建築条件 - 取引態様 仲介
小学校学区 - 周辺情報 -
現況 空家 引渡し 相談
更新日 2026年2月1日

備考

<住宅性能評価書取得>
耐震・台風・劣化対策・維持管理対策・一次エネルギー消費量最高等級取得。
●「長期優良住宅」対策邸宅 ●建物初期保証20年 ●住宅設備機器保証10年
●設備/東京電力・公営水道・都市ガス・本下水
●セコム使用料/加入の場合、月額利用料3,100円(税抜)
※図面と現況が異なる場合は現況優先といたします。

条件

  • 低層住居専用地域
  • コンビニまで徒歩3分以内
  • TVドアホン
  • 駐車場付き
  • 独立洗面台
  • 追い焚き
  • 温水洗浄便座
  • 浴室乾燥機
  • システムキッチン
  • カウンターキッチン
  • 食器洗浄機
  • 浄水器
  • ガスコンロ
  • 床暖房
  • ウォークインクローゼット
  • フローリング
  • 屋根裏収納
  • 浴室1坪以上
  • 複層ガラス
  • 前面道路幅員6m以上

杉並区上荻2丁目 新築一戸建て A号棟 のローンシミュレーション

借入金額
13,680
頭金
毎月の返済額
頭金
  • 支払い額万円※半角数字
金利
  • %※半角数字
返済年数
  • ※元利均等返済方式、最大優遇の場合で計算しています。
  • ※融資には個別審査があり、審査結果により、貸出条件(金利・貸出期間・借入額)が異なる場合がございます。
  • ※不動産のご購入に際しましては物件価格以外にその他諸費用が必要となります。
    諸費用に関する詳細につきましてはお問い合わせ下さいませ。

周辺地図

※建物周辺情報はGoogleMapを使用しており、実際とは若干異なる場合がございます。

掲載情報について

  • ※本掲載情報と現況に差異がある場合、現況を優先いたします。
  • ※掲載物件は売却済あるいは売出中止となる場合もあります。
  • ※掲載写真やパース(絵)、または間取図に描かれている家具や車などは、価格に含まれておりません。また、過去に撮影したものをそのまま利用している場合があり、名称・外観・背景等、実際のものとは異なる場合がございます。予めご了承ください。
  • ※仲介物件には所定の仲介手数料(消費税等相当額を含みます)が必要です。
2冠達成 恵比寿不動産は物件数No.1 中古マンション数No.1

お問い合わせはこちらから

contact us
オフィス内観写真
オフィス外観写真

恵比寿不動産までお気軽にお問合せください

お電話でのお問い合わせはこちら:03-6421-0543 10:00 - 19:00 (水曜定休)

恵比寿不動産 渋谷区東3-25-11 TOKYU REIT恵比寿ビル4階店舗情報