用賀駅徒歩15分且つ駅まで平坦地!閑静な住宅街に位置する人気の岡本!
【特徴・設備】
■用賀駅まで徒歩15分且つ平坦地
■閑静な住宅街に位置する人気の岡本
■南向き6mの公道につき開放感・陽当たりが大変良好
■近くに広大な「砧公園」有り、子育て・お散歩コースに最適
■永住の地にふさわしい住環境・道路付・日照・開放感
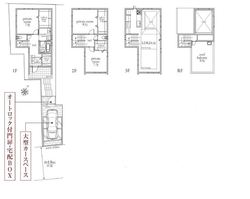
■4部屋+広々LDK!ゆとりの間取り!充実の高級設備を標準設置
■外観は一部高級アクセントサイティング採用で高級感を演出
■耐震・耐久・省エネ性能に優れた最高等級省エネ基準対応住宅仕様
■安心の地盤良好(保証付)
■トイレウォシュレット2か所
■居室ペアガラスサッシ(Low-E)省エネ仕様
■換気乾燥機能付高級システムユニットバス1坪タイプ
■セミオート追焚き保温機能付給湯システム
■浄水器付高級システムキッチン(人造大理石トップ)
■カラーモニター付インターホン
■高級三面鏡付洗面化粧台
■東京電力・公営水道・都市ガス・公共本下水・雨水宅内処理

