2駅3路線利用可能!閑静な住宅街に立地!
【特徴・設備】
■2013年築
■2駅3路線利用可能
■駐車スペース付
■バルコニー&ルーフバルコニー付
■サービスルームにカウンター・収納有り
■窓付き書庫
■リビング部分にトップライト
■食洗機付き対面キッチン
■1616浴室+窓+浴室換気乾燥機
■トイレ2か所
■都市ガス・公営水道・公共下水

物件検索より最新の物件をお探しください。
| 価格 | ***万円 |
毎月の返済額 (目安) |
|
|---|---|---|---|
| 土地面積 | 70.08m2(約21.2坪)(公簿) | ||
| 建物面積 | 89.94m2(約27.21坪)(公簿) | ||
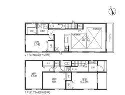
| 築年月 | 2013年3月 | 間取り | 1SLDK+WIC |
| 建ぺい率 | 60% | 容積率 | 150% |
| 所在地 | 東京都目黒区平町2 | ||
| 交通 |
東急東横線「都立大学駅」徒歩10分 東急大井町線「大岡山駅」徒歩12分 | ||
【特徴・設備】
■2013年築
■2駅3路線利用可能
■駐車スペース付
■バルコニー&ルーフバルコニー付
■サービスルームにカウンター・収納有り
■窓付き書庫
■リビング部分にトップライト
■食洗機付き対面キッチン
■1616浴室+窓+浴室換気乾燥機
■トイレ2か所
■都市ガス・公営水道・公共下水

| 物件名 | 目黒区平町2丁目 中古一戸建て | ||
|---|---|---|---|
| 種別 | 一戸建て | ||
| 所在地 | 東京都目黒区平町2 | ||
| 交通 |
東急東横線「都立大学駅」徒歩10分 東急大井町線「大岡山駅」徒歩12分 東急目黒線「大岡山駅」徒歩12分 |
||
| 問合せ番号 | 710 | ||
| 価格 | ***万円 | 借地料 | ***円 |
| 借地期間 | - | その他費用 | ***円 |
| 土地面積 | 70.08m2(約21.2坪)(公簿) | 建物面積 |
89.94m2(約27.21坪)(公簿) B1階36.14㎡ 1階34.35㎡ 2階19.45㎡ |
| バルコニー面積 | - | 庭面積 | - |
| 構造 | 木造 | 総階数 | 地上2階 地下1階 |
| 築年月 | 2013年3月 | 間取り | 1SLDK |
| 方角 | - | 駐車場 | 有り |
| 土地権利 | 所有権 | 用途地域 | 第一種低層住居専用地域 |
| 地目 | 宅地 | 私道負担 | 有り |
| セットバック | 済み | 建ぺい率 | 60% |
| 容積率 | 150% | 接道状況 | 東側幅員約3.3m |
| 都市計画 | 市街化区域 | 国土法届出 | - |
| 建築条件 | - | 取引態様 | 仲介 |
| 小学校学区 | 大岡山小学校 | 周辺情報 | - |
| 現況 | 成約済 | 引渡し | *** |
| 更新日 | 2021年3月2日 | ||
※建物周辺情報はGoogleMapを使用しており、実際とは若干異なる場合がございます。
掲載情報について

外観