上荻の一戸建て(新築/中古)・土地売買物件一覧

  • 総合トップ
  • 中古マンション
  • 一戸建て・土地
  • 投資・収益物件
  • 売りたい[売却査定]
  • 貸したい[賃料査定]
恵比寿不動産の強み

上荻の一戸建て(新築/中古)・土地売買物件一覧

検索条件:上荻

価格 19,360
所在地 東京都杉並区上荻3
交通 JR中央・総武線西荻窪駅」徒歩15分
東京メトロ丸ノ内線荻窪駅」徒歩19分
土地面積 194.30m2(約58.78坪)(実測) 建物面積 -
築年月 - 間取り -
建ぺい率 50% 容積率 100%
一言コメント 「荻窪」駅 徒歩19分!約58坪の土地
価格 1980
所在地 東京都杉並区上荻3
交通 JR中央・総武線西荻窪駅」徒歩15分
東京メトロ丸ノ内線荻窪駅」徒歩19分
土地面積 105.79m2(約32坪) 建物面積 -
築年月 - 間取り -
建ぺい率 50% 容積率 100%
一言コメント 「西荻窪」駅 徒歩15分!約32坪の土地
価格 8,380
所在地 東京都杉並区上荻3
交通 JR中央・総武線西荻窪駅」徒歩15分
東京メトロ丸ノ内線荻窪駅」徒歩19分
土地面積 88.50m2(約26.77坪)(実測) 建物面積 -
築年月 - 間取り -
建ぺい率 50% 容積率 100%
一言コメント 「西荻窪」駅 徒歩15分!約26坪の土地
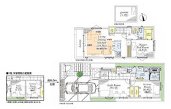
価格 13,680
所在地 東京都杉並区上荻2
交通 JR中央・総武線荻窪駅」徒歩12分
東京メトロ丸ノ内線荻窪駅」徒歩12分
土地面積 107.11m2(約32.4坪) 建物面積 112.60m2(約34.06坪)
築年月 2025年5月 間取り 2SLDK
建ぺい率 50% 容積率 100%
一言コメント 「荻窪」駅 徒歩12分!2SLDK+グルニエ(5.3帖)
価格 9,990
所在地 東京都杉並区上荻3
交通 東京メトロ丸ノ内線荻窪駅」徒歩14分
JR中央・総武線西荻窪駅」徒歩17分
JR中央・総武線荻窪駅」徒歩14分
土地面積 80.68m2(約24.41坪) 建物面積 67.79m2(約20.51坪)
築年月 2025年3月 間取り 2SLDK
建ぺい率 60% 容積率 100%
一言コメント 「荻窪」駅 徒歩14分!2SLDK+車庫

ご希望の物件が見つからない場合は…

contact us

ご希望の物件が見つからない場合でも
お気軽にお問い合わせください。

売却相談を受けたばかりの公開前の情報や、
売主の意向によってネット広告など
表に公開できない物件もご紹介させて頂きます。