「都立家政」駅徒歩1分・交通便利!商店街通り希少収益物件!
【特徴・設備】
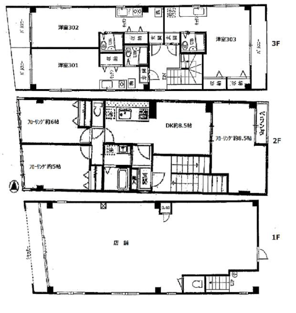
■鉄骨造3階建て
■1F店舗、2F・3F住居(5戸)
■H28年度2Fリフォーム済、301号室リフォーム済
■H26年度303号室リフォーム済
利回り 4.4%
年間予定賃料収入 6,430,008円

| 価格 | 1億4,500万円 |
毎月の返済額 (目安) |
|
|---|---|---|---|
| 想定利回り |
4.40%
|
想定年間賃料 |
643.0万円
|
| 築年月 | 1989年12月 | 間取り | |
| 専有面積/建物面積 | 222.70m2 | 土地面積 | 93.04m2 |
| 所在地 | 東京都中野区若宮3-19-11 | ||
|---|---|---|---|
| 交通 | 西武新宿線「都立家政駅」徒歩1分 | ||
【特徴・設備】
■鉄骨造3階建て
■1F店舗、2F・3F住居(5戸)
■H28年度2Fリフォーム済、301号室リフォーム済
■H26年度303号室リフォーム済
利回り 4.4%
年間予定賃料収入 6,430,008円

| 物件名 | ミヤコビル | ||||
|---|---|---|---|---|---|
| 種別 | 一棟マンション /店舗・事務所 | ||||
| 所在地 | 東京都中野区若宮3-19-11 | ||||
| 交通 |
西武新宿線「都立家政駅」徒歩1分 |
||||
| 問合せ番号 | 3312 | ||||
| 物件特徴 | 低層マンション | ||||
| 物件条件 | - | ||||
| 価格 | 1億4,500万円 | 想定利回り | 4.40% | ||
| 想定年間賃料 | 643.0万円 | 管理費 | - | ||
| 修繕積立金 | - | その他費用 | - | ||
| 所在階 | - | 間取り | - | ||
| 方角 | - | 専有面積/建物面積 | 222.70m2 | ||
| 土地面積 | 93.04m2 | バルコニー面積 | - | ||
| 建物構造 | 鉄骨造 | 築年月 | 1989年12月 | ||
| 総戸数 | 5戸 | 総階数 | 地上3階 | ||
| 駐車場 | 無 | バイク置き場 | - | ||
| 駐輪場 | - | 土地権利 | 所有権 | ||
| 用途地域 | 近隣商業地域 | 地目 | - | ||
| 私道負担 | - | セットバック | - | ||
| 建ぺい率 | 80%/-/- | 容積率 | 300%/-/- | ||
| 接道状況 | 東側:5.45m 西側:4m | 都市計画 | 市街化区域 | ||
| 国土法届出 | - | 管理形態 | 自主管理 | ||
| 管理会社 | - | 分譲会社 | - | ||
| 施工会社 | - | 設計会社 | - | ||
| 取引態様 | 仲介 | 小学校学区 | - | ||
| 周辺情報 | ■まいばすけっと 都立家政駅南店まで約1分 ■セブンイレブン 中野都立家政店まで約1分 ■西武アルファ薬局まで約1分 |
現況 | 賃貸中 | ||
| 引渡し | 相談 | 更新日 | 2025年12月5日 | ||
| 頭金 |
支払い額万円※半角数字
|
|---|---|
| 金利 |
|
| 返済年数 | 年 |
※建物周辺情報はGoogleMapを使用しており、実際とは若干異なる場合がございます。
掲載情報について

外観 物件画像1