「久が原」駅徒歩5分・好立地の希少収益物件
【特徴・設備】
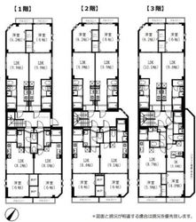
■鉄骨造3階建て
■総戸数6戸
■満室稼働中
■1~3階各階 65.10㎡
利回り 約5%
年間予定賃料収入 7,428,000円

物件検索より最新の物件をお探しください。
| 価格 | ***万円 |
毎月の返済額 (目安) |
|
|---|---|---|---|
| 想定利回り |
***%
|
想定年間賃料 |
***万円
|
| 築年月 | 1990年5月 | 間取り | |
| 専有面積/建物面積 | 195.30m2 | 土地面積 | 132.23m2 |
| 所在地 | 東京都大田区久が原3-31-3 | ||
|---|---|---|---|
| 交通 | 東急池上線「久が原駅」徒歩5分 | ||
【特徴・設備】
■鉄骨造3階建て
■総戸数6戸
■満室稼働中
■1~3階各階 65.10㎡
利回り 約5%
年間予定賃料収入 7,428,000円

| 物件名 | クレストヒルズ久が原駅前ビル | ||||
|---|---|---|---|---|---|
| 種別 | 一棟売りビル /店舗・事務所 | ||||
| 所在地 | 東京都大田区久が原3-31-3 | ||||
| 交通 |
東急池上線「久が原駅」徒歩5分 |
||||
| 問合せ番号 | 3314 | ||||
| 物件特徴 | 低層マンション | ||||
| 物件条件 | - | ||||
| 価格 | ***万円 | 想定利回り | ***% | ||
| 想定年間賃料 | ***万円 | 管理費 | ***円/月 | ||
| 修繕積立金 | ***円/月 | その他費用 | *** | ||
| 所在階 | - | 間取り | - | ||
| 方角 | - | 専有面積/建物面積 | 195.30m2 | ||
| 土地面積 | 132.23m2 | バルコニー面積 | - | ||
| 建物構造 | RC | 築年月 | 1990年5月 | ||
| 総戸数 | 6戸 | 総階数 | 地上3階 | ||
| 駐車場 | 無 | バイク置き場 | - | ||
| 駐輪場 | - | 土地権利 | 所有権 | ||
| 用途地域 | 第一種中高層住居専用地域、近隣商業地域 | 地目 | - | ||
| 私道負担 | - | セットバック | - | ||
| 建ぺい率 | 60%/80%/- | 容積率 | 200%/300%/- | ||
| 接道状況 | 北側:私道(幅員約3.4m) | 都市計画 | 市街化区域 | ||
| 国土法届出 | - | 管理形態 | 自主管理 | ||
| 管理会社 | - | 分譲会社 | - | ||
| 施工会社 | - | 設計会社 | - | ||
| 取引態様 | 仲介 | 小学校学区 | - | ||
| 周辺情報 | ■まいばすけっと 久が原3丁目店まで約2分 ■ローソン 久が原駅前店まで約3分 ■スカイ薬局久が原店まで約3分 |
現況 | 賃貸中 | ||
| 引渡し | *** | 更新日 | 2025年12月5日 | ||
※建物周辺情報はGoogleMapを使用しており、実際とは若干異なる場合がございます。
掲載情報について

外観 物件画像1