オーナーチェンジ物件/売アパート/東急世⽥⾕線「世⽥⾕」駅徒歩5分
【特徴・設備】
■三茶・駒澤・桜新町等にアクセス可能
■静かな住宅環境
■木造2階建て
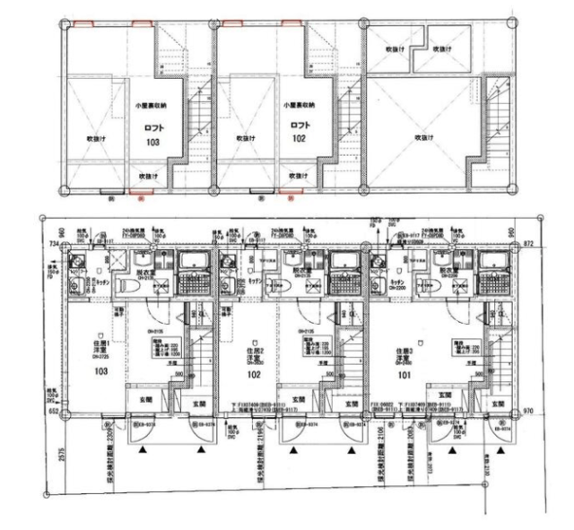
■総戸数6戸
■1F大型ロフト付き
■B・T別、収納スペース、室内洗濯機置場
■複層ガラス、エアコン、インターネット対応
■オートロック、火災報知器
利回り 4.50%
年間予定賃料収入 6,985,200円

物件検索より最新の物件をお探しください。
| 価格 | ***万円 |
毎月の返済額 (目安) |
|
|---|---|---|---|
| 想定利回り |
***%
|
想定年間賃料 |
***万円
|
| 築年月 | 2008年3月 | 間取り | |
| 専有面積/建物面積 | 160.22m2 | 土地面積 | 154.35m2 |
| 所在地 | 東京都世田谷区世田谷1-14-3 | ||
|---|---|---|---|
| 交通 |
東急世田谷線「世田谷駅」徒歩5分 東急田園都市線「桜新町駅」徒歩21分 | ||
【特徴・設備】
■三茶・駒澤・桜新町等にアクセス可能
■静かな住宅環境
■木造2階建て
■総戸数6戸
■1F大型ロフト付き
■B・T別、収納スペース、室内洗濯機置場
■複層ガラス、エアコン、インターネット対応
■オートロック、火災報知器
利回り 4.50%
年間予定賃料収入 6,985,200円

| 物件名 | ワトル世田谷 | ||||
|---|---|---|---|---|---|
| 種別 | 一棟アパート | ||||
| 所在地 | 東京都世田谷区世田谷1-14-3 | ||||
| 交通 |
東急世田谷線「世田谷駅」徒歩5分 東急田園都市線「桜新町駅」徒歩21分 東急世田谷線「三軒茶屋駅」徒歩23分 |
||||
| 問合せ番号 | 3634 | ||||
| 物件特徴 | 低層マンション | ||||
| 物件条件 | - | ||||
| 価格 | ***万円 | 想定利回り | ***% | ||
| 想定年間賃料 | ***万円 | 管理費 | ***円/月 | ||
| 修繕積立金 | ***円/月 | その他費用 | *** | ||
| 所在階 | - | 間取り | - | ||
| 方角 | - | 専有面積/建物面積 | 160.22m2 | ||
| 土地面積 | 154.35m2 | バルコニー面積 | - | ||
| 建物構造 | 木造 | 築年月 | 2008年3月 | ||
| 総戸数 | 6戸 | 総階数 | 地上2階 | ||
| 駐車場 | - | バイク置き場 | - | ||
| 駐輪場 | - | 土地権利 | 所有権 | ||
| 用途地域 | 第一種低層住居専用地域 | 地目 | 宅地 | ||
| 私道負担 | - | セットバック | - | ||
| 建ぺい率 | 60%/-/- | 容積率 | 150%/-/- | ||
| 接道状況 | - | 都市計画 | 市街化区域 | ||
| 国土法届出 | - | 管理形態 | 自主管理 | ||
| 管理会社 | - | 分譲会社 | - | ||
| 施工会社 | - | 設計会社 | - | ||
| 取引態様 | 仲介 | 小学校学区 | - | ||
| 周辺情報 | ■まいばすけっと 世田谷1丁目店まで約1分 ■セブンイレブン 世田谷中央病院前店まで約1分 ■なのはな薬局世田谷店まで約2分 |
現況 | 賃貸中 | ||
| 引渡し | *** | 更新日 | 2025年9月2日 | ||
※建物周辺情報はGoogleMapを使用しており、実際とは若干異なる場合がございます。
掲載情報について

外観 物件画像1