収益物件/空きビル/一括借上げ可能
【特徴・設備】
■「三軒茶屋」徒歩圏内
■以下う店舗自己利用可能!上階広い4部屋4つ!
■鉄骨造3階建て
■複数路線利用可能
想定利回り 5.47%
年間予定賃料収入 6,504,000円

物件検索より最新の物件をお探しください。
| 価格 | ***万円 |
毎月の返済額 (目安) |
|
|---|---|---|---|
| 想定利回り |
***%
|
想定年間賃料 |
***万円
|
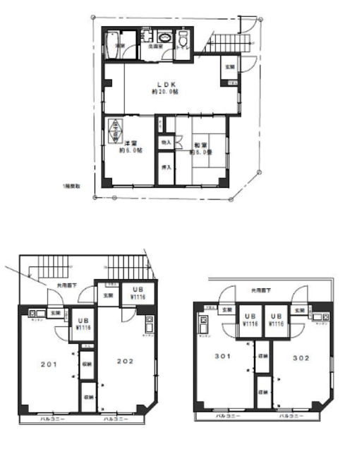
| 築年月 | 1991年10月 | 間取り | |
| 専有面積/建物面積 | 128.04m2 | 土地面積 | 76.59m2 |
| 所在地 | 東京都世田谷区若林4-12-14 | ||
|---|---|---|---|
| 交通 |
東急世田谷線「若林駅」徒歩3分 東急世田谷線「松陰神社前駅」徒歩5分 | ||
【特徴・設備】
■「三軒茶屋」徒歩圏内
■以下う店舗自己利用可能!上階広い4部屋4つ!
■鉄骨造3階建て
■複数路線利用可能
想定利回り 5.47%
年間予定賃料収入 6,504,000円

| 物件名 | 世田谷区若林4丁目 ⼀棟売りビル | ||||
|---|---|---|---|---|---|
| 種別 | 一棟売りビル /店舗・事務所 | ||||
| 所在地 | 東京都世田谷区若林4-12-14 | ||||
| 交通 |
東急世田谷線「若林駅」徒歩3分 東急世田谷線「松陰神社前駅」徒歩5分 東急世田谷線「三軒茶屋駅」徒歩15分 |
||||
| 問合せ番号 | 3638 | ||||
| 物件特徴 | 低層マンション | ||||
| 物件条件 | - | ||||
| 価格 | ***万円 | 想定利回り | ***% | ||
| 想定年間賃料 | ***万円 | 管理費 | ***円/月 | ||
| 修繕積立金 | ***円/月 | その他費用 | *** | ||
| 所在階 | - | 間取り | - | ||
| 方角 | - | 専有面積/建物面積 | 128.04m2 | ||
| 土地面積 | 76.59m2 | バルコニー面積 | - | ||
| 建物構造 | 鉄骨造 | 築年月 | 1991年10月 | ||
| 総戸数 | - | 総階数 | 地上3階 | ||
| 駐車場 | - | バイク置き場 | - | ||
| 駐輪場 | - | 土地権利 | 所有権 | ||
| 用途地域 | 第一種中高層住居専用地域 | 地目 | 宅地 | ||
| 私道負担 | - | セットバック | - | ||
| 建ぺい率 | 60%/-/- | 容積率 | 200%/-/- | ||
| 接道状況 | 南西公道5.93m/東側公道5.72m | 都市計画 | - | ||
| 国土法届出 | - | 管理形態 | 自主管理 | ||
| 管理会社 | - | 分譲会社 | - | ||
| 施工会社 | - | 設計会社 | - | ||
| 取引態様 | 仲介 | 小学校学区 | - | ||
| 周辺情報 | ■サミットストア 松陰神社前店まで約6分 ■セブンイレブン 世田谷若林4丁目店まで約3分 ■くすりセイジョー 松陰神社駅前店まで約5分 |
現況 | 空室 | ||
| 引渡し | *** | 更新日 | 2025年11月15日 | ||
※建物周辺情報はGoogleMapを使用しており、実際とは若干異なる場合がございます。
掲載情報について

外観 物件画像1