新築鉄骨造3階建!京王線「笹塚」駅徒歩7分!
【特徴・設備】
■Wi-Fi完備
■3路線利用可能
■快速・急行・特急停車駅
■鉄骨造
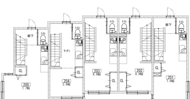
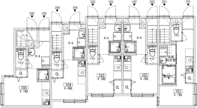
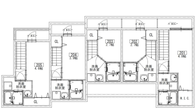
■総戸数10戸(1R、1DK)
利回り 4.30%
年間予定賃料収入 13,560,000円

物件検索より最新の物件をお探しください。
| 価格 | ***万円 |
毎月の返済額 (目安) |
|
|---|---|---|---|
| 想定利回り |
***%
|
想定年間賃料 |
***万円
|
| 築年月 | 2025年6月 | 間取り | 1R、1DK |
| 専有面積/建物面積 | 238.48m2 | 土地面積 | 152.15m2 |
| 所在地 | 東京都世田谷区大原1 | ||
|---|---|---|---|
| 交通 |
京王線「笹塚駅」徒歩7分 京王井の頭線「下北沢駅」徒歩12分 | ||
【特徴・設備】
■Wi-Fi完備
■3路線利用可能
■快速・急行・特急停車駅
■鉄骨造
■総戸数10戸(1R、1DK)
利回り 4.30%
年間予定賃料収入 13,560,000円

| 物件名 | ソルナクレイシア笹塚 | ||||
|---|---|---|---|---|---|
| 種別 | 一棟アパート | ||||
| 所在地 | 東京都世田谷区大原1 | ||||
| 交通 |
京王線「笹塚駅」徒歩7分 京王井の頭線「下北沢駅」徒歩12分 京王線「代田橋駅」徒歩11分 小田急線「東北沢駅」徒歩13分 |
||||
| 問合せ番号 | 3821 | ||||
| 物件特徴 | 低層マンション | ||||
| 物件条件 | - | ||||
| 価格 | ***万円 | 想定利回り | ***% | ||
| 想定年間賃料 | ***万円 | 管理費 | ***円/月 | ||
| 修繕積立金 | ***円/月 | その他費用 | *** | ||
| 所在階 | - | 間取り | - | ||
| 方角 | - | 専有面積/建物面積 | 238.48m2 | ||
| 土地面積 | 152.15m2 | バルコニー面積 | - | ||
| 建物構造 | 鉄骨造 | 築年月 | 2025年6月 | ||
| 総戸数 | 10戸 | 総階数 | 地上3階 | ||
| 駐車場 | - | バイク置き場 | - | ||
| 駐輪場 | - | 土地権利 | 所有権 | ||
| 用途地域 | 第一種中高層住居専用地域 | 地目 | 宅地 | ||
| 私道負担 | - | セットバック | 済 | ||
| 建ぺい率 | 60%/-/- | 容積率 | 160%/-/- | ||
| 接道状況 | - | 都市計画 | 市街化区域 | ||
| 国土法届出 | - | 管理形態 | 自主管理 | ||
| 管理会社 | - | 分譲会社 | - | ||
| 施工会社 | - | 設計会社 | - | ||
| 取引態様 | 仲介 | 小学校学区 | - | ||
| 周辺情報 | - | 現況 | 賃貸中 | ||
| 引渡し | *** | 更新日 | 2026年1月5日 | ||
※建物周辺情報はGoogleMapを使用しており、実際とは若干異なる場合がございます。
掲載情報について

外観 物件画像1