墨田区八広4丁目 戸建て 3915

  • 総合トップ
  • 中古マンション
  • 一戸建て・土地
  • 投資・収益物件
  • 売りたい[売却査定]
  • 貸したい[賃料査定]

墨田区八広4丁目 戸建て 3915

恵比寿不動産の強み
  • 戸建
  • 店舗・事務所
価格
3,828
毎月の返済額
(目安)
loansimulationIcon
想定利回り
6.00%
想定年間賃料
229.7
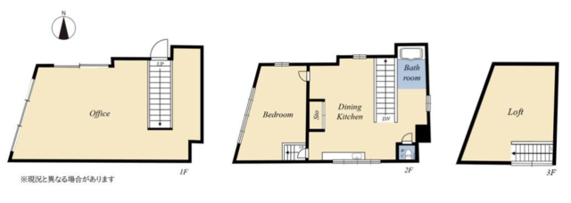
築年月 - 間取り
専有面積/建物面積 95.28m2 土地面積 52.04m2
所在地
交通

オーナーチェンジ物件!二世帯住宅(分離型)!「八広」駅徒歩9分!

【特徴・設備】
■幅員14m超の公道に面す北西角地
■東京メトロ半蔵門線や都営浅草線も使いやすい立地です
■木造3階建て

利回り 6.00%
年間予定賃料収入 2,296,800円

2冠達成 恵比寿不動産は物件数No.1 中古マンション数No.1

お問い合わせはこちらから

contact us
オフィス内観写真
オフィス外観写真

恵比寿不動産までお気軽にお問合せください

お電話でのお問い合わせはこちら:03-6421-0543 10:00 - 19:00 (水曜定休)

恵比寿不動産 渋谷区東3-25-11 TOKYU REIT恵比寿ビル4階店舗情報

リフォーム無料お見積りサービス

物件概要

物件名 墨田区八広4丁目 戸建て
種別 戸建 /店舗・事務所
所在地
交通
問合せ番号 3915
物件特徴 低層マンション
物件条件 -
価格 3,828 想定利回り 6.00%
想定年間賃料 229.7 管理費 -
修繕積立金 - その他費用 -
所在階 - 間取り -
方角 - 専有面積/建物面積 95.28m2
土地面積 52.04m2 バルコニー面積 -
建物構造 木造 築年月 -
総戸数 - 総階数 地上3階 
駐車場 なし バイク置き場 -
駐輪場 - 土地権利 所有権
用途地域 近隣商業地域 地目 -
私道負担 - セットバック
建ぺい率 80%/-/- 容積率 400%/-/-
接道状況 北側、私道、約2.2m 西側、公道、約14.4m 都市計画 市街化区域
国土法届出 - 管理形態 自主管理
管理会社 - 分譲会社 -
施工会社 - 設計会社 -
取引態様 仲介 小学校学区 -
周辺情報 ■セブンイレブン墨田八広4丁目店 約300m
■ビッグ・エー墨田八広店 約200m
■吾嬬西公園 約150m
■墨田八広郵便局 約28m
■東京都済生会向島病院 約1,000m
■うれしい保育園 八広 約300m
■墨田区立八広小学校 約750m
■墨田区立吾嬬第二中学校 約450m
現況 賃貸中
引渡し 相談 更新日 2025年10月3日

備考

墨田区八広4丁目 戸建て 3915 のローンシミュレーション

借入金額
3,828
頭金
毎月の返済額
頭金
支払い額万円※半角数字
金利
  • %※半角数字
返済年数
  • ※元利均等返済方式、最大優遇の場合で計算しています。
  • ※融資には個別審査があり、審査結果により、貸出条件(金利・貸出期間・借入額)が異なる場合がございます。
  • ※不動産のご購入に際しましては物件価格以外にその他諸費用が必要となります。
    諸費用に関する詳細につきましてはお問い合わせ下さいませ。

周辺地図

※建物周辺情報はGoogleMapを使用しており、実際とは若干異なる場合がございます。

掲載情報について

  • ※本掲載情報と現況に差異がある場合、現況を優先いたします。
  • ※掲載物件は売却済あるいは売出中止となる場合もあります。
  • ※掲載写真やパース(絵)、または間取図に描かれている家具や車などは、価格に含まれておりません。また、過去に撮影したものをそのまま利用している場合があり、名称・外観・背景等、実際のものとは異なる場合がございます。予めご了承ください。
  • ※仲介物件には所定の仲介手数料(消費税等相当額を含みます)が必要です。
  • ※想定年間賃料は賃貸中の物件については現在の賃料で、新築や空室中、一部空きがある物件については、周辺の賃料相場等に基づき、満室時の場合を想定して算出したものです。
  • ※利回りは現況または満室想定時での単純利回りで、公租公課・共益費・その他当該物件を維持するために必要な費用の控除前のものです。
  • ※賃料収入は、将来にわたって確実に得られることを保証するものではありません。
2冠達成 恵比寿不動産は物件数No.1 中古マンション数No.1

お問い合わせはこちらから

contact us
オフィス内観写真
オフィス外観写真

恵比寿不動産までお気軽にお問合せください

お電話でのお問い合わせはこちら:03-6421-0543 10:00 - 19:00 (水曜定休)

恵比寿不動産 渋谷区東3-25-11 TOKYU REIT恵比寿ビル4階店舗情報

最近見た物件

画像準備中

アジールコフレ中野坂上 4階

  • 3,420
  • 利回り3.83%
  • 東京都中野区本町2-50-10
  • 東京メトロ丸ノ内線「中野坂上駅」徒歩2分
    都営大江戸線「中野坂上駅」徒歩3分
  • 2017年6月
ピアース中野坂上パークフロント 2階 最近見た物件画像

ピアース中野坂上パークフロント 2階

  • 6,980
  • 利回り3.10%
  • 東京都中野区本町2-13-2
  • 東京メトロ丸ノ内線「中野坂上駅」徒歩7分
    都営大江戸線「中野坂上駅」徒歩7分
  • 2019年4月
ライオンズマンション麻布十番コート 4階 最近見た物件画像

ライオンズマンション麻布十番コート 4階

  • 4,000
  • 利回り4.29%
  • 東京都港区麻布十番2-21-8
  • 東京メトロ南北線「麻布十番駅」徒歩1分
    都営大江戸線「麻布十番駅」徒歩1分
  • 1982年2月
パレステュディオ赤坂弐番館 3階 最近見た物件画像

パレステュディオ赤坂弐番館 3階

  • 3,370
  • 利回り3.88%
  • 東京都港区赤坂8-8-1
  • 東京メトロ千代田線「乃木坂駅」徒歩7分
    東京メトロ銀座線「青山一丁目駅」徒歩9分
  • 2004年6月
杉並区梅里1丁目 ⼀棟アパート 4164 最近見た物件画像

杉並区梅里1丁目 ⼀棟アパート 4164

  • 8,000
  • 利回り3.33%
  • 東京都杉並区梅里1-4-47
  • 東京メトロ丸ノ内線「新高円寺駅」徒歩5分
    JR中央・総武線「高円寺駅」徒歩16分
  • 1965年1月
リバーサイド凌宇 最近見た物件画像

リバーサイド凌宇

  • 33,500
  • 利回り4.90%
  • 東京都江東区冬木4-5
  • 都営大江戸線「門前仲町駅」徒歩9分
    東京メトロ東西線「門前仲町駅」徒歩9分
  • 1989年1月