マ・メゾン西荻窪

  • 総合トップ
  • 中古マンション
  • 一戸建て・土地
  • 投資・収益物件
  • 売りたい[売却査定]
  • 貸したい[賃料査定]

マ・メゾン西荻窪

恵比寿不動産の強み
  • 一棟マンション
価格
35,800
毎月の返済額
(目安)
loansimulationIcon
想定利回り
4.89%
想定年間賃料
1752.4
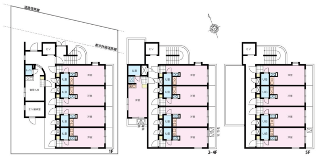
築年月 1991年5月 間取り 1R
専有面積/建物面積 427.19m2 土地面積 231.40m2
所在地
交通

オーナーチェンジ物件!2駅2路線利用可能

【特徴・設備】
■大規模改修工事実施済み。(令和6年10月完了)
■エレベーターリニューアル工事(令和7年10月実施予定)
■RC造り5階建て
■1R 23 戸

利回り 4.89%
年間予定賃料収入 17,524,152円

2冠達成 恵比寿不動産は物件数No.1 中古マンション数No.1

お問い合わせはこちらから

contact us
オフィス内観写真
オフィス外観写真

恵比寿不動産までお気軽にお問合せください

お電話でのお問い合わせはこちら:03-6421-0543 10:00 - 19:00 (水曜定休)

恵比寿不動産 渋谷区東3-25-11 TOKYU REIT恵比寿ビル4階店舗情報

リフォーム無料お見積りサービス

物件概要

物件名 マ・メゾン西荻窪
種別 一棟マンション
所在地
交通
問合せ番号 4119
物件特徴 なし
物件条件 -
価格 35,800 想定利回り 4.89%
想定年間賃料 1752.4 管理費 -
修繕積立金 - その他費用 -
所在階 - 間取り -
方角 - 専有面積/建物面積 427.19m2
土地面積 231.40m2 バルコニー面積 -
建物構造 RC 築年月 1991年5月
総戸数 23戸 総階数 地上5階 
駐車場 バイク置き場 有り
駐輪場 有り 土地権利 所有権
用途地域 第二種住居地域 地目 宅地
私道負担 - セットバック -
建ぺい率 60%/-/- 容積率 200%/-/-
接道状況 北側公道 幅員約11.0m、東側 公道 幅員約5.0m 都市計画 市街化区域
国土法届出 - 管理形態 自主管理
管理会社 - 分譲会社 -
施工会社 - 設計会社 -
取引態様 仲介 小学校学区 -
周辺情報 ■まいばすけっと 杉並宮前5丁目店まで約2分
■ファミリーマート 杉並宮前五丁目店まで約2分
■サンドラッグ 杉並宮前店まで約2分
現況 賃貸中
引渡し 相談 更新日 2025年10月17日

備考

検査済証あり。境界確定済み。都市計画道路あり

設備

  • エレベーター
  • 宅配ボックス
  • バイク置き場
  • 駐輪場

マ・メゾン西荻窪 のローンシミュレーション

借入金額
35,800
頭金
毎月の返済額
頭金
支払い額万円※半角数字
金利
  • %※半角数字
返済年数
  • ※元利均等返済方式、最大優遇の場合で計算しています。
  • ※融資には個別審査があり、審査結果により、貸出条件(金利・貸出期間・借入額)が異なる場合がございます。
  • ※不動産のご購入に際しましては物件価格以外にその他諸費用が必要となります。
    諸費用に関する詳細につきましてはお問い合わせ下さいませ。

周辺地図

※建物周辺情報はGoogleMapを使用しており、実際とは若干異なる場合がございます。

掲載情報について

  • ※本掲載情報と現況に差異がある場合、現況を優先いたします。
  • ※掲載物件は売却済あるいは売出中止となる場合もあります。
  • ※掲載写真やパース(絵)、または間取図に描かれている家具や車などは、価格に含まれておりません。また、過去に撮影したものをそのまま利用している場合があり、名称・外観・背景等、実際のものとは異なる場合がございます。予めご了承ください。
  • ※仲介物件には所定の仲介手数料(消費税等相当額を含みます)が必要です。
  • ※想定年間賃料は賃貸中の物件については現在の賃料で、新築や空室中、一部空きがある物件については、周辺の賃料相場等に基づき、満室時の場合を想定して算出したものです。
  • ※利回りは現況または満室想定時での単純利回りで、公租公課・共益費・その他当該物件を維持するために必要な費用の控除前のものです。
  • ※賃料収入は、将来にわたって確実に得られることを保証するものではありません。
2冠達成 恵比寿不動産は物件数No.1 中古マンション数No.1

お問い合わせはこちらから

contact us
オフィス内観写真
オフィス外観写真

恵比寿不動産までお気軽にお問合せください

お電話でのお問い合わせはこちら:03-6421-0543 10:00 - 19:00 (水曜定休)

恵比寿不動産 渋谷区東3-25-11 TOKYU REIT恵比寿ビル4階店舗情報

最近見た物件

ザ・プレミアムキューブジー大崎 5階 最近見た物件画像

ザ・プレミアムキューブジー大崎 5階

  • 6,500
  • 利回り3.40%
  • 東京都品川区西品川2-2-25
  • JR山手線「大崎駅」徒歩9分
    東急大井町線「下神明駅」徒歩10分
  • 2020年4月
ステージグランデ新中野アジールコート 2階 最近見た物件画像

ステージグランデ新中野アジールコート 2階

  • 3,000
  • 利回り3.76%
  • 東京都中野区本町5-33-2
  • 東京メトロ丸ノ内線「中野新橋駅」徒歩6分
    東京メトロ丸ノ内線「中野富士見町駅」徒歩7分
  • 2020年3月
パレス池田山 3階 最近見た物件画像

パレス池田山 3階

  • 3,200
  • 利回り5.10%
  • 東京都品川区東五反田5-2-5
  • JR山手線「五反田駅」徒歩8分
    JR山手線「目黒駅」徒歩10分
  • 1981年3月
芝浦ベイヒルズ 4階 最近見た物件画像

芝浦ベイヒルズ 4階

  • 3,980
  • 利回り3.78%
  • 東京都港区芝浦1-11-7
  • JR山手線「田町駅」徒歩8分
    JR京浜東北線「田町駅」徒歩8分
  • 2016年5月
アベリア中野 最近見た物件画像

アベリア中野

  • 28,350
  • 利回り4.00%
  • 東京都中野区弥生町4-4-14
  • 東京メトロ丸ノ内線「中野新橋駅」徒歩7分
  • 2017年3月
MANNA A・B棟 最近見た物件画像

MANNA A・B棟

  • 32,800
  • 利回り4.39%
  • 東京都中野区東中野1-37-16
  • JR中央・総武線「東中野駅」徒歩4分
    東京メトロ丸ノ内線「中野坂上駅」徒歩10分
  • 2020年12月