アーバネージュ武蔵新田

  • 総合トップ
  • 中古マンション
  • 一戸建て・土地
  • 投資・収益物件
  • 売りたい[売却査定]
  • 貸したい[賃料査定]

アーバネージュ武蔵新田

恵比寿不動産の強み
  • 一棟アパート
価格
15,800
毎月の返済額
(目安)
loansimulationIcon
想定利回り
4.28%
想定年間賃料
676.8
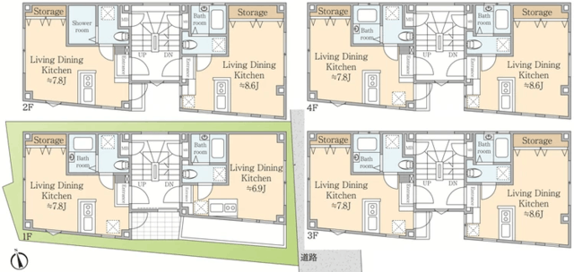
築年月 2015年10月 間取り 1R
専有面積/建物面積 173.00m2 土地面積 64.65m2
所在地
交通

全8戸の安定した収益ポテンシャル!3駅利用可能な優れた通勤利便性!

【特徴・設備】
■東急多摩川線「武蔵新田」駅徒歩約4分の好立地
■オーナーチェンジ物件
■2015年築のモダンな建物で将来の維持コストを抑制
■羽田空港まで車で30分以内の好アクセス
■需要が高まる大田区の住宅地に所在

利回り 4.28%
年間予定賃料収入 6,768,000円

2冠達成 恵比寿不動産は物件数No.1 中古マンション数No.1

お問い合わせはこちらから

contact us
オフィス内観写真
オフィス外観写真

恵比寿不動産までお気軽にお問合せください

お電話でのお問い合わせはこちら:03-6421-0543 10:00 - 19:00 (水曜定休)

恵比寿不動産 渋谷区東3-25-11 TOKYU REIT恵比寿ビル4階店舗情報

リフォーム無料お見積りサービス

物件概要

物件名 アーバネージュ武蔵新田
種別 一棟アパート
所在地
交通
問合せ番号 4138
物件特徴 低層マンション
物件条件 -
価格 15,800 想定利回り 4.28%
想定年間賃料 676.8 管理費 -
修繕積立金 - その他費用 -
所在階 - 間取り -
方角 - 専有面積/建物面積 173.00m2
土地面積 64.65m2 バルコニー面積 -
建物構造 鉄骨造 築年月 2015年10月
総戸数 8戸 総階数 地上3階 
駐車場 バイク置き場 -
駐輪場 - 土地権利 所有権
用途地域 準住居地域 地目 宅地
私道負担 - セットバック -
建ぺい率 60%/-/- 容積率 300%/-/-
接道状況 東側公道 幅員約8.2m 都市計画 市街化区域
国土法届出 - 管理形態 自主管理
管理会社 - 分譲会社 -
施工会社 株式会社宮前建設 設計会社 -
取引態様 仲介 小学校学区 -
周辺情報 ■サミットストア 大田千鳥町店まで約3分
■ミニストップ 下丸子1丁目店まで約3分
■くすりセイジョー 武蔵新田店まで約3分
現況 賃貸中
引渡し 相談 更新日 2025年10月21日

備考

アーバネージュ武蔵新田 のローンシミュレーション

借入金額
15,800
頭金
毎月の返済額
頭金
支払い額万円※半角数字
金利
  • %※半角数字
返済年数
  • ※元利均等返済方式、最大優遇の場合で計算しています。
  • ※融資には個別審査があり、審査結果により、貸出条件(金利・貸出期間・借入額)が異なる場合がございます。
  • ※不動産のご購入に際しましては物件価格以外にその他諸費用が必要となります。
    諸費用に関する詳細につきましてはお問い合わせ下さいませ。

周辺地図

※建物周辺情報はGoogleMapを使用しており、実際とは若干異なる場合がございます。

掲載情報について

  • ※本掲載情報と現況に差異がある場合、現況を優先いたします。
  • ※掲載物件は売却済あるいは売出中止となる場合もあります。
  • ※掲載写真やパース(絵)、または間取図に描かれている家具や車などは、価格に含まれておりません。また、過去に撮影したものをそのまま利用している場合があり、名称・外観・背景等、実際のものとは異なる場合がございます。予めご了承ください。
  • ※仲介物件には所定の仲介手数料(消費税等相当額を含みます)が必要です。
  • ※想定年間賃料は賃貸中の物件については現在の賃料で、新築や空室中、一部空きがある物件については、周辺の賃料相場等に基づき、満室時の場合を想定して算出したものです。
  • ※利回りは現況または満室想定時での単純利回りで、公租公課・共益費・その他当該物件を維持するために必要な費用の控除前のものです。
  • ※賃料収入は、将来にわたって確実に得られることを保証するものではありません。
2冠達成 恵比寿不動産は物件数No.1 中古マンション数No.1

お問い合わせはこちらから

contact us
オフィス内観写真
オフィス外観写真

恵比寿不動産までお気軽にお問合せください

お電話でのお問い合わせはこちら:03-6421-0543 10:00 - 19:00 (水曜定休)

恵比寿不動産 渋谷区東3-25-11 TOKYU REIT恵比寿ビル4階店舗情報

最近見た物件

パークシティ武蔵小杉ミッドスカイタワー 27階 最近見た物件画像

パークシティ武蔵小杉ミッドスカイタワー 27階

  • 8,200
  • 利回り3.51%
  • 神奈川県川崎市中原区新丸子東3丁目1100-12
  • 東急東横線「武蔵小杉駅」徒歩2分
    JR横須賀線「武蔵小杉駅」徒歩4分
  • 2008年8月
杉並区桃井4丁目 戸建て 3900 最近見た物件画像

杉並区桃井4丁目 戸建て 3900

  • 14,800
  • 利回り-
  • 東京都杉並区桃井4
  • JR中央・総武線「西荻窪駅」徒歩15分
    西武新宿線「上井草駅」徒歩23分
  • 1984年12月
クリオレジダンス東京 3階 最近見た物件画像

クリオレジダンス東京 3階

  • 9,000
  • 利回り2.80%
  • 東京都江東区塩浜2-7-5
  • 東京メトロ東西線「木場駅」徒歩11分
    JR京葉線「潮見駅」徒歩16分
  • 2000年2月
ブリリア銀座id 2階 最近見た物件画像

ブリリア銀座id 2階

  • 5,980
  • 利回り2.53%
  • 東京都中央区銀座2-13-11
  • 都営浅草線「東銀座駅」徒歩2分
    東京メトロ有楽町線「新富町駅」徒歩4分
  • 2004年12月
渋谷ヒルトップ 9階 最近見た物件画像

渋谷ヒルトップ 9階

  • 6,280
  • 利回り2.60%
  • 東京都渋谷区道玄坂1-22-1
  • 京王井の頭線「渋谷駅」徒歩3分
    JR山手線「渋谷駅」徒歩7分
  • 2016年11月
エル・コモド下丸子 3階 最近見た物件画像

エル・コモド下丸子 3階

  • 3,050
  • 利回り4.76%
  • 東京都大田区下丸子3-22-15
  • 東急多摩川線「下丸子駅」徒歩5分
    東急池上線「千鳥町駅」徒歩11分
  • 1997年9月