プレミアムキューブ大崎ドゥ 3階

  • 総合トップ
  • 中古マンション
  • 一戸建て・土地
  • 投資・収益物件
  • 売りたい[売却査定]
  • 貸したい[賃料査定]

プレミアムキューブ大崎ドゥ 3階

恵比寿不動産の強み
  • 区分マンション
価格
3,500
毎月の返済額
(目安)
loansimulationIcon
想定利回り
3.68%
想定年間賃料
129.0
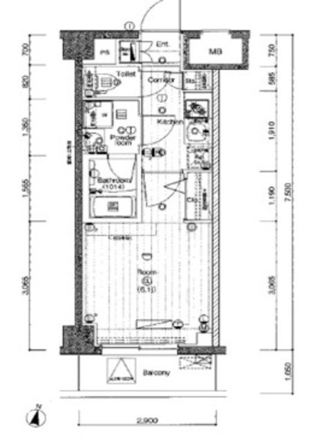
築年月 2016年3月 間取り 1K
専有面積/建物面積 21.75m2 土地面積 -
所在地
交通

3階部分、南東向き住戸!

【特徴・設備】
■洋室は窓あり
■家具の配置がしやすい間取り
■システムキッチン
■収納あり
■独立洗面台
■室内洗濯置き場あり
■バルコニーあり

現在総賃料107,500円で賃貸中。表面利回りは3.68%で稼働中。

2冠達成 恵比寿不動産は物件数No.1 中古マンション数No.1

お問い合わせはこちらから

contact us
オフィス内観写真
オフィス外観写真

恵比寿不動産までお気軽にお問合せください

お電話でのお問い合わせはこちら:03-6421-0543 10:00 - 19:00 (水曜定休)

恵比寿不動産 渋谷区東3-25-11 TOKYU REIT恵比寿ビル4階店舗情報

リフォーム無料お見積りサービス

このマンションの賃貸物件も取り扱っております。詳しくは恵比寿不動産の賃貸情報へ

物件概要

物件名 プレミアムキューブ大崎ドゥ
種別 区分マンション
所在地
交通
問合せ番号 4326
物件特徴 デザイナーズ
物件条件 ペット可
価格 3,500 想定利回り 3.68%
想定年間賃料 129.0 管理費 10,440円/月
修繕積立金 - その他費用 -
所在階 3階 間取り 1K
方角 南東 専有面積/建物面積 21.75m2
土地面積 - バルコニー面積 3.04m2
建物構造 RC 築年月 2016年3月
総戸数 27戸 総階数 地上5階 
駐車場 - バイク置き場 -
駐輪場 土地権利 所有権
用途地域 第一種住居地域 地目 -
私道負担 - セットバック -
建ぺい率 - 容積率 -
接道状況 - 都市計画 -
国土法届出 - 管理形態 巡回管理
管理会社 株式会社ヴェリタス・インベストメント 分譲会社 株式会社ヴェリタス・インベストメント
施工会社 株式会社ヴェリタス・インベストメント 設計会社 -
取引態様 - 小学校学区 御殿山小学校
周辺情報 ■成城石井ゲートシティ大崎店(スーパー)まで約6分
■ミニストップ北品川5丁目店(コンビニ)まで約1分
■フタバ薬局品川店(ドラックストア)まで約4分
現況 賃貸中
引渡し 相談 更新日 2026年3月24日

備考

設備

  • エレベーター
  • オートロック
  • 宅配ボックス
  • TVドアホン
  • 駐輪場
  • BS
  • CS
  • インターネット
  • ペット可
  • バス・トイレ別
  • 独立洗面台
  • 追い焚き
  • 温水洗浄便座
  • 浴室乾燥機
  • システムキッチン
  • 浄水器
  • エアコン
  • フローリング
  • 南向き

プレミアムキューブ大崎ドゥ 3階 のローンシミュレーション

借入金額
3,500
頭金
毎月の返済額
頭金
支払い額万円※半角数字
金利
  • %※半角数字
返済年数
  • ※元利均等返済方式、最大優遇の場合で計算しています。
  • ※融資には個別審査があり、審査結果により、貸出条件(金利・貸出期間・借入額)が異なる場合がございます。
  • ※不動産のご購入に際しましては物件価格以外にその他諸費用が必要となります。
    諸費用に関する詳細につきましてはお問い合わせ下さいませ。

周辺地図

※建物周辺情報はGoogleMapを使用しており、実際とは若干異なる場合がございます。

掲載情報について

  • ※本掲載情報と現況に差異がある場合、現況を優先いたします。
  • ※掲載物件は売却済あるいは売出中止となる場合もあります。
  • ※掲載写真やパース(絵)、または間取図に描かれている家具や車などは、価格に含まれておりません。また、過去に撮影したものをそのまま利用している場合があり、名称・外観・背景等、実際のものとは異なる場合がございます。予めご了承ください。
  • ※仲介物件には所定の仲介手数料(消費税等相当額を含みます)が必要です。
  • ※想定年間賃料は賃貸中の物件については現在の賃料で、新築や空室中、一部空きがある物件については、周辺の賃料相場等に基づき、満室時の場合を想定して算出したものです。
  • ※利回りは現況または満室想定時での単純利回りで、公租公課・共益費・その他当該物件を維持するために必要な費用の控除前のものです。
  • ※賃料収入は、将来にわたって確実に得られることを保証するものではありません。
2冠達成 恵比寿不動産は物件数No.1 中古マンション数No.1

お問い合わせはこちらから

contact us
オフィス内観写真
オフィス外観写真

恵比寿不動産までお気軽にお問合せください

お電話でのお問い合わせはこちら:03-6421-0543 10:00 - 19:00 (水曜定休)

恵比寿不動産 渋谷区東3-25-11 TOKYU REIT恵比寿ビル4階店舗情報

このマンションの賃貸物件も取り扱っております。詳しくは恵比寿不動産の賃貸情報へ

最近見た物件

画像準備中

メゾン西荻 4階

  • 2,740
  • 利回り4.40%
  • 東京都杉並区西荻南3-8-16
  • JR中央・総武線「西荻窪駅」徒歩2分
  • 1988年2月
外観

プレミアムキューブ大崎ドゥ 3階

  • 3,500
  • 利回り3.68%
  • 東京都品川区北品川4-9-7
  • JR山手線「大崎駅」徒歩9分
    京急本線「北品川駅」徒歩11分
  • 2016年3月