HMKビル

  • 総合トップ
  • 中古マンション
  • 一戸建て・土地
  • 投資・収益物件
  • 売りたい[売却査定]
  • 貸したい[賃料査定]

HMKビル
新着

恵比寿不動産の強み
  • 一棟売りビル
  • 店舗・事務所
価格
11,500
毎月の返済額
(目安)
loansimulationIcon
想定利回り
7.01%
想定年間賃料
806.4
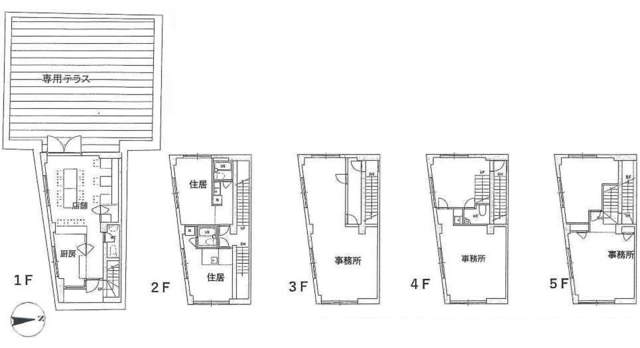
築年月 1969年12月 間取り
専有面積/建物面積 193.50m2 土地面積 137.69m2
所在地
交通

自社ビルとして・収益ビルとして!最寄り「荻窪」駅徒歩6分!

【特徴・設備】
■JR中央本線・総武線、丸ノ内線「荻窪」駅徒歩6分
■鉄骨造5階建て
■事務所・居宅
■現況空室

満室想定利回り 7.01%
満室年間予定賃料収入 8,064,000

2冠達成 恵比寿不動産は物件数No.1 中古マンション数No.1

お問い合わせはこちらから

contact us
オフィス内観写真
オフィス外観写真

恵比寿不動産までお気軽にお問合せください

お電話でのお問い合わせはこちら:03-6421-0543 10:00 - 19:00 (水曜定休)

恵比寿不動産 渋谷区東3-25-11 TOKYU REIT恵比寿ビル4階店舗情報

リフォーム無料お見積りサービス

物件概要

物件名 HMKビル
種別 一棟売りビル /店舗・事務所
所在地
交通
問合せ番号 4380
物件特徴 なし
物件条件 -
価格 11,500 想定利回り 7.01%
想定年間賃料 806.4 管理費 -
修繕積立金 - その他費用 -
所在階 - 間取り -
方角 - 専有面積/建物面積 193.50m2
土地面積 137.69m2 バルコニー面積 -
建物構造 RC 築年月 1969年12月
総戸数 - 総階数 地上5階 
駐車場 バイク置き場 -
駐輪場 - 土地権利 所有権
用途地域 近隣商業地域 地目 宅地
私道負担 - セットバック -
建ぺい率 80%/-/- 容積率 300%/-/-
接道状況 東側公道 幅員約33m 接道約4.26 都市計画 市街化区域
国土法届出 - 管理形態 自主管理
管理会社 - 分譲会社 -
施工会社 - 設計会社 -
取引態様 仲介 小学校学区 -
周辺情報 ■まいばすけっと 荻窪四面道店まで約3分
■ファミリーマート 杉並上荻二丁目店まで約2分
■薬マツモトキヨシ 荻窪店まで約2分
現況 空室
引渡し 相談 更新日 2026年1月22日

備考

HMKビル のローンシミュレーション

借入金額
11,500
頭金
毎月の返済額
頭金
支払い額万円※半角数字
金利
  • %※半角数字
返済年数
  • ※元利均等返済方式、最大優遇の場合で計算しています。
  • ※融資には個別審査があり、審査結果により、貸出条件(金利・貸出期間・借入額)が異なる場合がございます。
  • ※不動産のご購入に際しましては物件価格以外にその他諸費用が必要となります。
    諸費用に関する詳細につきましてはお問い合わせ下さいませ。

周辺地図

※建物周辺情報はGoogleMapを使用しており、実際とは若干異なる場合がございます。

掲載情報について

  • ※本掲載情報と現況に差異がある場合、現況を優先いたします。
  • ※掲載物件は売却済あるいは売出中止となる場合もあります。
  • ※掲載写真やパース(絵)、または間取図に描かれている家具や車などは、価格に含まれておりません。また、過去に撮影したものをそのまま利用している場合があり、名称・外観・背景等、実際のものとは異なる場合がございます。予めご了承ください。
  • ※仲介物件には所定の仲介手数料(消費税等相当額を含みます)が必要です。
  • ※想定年間賃料は賃貸中の物件については現在の賃料で、新築や空室中、一部空きがある物件については、周辺の賃料相場等に基づき、満室時の場合を想定して算出したものです。
  • ※利回りは現況または満室想定時での単純利回りで、公租公課・共益費・その他当該物件を維持するために必要な費用の控除前のものです。
  • ※賃料収入は、将来にわたって確実に得られることを保証するものではありません。
2冠達成 恵比寿不動産は物件数No.1 中古マンション数No.1

お問い合わせはこちらから

contact us
オフィス内観写真
オフィス外観写真

恵比寿不動産までお気軽にお問合せください

お電話でのお問い合わせはこちら:03-6421-0543 10:00 - 19:00 (水曜定休)

恵比寿不動産 渋谷区東3-25-11 TOKYU REIT恵比寿ビル4階店舗情報

最近見た物件

HMKビル 最近見た物件画像

HMKビル

  • 11,500
  • 利回り7.01%
  • 東京都杉並区上荻2-30-16
  • JR中央・総武線「荻窪駅」徒歩6分
  • 1969年12月