劣化等級3級!築5年アパート!満室賃貸中!
【特徴・設備】
■2020年9月築の築浅投資物件
■安心のオートロック
■不在時に便利な宅配BOX完備
■B/T別・人気の独立洗面台
利回り 5.03%
年間予定賃料収入 9,960,000円

| 価格 | 1億9,800万円 |
毎月の返済額 (目安) |
|
|---|---|---|---|
| 想定利回り |
5.03%
|
想定年間賃料 |
996.0万円
|
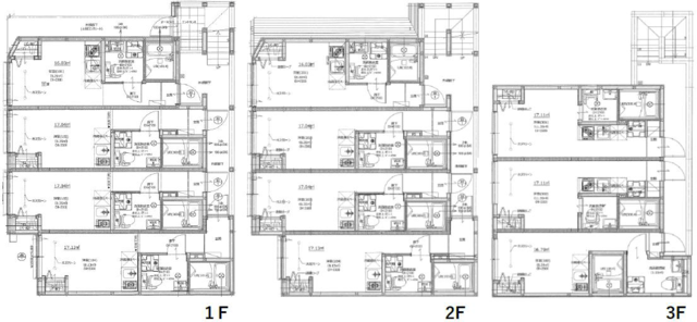
| 築年月 | 2020年9月 | 間取り | 1R |
| 専有面積/建物面積 | 185.50m2 | 土地面積 | 118.37m2 |
| 所在地 | 東京都杉並区堀ノ内3-18-4 | ||
|---|---|---|---|
| 交通 | 東京メトロ丸ノ内線「新高円寺駅」徒歩10分 | ||
【特徴・設備】
■2020年9月築の築浅投資物件
■安心のオートロック
■不在時に便利な宅配BOX完備
■B/T別・人気の独立洗面台
利回り 5.03%
年間予定賃料収入 9,960,000円

| 物件名 | 杉並区堀ノ内3丁目 ⼀棟アパート | ||||
|---|---|---|---|---|---|
| 種別 | 一棟アパート | ||||
| 所在地 | 東京都杉並区堀ノ内3-18-4 | ||||
| 交通 |
東京メトロ丸ノ内線「新高円寺駅」徒歩10分 |
||||
| 問合せ番号 | 4670 | ||||
| 物件特徴 | 低層マンション | ||||
| 物件条件 | - | ||||
| 価格 | 1億9,800万円 | 想定利回り | 5.03% | ||
| 想定年間賃料 | 996.0万円 | 管理費 | - | ||
| 修繕積立金 | - | その他費用 | - | ||
| 所在階 | - | 間取り | - | ||
| 方角 | - | 専有面積/建物面積 | 185.50m2 | ||
| 土地面積 | 118.37m2 | バルコニー面積 | - | ||
| 建物構造 | 木造 | 築年月 | 2020年9月 | ||
| 総戸数 | 11戸 | 総階数 | 地上3階 | ||
| 駐車場 | 無 | バイク置き場 | - | ||
| 駐輪場 | - | 土地権利 | 所有権 | ||
| 用途地域 | 第一種中高層住居専用地域 | 地目 | 宅地 | ||
| 私道負担 | 無 | セットバック | - | ||
| 建ぺい率 | 60%/-/- | 容積率 | 160%/-/- | ||
| 接道状況 | 西側公道約4m | 都市計画 | 市街化区域 | ||
| 国土法届出 | - | 管理形態 | 自主管理 | ||
| 管理会社 | - | 分譲会社 | - | ||
| 施工会社 | - | 設計会社 | - | ||
| 取引態様 | 仲介 | 小学校学区 | - | ||
| 周辺情報 | ■サミットストア妙法寺前店まで約4分 ■ファミリーマート 堀ノ内三丁目水道通り店まで約2分 ■ココカラファイン薬局杉並堀ノ内店まで約5分 |
現況 | 賃貸中 | ||
| 引渡し | 相談 | 更新日 | 2026年4月29日 | ||
・プロパンガス継承
・境界非明示
| 頭金 |
支払い額万円※半角数字
|
|---|---|
| 金利 |
|
| 返済年数 | 年 |
※建物周辺情報はGoogleMapを使用しており、実際とは若干異なる場合がございます。
掲載情報について

外観 物件画像1