豊島区 池袋本町の投資・収益物件一覧

  • 総合トップ
  • 中古マンション
  • 一戸建て・土地
  • 投資・収益物件
  • 売りたい[売却査定]
  • 貸したい[賃料査定]
恵比寿不動産の強み

豊島区 池袋本町の投資・収益物件一覧

検索条件:豊島区 池袋本町

[豊島区]町名を選択してください(複数選択可)

池袋マンションヒルハイム 7階

イケブクロマンションヒルハイム

  • 区分マンション
価格 3,980
利回り 4.07%
所在地 東京都豊島区池袋本町3-19-5
交通 東武東上線下板橋駅」徒歩6分
東武東上線北池袋駅」徒歩11分
JR埼京線板橋駅」徒歩12分
都営三田線板橋区役所前駅」徒歩14分
東武東上線大山駅」徒歩14分
築年月 1971年8月 総階数 地上10階 
構造 SRC 総戸数 43戸
建物面積 48.60m2 間取り 2DK
一言コメント オーナーチェンジ物件!3線利用!南向き!駅前スーパーで買い物便利!

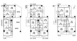
メゾン・ド・コスモマンションと戸建 

メゾン・ド・コスモマンショントコダテ

  • 一棟マンション
  • 戸建
価格 29,000
利回り 5.17%
所在地 東京都豊島区池袋本町2-35-1
交通 東武東上線下板橋駅」徒歩9分
東武東上線北池袋駅」徒歩12分
JR埼京線板橋駅」徒歩15分
築年月 1989年5月 総階数 地上4階 
構造 RC 総戸数 -
建物面積 423.16m2 間取り
価格 8,780
利回り 4.81%
所在地 東京都豊島区池袋本町2-8-8
交通 東武東上線北池袋駅」徒歩9分
東武東上線下板橋駅」徒歩10分
東武東上線大山駅」徒歩11分
JR山手線池袋駅」徒歩15分
築年月 1998年7月 総階数 地上3階 
構造 木造 総戸数 -
建物面積 85.67m2 間取り 4DK
一言コメント オーナーチェンジ物件!池袋本町2丁目・戸建て物件!

メゾンスイメイ

メゾンスイメイ

  • 一棟アパート
価格 9,600
利回り 4.50%
所在地 東京都豊島区池袋本町4-26-3
交通 東武東上線北池袋駅」徒歩4分
JR埼京線板橋駅」徒歩9分
東武東上線下板橋駅」徒歩8分
築年月 1996年4月 総階数 地上2階 
構造 木造 総戸数 4戸
建物面積 128.90m2 間取り 1DK
一言コメント オーナーチェンジの投資物件・45坪のまとまった土地・3駅利用可の便利なロケーション

ご希望の物件が見つからない場合は…

contact us

ご希望の物件が見つからない場合でも
お気軽にお問い合わせください。

売却相談を受けたばかりの公開前の情報や、
売主の意向によってネット広告など
表に公開できない物件もご紹介させて頂きます。