旅館業運営可能!西武池袋線【東長崎】徒歩2分の好立地
【特徴・設備】
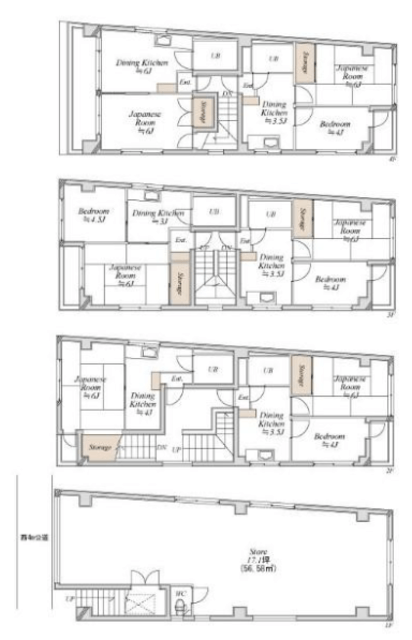
■1F:店舗×1戸・2F~4F:旅館業×6戸
■鉄骨造4階建
■令和7年2月工事完了(外観・入口・室内・共用部)
■都心へのアクセスが良い立地
利回り 6.00%
年間予定賃料収入 11,126,400円

物件検索より最新の物件をお探しください。
| 価格 | ***万円 |
毎月の返済額 (目安) |
|
|---|---|---|---|
| 想定利回り |
***%
|
想定年間賃料 |
***万円
|
| 築年月 | 1988年3月 | 間取り | |
| 専有面積/建物面積 | 232.73m2 | 土地面積 | 73.35m2 |
| 所在地 | 東京都豊島区長崎4-4-8 | ||
|---|---|---|---|
| 交通 |
西武池袋線「東長崎駅」徒歩2分 西武池袋線「池袋駅」徒歩4分 | ||
【特徴・設備】
■1F:店舗×1戸・2F~4F:旅館業×6戸
■鉄骨造4階建
■令和7年2月工事完了(外観・入口・室内・共用部)
■都心へのアクセスが良い立地
利回り 6.00%
年間予定賃料収入 11,126,400円

| 物件名 | サンパレスナガサキ | ||||
|---|---|---|---|---|---|
| 種別 | 一棟売りビル /店舗・事務所 | ||||
| 所在地 | 東京都豊島区長崎4-4-8 | ||||
| 交通 |
西武池袋線「東長崎駅」徒歩2分 西武池袋線「池袋駅」徒歩4分 |
||||
| 問合せ番号 | 3322 | ||||
| 物件特徴 | なし | ||||
| 物件条件 | - | ||||
| 価格 | ***万円 | 想定利回り | ***% | ||
| 想定年間賃料 | ***万円 | 管理費 | ***円/月 | ||
| 修繕積立金 | ***円/月 | その他費用 | *** | ||
| 所在階 | - | 間取り | - | ||
| 方角 | - | 専有面積/建物面積 | 232.73m2 | ||
| 土地面積 | 73.35m2 | バルコニー面積 | - | ||
| 建物構造 | 鉄骨造 | 築年月 | 1988年3月 | ||
| 総戸数 | - | 総階数 | 地上4階 | ||
| 駐車場 | 無 | バイク置き場 | - | ||
| 駐輪場 | - | 土地権利 | 所有権 | ||
| 用途地域 | 商業地域 | 地目 | 宅地 | ||
| 私道負担 | 無 | セットバック | 無 | ||
| 建ぺい率 | 80%/-/- | 容積率 | 400%/-/- | ||
| 接道状況 | 北西側 公道 5.0m | 都市計画 | 市街化区域 | ||
| 国土法届出 | - | 管理形態 | 自主管理 | ||
| 管理会社 | - | 分譲会社 | - | ||
| 施工会社 | - | 設計会社 | - | ||
| 取引態様 | 仲介 | 小学校学区 | - | ||
| 周辺情報 | ■西友 東長崎店まで約1分 ■ローソン 長崎四丁目店まで約1分 ■ウエルシア豊島東長崎店まで約1分 |
現況 | 賃貸中 | ||
| 引渡し | *** | 更新日 | 2025年6月1日 | ||
※建物周辺情報はGoogleMapを使用しており、実際とは若干異なる場合がございます。
掲載情報について

外観 物件画像1