ブリリア辰巳キャナルテラス 12階

  • 総合トップ
  • 中古マンション
  • 一戸建て・土地
  • 投資・収益物件
  • 売りたい[売却査定]
  • 貸したい[賃料査定]

ブリリア辰巳キャナルテラス 12階

恵比寿不動産の強み
  • 区分マンション
価格
7,980
毎月の返済額
(目安)
loansimulationIcon
想定利回り
2.93%
想定年間賃料
234.0
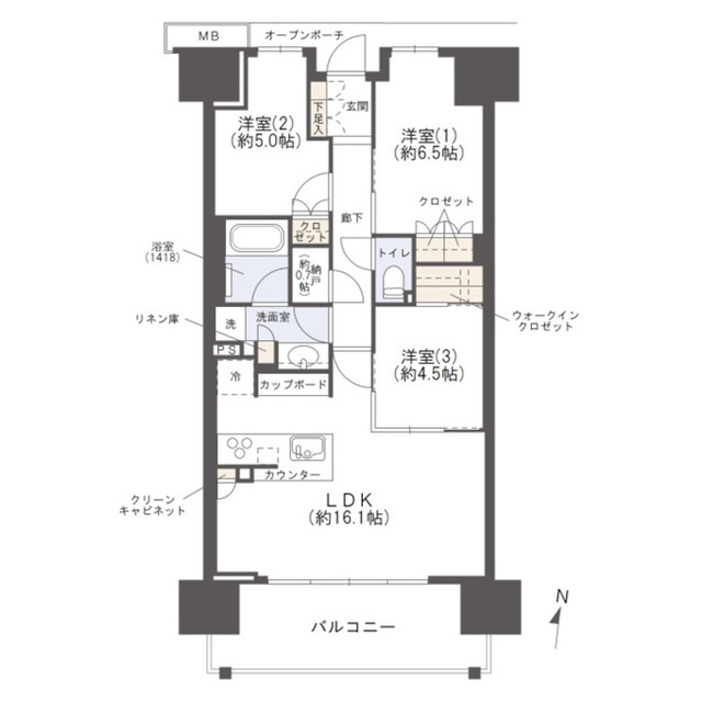
築年月 2011年12月 間取り 3LDK
専有面積/建物面積 73.48m2 土地面積 -
所在地
交通

東京建物(株)分譲『Brillia』シリーズ!232戸の大規模マンション!オーナーチェンジ物件!

【特徴・設備】
■12階部分・南向き
■ミストサウナ、ディスポーザー、床暖房など設備面が充実
■約16.1帖の広々としたLDK
■オープンテラス、スカイテラス、ゲストルーム等、共用部も充実
■ペット飼育可(細則有)
■不在時に便利な宅配ボックス

現在総賃料195,000円で賃貸中。表⾯利回りは2.93%で稼働中です。

2冠達成 恵比寿不動産は物件数No.1 中古マンション数No.1

お問い合わせはこちらから

contact us
オフィス内観写真
オフィス外観写真

恵比寿不動産までお気軽にお問合せください

お電話でのお問い合わせはこちら:03-6421-0543 10:00 - 19:00 (水曜定休)

恵比寿不動産 渋谷区東3-25-11 TOKYU REIT恵比寿ビル4階店舗情報

リフォーム無料お見積りサービス

物件概要

物件名 ブリリア辰巳キャナルテラス
種別 区分マンション
所在地
交通
問合せ番号 3592
物件特徴 大規模マンション
物件条件 ペット可
価格 7,980 想定利回り 2.93%
想定年間賃料 234.0 管理費 11,100円/月
修繕積立金 15,390円/月 その他費用 インターネット使用料:1,079円/月
所在階 12階 間取り 3LDK
方角 専有面積/建物面積 73.48m2
土地面積 - バルコニー面積 12.6m2
建物構造 RC 築年月 2011年12月
総戸数 232戸 総階数 地上15階 
駐車場 有 月額2,000円~17,000円 バイク置き場 有 月額1,800円
駐輪場 有 月額200円 土地権利 所有権
用途地域 準工業地域 地目 -
私道負担 - セットバック -
建ぺい率 - 容積率 -
接道状況 - 都市計画 -
国土法届出 - 管理形態 日勤管理
管理会社 (株)東京建物アメニティサポート 分譲会社 東京建物株式会社/日本土地建物株式会社
施工会社 株式会社長谷工コーポレーション 設計会社 -
取引態様 - 小学校学区 -
周辺情報 ■ファミリーマート辰巳一丁目店  徒歩3分
■ローソン辰巳団地店       徒歩6分
■辰巳共立診療所         徒歩6分
■辰巳の森緑道公園        徒歩3分
■イオン東雲店          徒歩12分
■江東辰巳郵便局         徒歩6分
■江東区立辰巳中学校       徒歩10分
現況 賃貸中
引渡し 相談 更新日 2025年11月24日

備考

設備

  • エレベーター
  • オートロック
  • 宅配ボックス
  • TVドアホン
  • 駐車場
  • バイク置き場
  • 駐輪場
  • ラウンジ
  • フィットネス
  • ゲストルーム
  • パーティールーム
  • 防犯カメラ
  • ペット可
  • バス・トイレ別
  • 独立洗面台
  • 追い焚き
  • 温水洗浄便座
  • システムキッチン
  • カウンターキッチン
  • ディスポーザー
  • 食器洗浄機
  • 床暖房
  • 南向き

ブリリア辰巳キャナルテラス 12階 のローンシミュレーション

借入金額
7,980
頭金
毎月の返済額
頭金
支払い額万円※半角数字
金利
  • %※半角数字
返済年数
  • ※元利均等返済方式、最大優遇の場合で計算しています。
  • ※融資には個別審査があり、審査結果により、貸出条件(金利・貸出期間・借入額)が異なる場合がございます。
  • ※不動産のご購入に際しましては物件価格以外にその他諸費用が必要となります。
    諸費用に関する詳細につきましてはお問い合わせ下さいませ。

周辺地図

※建物周辺情報はGoogleMapを使用しており、実際とは若干異なる場合がございます。

掲載情報について

  • ※本掲載情報と現況に差異がある場合、現況を優先いたします。
  • ※掲載物件は売却済あるいは売出中止となる場合もあります。
  • ※掲載写真やパース(絵)、または間取図に描かれている家具や車などは、価格に含まれておりません。また、過去に撮影したものをそのまま利用している場合があり、名称・外観・背景等、実際のものとは異なる場合がございます。予めご了承ください。
  • ※仲介物件には所定の仲介手数料(消費税等相当額を含みます)が必要です。
  • ※想定年間賃料は賃貸中の物件については現在の賃料で、新築や空室中、一部空きがある物件については、周辺の賃料相場等に基づき、満室時の場合を想定して算出したものです。
  • ※利回りは現況または満室想定時での単純利回りで、公租公課・共益費・その他当該物件を維持するために必要な費用の控除前のものです。
  • ※賃料収入は、将来にわたって確実に得られることを保証するものではありません。
2冠達成 恵比寿不動産は物件数No.1 中古マンション数No.1

お問い合わせはこちらから

contact us
オフィス内観写真
オフィス外観写真

恵比寿不動産までお気軽にお問合せください

お電話でのお問い合わせはこちら:03-6421-0543 10:00 - 19:00 (水曜定休)

恵比寿不動産 渋谷区東3-25-11 TOKYU REIT恵比寿ビル4階店舗情報

最近見た物件

アデナ西蒲田 最近見た物件画像

アデナ西蒲田

  • 22,000
  • 利回り5.94%
  • 東京都大田区西蒲田4-9-6
  • JR京浜東北線「蒲田駅」徒歩12分
    東急池上線「蓮沼駅」徒歩11分
  • 1991年4月
ステージグランデ神楽坂 4階 最近見た物件画像

ステージグランデ神楽坂 4階

  • 3,350
  • 利回り3.94%
  • 東京都新宿区改代町21-2
  • 東京メトロ有楽町線「江戸川橋駅」徒歩4分
    東京メトロ東西線「神楽坂駅」徒歩7分
  • 2011年8月
グランドメゾン上池袋 3階 最近見た物件画像

グランドメゾン上池袋 3階

  • 6,900
  • 利回り3.65%
  • 東京都豊島区上池袋4-9-8
  • 東武東上線「北池袋駅」徒歩8分
    都営三田線「西巣鴨駅」徒歩10分
  • 1991年11月
センチュリー西新宿 4階 最近見た物件画像

センチュリー西新宿 4階

  • 4,600
  • 利回り5.73%
  • 東京都新宿区西新宿4-25-16
  • 都営大江戸線「都庁前駅」徒歩8分
    京王新線「初台駅」徒歩10分
  • 1998年2月
ガーラ渋谷本町 1階 最近見た物件画像

ガーラ渋谷本町 1階

  • 2,990
  • 利回り4.41%
  • 東京都渋谷区本町2-39-18
  • 京王線徒歩5分
    都営大江戸線「西新宿五丁目駅」徒歩11分
  • 1998年10月
外観

スカイコート秋葉原 3階

  • 3,080
  • 利回り3.50%
  • 東京都千代田区外神田5-6-14
  • JR山手線「秋葉原駅」徒歩7分
    東京メトロ日比谷線「秋葉原駅」徒歩7分
  • 2004年3月