MANNA A・B棟

  • 総合トップ
  • 中古マンション
  • 一戸建て・土地
  • 投資・収益物件
  • 売りたい[売却査定]
  • 貸したい[賃料査定]

MANNA A・B棟

恵比寿不動産の強み
  • 一棟アパート
価格
32,800
毎月の返済額
(目安)
loansimulationIcon
想定利回り
4.39%
想定年間賃料
1440.0
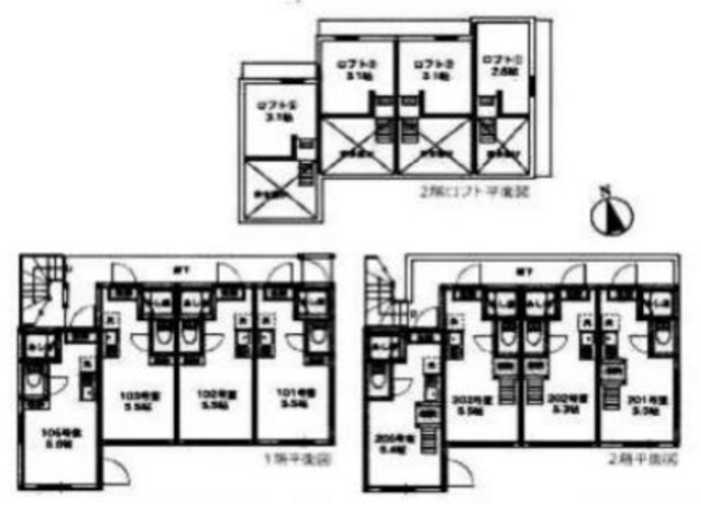
築年月 2020年12月 間取り
専有面積/建物面積 192.11m2 土地面積 174.22m2
所在地
交通

2棟売アパート!オーナーチェンジ物件!満室賃貸中!

【特徴・設備】
■JR中央・総武線「東中野」駅徒歩4分
■2020年12月築
■総戸数 A棟8戸 B棟6戸
■2重ガラス・エアコン・浴室乾燥機付・ウオシュレツト(セパレートトイレ)
■Wi-Fiインタネット12M
■オートロック付き
■劣化対策等級2級(50年住宅)取得
■検査済証あり
■地盤調査対応済み

利回り 4.39%
年間予定賃料収入 14,400,000万円

2冠達成 恵比寿不動産は物件数No.1 中古マンション数No.1

お問い合わせはこちらから

contact us
オフィス内観写真
オフィス外観写真

恵比寿不動産までお気軽にお問合せください

お電話でのお問い合わせはこちら:03-6421-0543 10:00 - 19:00 (水曜定休)

恵比寿不動産 渋谷区東3-25-11 TOKYU REIT恵比寿ビル4階店舗情報

リフォーム無料お見積りサービス

物件概要

物件名 MANNA A・B棟
種別 一棟アパート
所在地
交通
問合せ番号 4096
物件特徴 低層マンション
物件条件 -
価格 32,800 想定利回り 4.39%
想定年間賃料 1440.0 管理費 -
修繕積立金 - その他費用 -
所在階 - 間取り -
方角 - 専有面積/建物面積 192.11m2
土地面積 174.22m2 バルコニー面積 -
建物構造 木造 築年月 2020年12月
総戸数 14戸 総階数 地上2階 
駐車場 バイク置き場 -
駐輪場 - 土地権利 所有権
用途地域 第一種中高層住居専用地域、近隣商業地域 地目 宅地
私道負担 セットバック -
建ぺい率 60%/-/- 容積率 160%/-/-
接道状況 東側 幅員3.8m 都市計画 市街化区域
国土法届出 - 管理形態 自主管理
管理会社 - 分譲会社 -
施工会社 - 設計会社 -
取引態様 仲介 小学校学区 -
周辺情報 ■マルエツ プチ 中野中央店まで約3分
■セブンイレブン 東中野1丁目店まで約1分
■ココカラファイン東中野店まで約7分
現況 賃貸中
引渡し 相談 更新日 2025年10月11日

備考

建蔽率・容積率 60%・160% (A棟)80%・240% (B棟)

設備

  • オートロック
  • インターネット

MANNA A・B棟 のローンシミュレーション

借入金額
32,800
頭金
毎月の返済額
頭金
支払い額万円※半角数字
金利
  • %※半角数字
返済年数
  • ※元利均等返済方式、最大優遇の場合で計算しています。
  • ※融資には個別審査があり、審査結果により、貸出条件(金利・貸出期間・借入額)が異なる場合がございます。
  • ※不動産のご購入に際しましては物件価格以外にその他諸費用が必要となります。
    諸費用に関する詳細につきましてはお問い合わせ下さいませ。

周辺地図

※建物周辺情報はGoogleMapを使用しており、実際とは若干異なる場合がございます。

掲載情報について

  • ※本掲載情報と現況に差異がある場合、現況を優先いたします。
  • ※掲載物件は売却済あるいは売出中止となる場合もあります。
  • ※掲載写真やパース(絵)、または間取図に描かれている家具や車などは、価格に含まれておりません。また、過去に撮影したものをそのまま利用している場合があり、名称・外観・背景等、実際のものとは異なる場合がございます。予めご了承ください。
  • ※仲介物件には所定の仲介手数料(消費税等相当額を含みます)が必要です。
  • ※想定年間賃料は賃貸中の物件については現在の賃料で、新築や空室中、一部空きがある物件については、周辺の賃料相場等に基づき、満室時の場合を想定して算出したものです。
  • ※利回りは現況または満室想定時での単純利回りで、公租公課・共益費・その他当該物件を維持するために必要な費用の控除前のものです。
  • ※賃料収入は、将来にわたって確実に得られることを保証するものではありません。
2冠達成 恵比寿不動産は物件数No.1 中古マンション数No.1

お問い合わせはこちらから

contact us
オフィス内観写真
オフィス外観写真

恵比寿不動産までお気軽にお問合せください

お電話でのお問い合わせはこちら:03-6421-0543 10:00 - 19:00 (水曜定休)

恵比寿不動産 渋谷区東3-25-11 TOKYU REIT恵比寿ビル4階店舗情報

最近見た物件

TOKYOシティトリエ 12階 最近見た物件画像

TOKYOシティトリエ 12階

  • 11,200
  • 利回り2.50%
  • 東京都豊島区西巣鴨1-12-1
  • 東武東上線「北池袋駅」徒歩9分
    JR山手線「大塚駅」徒歩12分
  • 2005年11月
ガリシア中野弥生町 3階 最近見た物件画像

ガリシア中野弥生町 3階

  • 3,580
  • 利回り3.72%
  • 東京都中野区弥生町5-12-11
  • 東京メトロ丸ノ内線「中野富士見町駅」徒歩6分
    東京メトロ丸ノ内線「中野新橋駅」徒歩9分
  • 2017年4月
画像準備中

西蒲田スカイハイツ 6階

  • 3,600
  • 利回り4.00%
  • 東京都大田区西蒲田8-2-1
  • JR京浜東北線「蒲田駅」徒歩3分
  • 1974年7月
シャトー文京 3階 最近見た物件画像

シャトー文京 3階

  • 4,180
  • 利回り4.88%
  • 東京都文京区西片1-15-19
  • 都営三田線「春日駅」徒歩2分
    都営大江戸線「春日駅」徒歩2分
  • 1970年6月
江戸川橋センチュリープラザ21 3階 最近見た物件画像

江戸川橋センチュリープラザ21 3階

  • 4,980
  • 利回り3.61%
  • 東京都文京区関口1-9-11
  • 東京メトロ有楽町線「江戸川橋駅」徒歩2分
    東京メトロ東西線「神楽坂駅」徒歩10分
  • 1991年6月
赤坂タワーレジデンス トップオブザヒル 5階 最近見た物件画像

赤坂タワーレジデンス トップオブザヒル 5階

  • 19,800
  • 利回り1.78%
  • 東京都港区赤坂2-17-50
  • 東京メトロ千代田線「赤坂駅」徒歩4分
    東京メトロ銀座線「溜池山王駅」徒歩5分
  • 2008年4月