中央区銀座3丁目 ⼀棟売りビル 4120

  • 総合トップ
  • 中古マンション
  • 一戸建て・土地
  • 投資・収益物件
  • 売りたい[売却査定]
  • 貸したい[賃料査定]

中央区銀座3丁目 ⼀棟売りビル 4120

恵比寿不動産の強み
  • 一棟売りビル
  • 店舗・事務所
価格
56,570
毎月の返済額
(目安)
loansimulationIcon
想定利回り
3.50%
想定年間賃料
1980.0
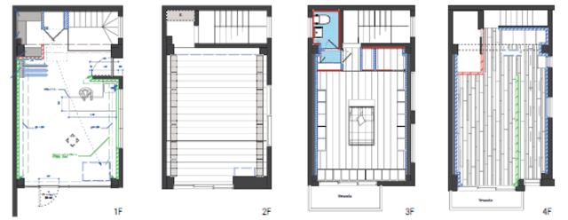
築年月 1961年7月 間取り
専有面積/建物面積 145.04m2 土地面積 47.63m2
所在地
交通

日比谷線・浅草線「東銀座駅」徒歩2分!オーナーチェンジ物件!

【特徴・設備】
■銀座の希少物件
■角地で視認性の高い好立地
■内見可(要相談)
■便利な5 路線5 駅利用可能
■現状:1棟貸 賃貸中

利回り 3.50%
年間予定賃料収入 19,800,000円

2冠達成 恵比寿不動産は物件数No.1 中古マンション数No.1

お問い合わせはこちらから

contact us
オフィス内観写真
オフィス外観写真

恵比寿不動産までお気軽にお問合せください

お電話でのお問い合わせはこちら:03-6421-0543 10:00 - 19:00 (水曜定休)

恵比寿不動産 渋谷区東3-25-11 TOKYU REIT恵比寿ビル4階店舗情報

リフォーム無料お見積りサービス

物件概要

物件名 中央区銀座3丁目 ⼀棟売りビル
種別 一棟売りビル /店舗・事務所
所在地
交通
問合せ番号 4120
物件特徴 なし
物件条件 -
価格 56,570 想定利回り 3.50%
想定年間賃料 1980.0 管理費 -
修繕積立金 - その他費用 -
所在階 - 間取り -
方角 - 専有面積/建物面積 145.04m2
土地面積 47.63m2 バルコニー面積 -
建物構造 RC 築年月 1961年7月
総戸数 - 総階数 地上4階 
駐車場 - バイク置き場 -
駐輪場 - 土地権利 所有権
用途地域 商業地域  地目 宅地
私道負担 - セットバック -
建ぺい率 80%/-/- 容積率 360%/-/-
接道状況 北東側 公道4.0m 南東側 公道6.0m 都市計画 市街化区域
国土法届出 - 管理形態 自主管理
管理会社 - 分譲会社 -
施工会社 - 設計会社 -
取引態様 仲介 小学校学区 -
周辺情報 ■まいばすけっと 築地2丁目店まで約5分
■ファミリーマート 銀座三丁目店まで約1分
■ぱぱす薬局 銀座木挽町店まで約1分
現況 賃貸中
引渡し 相談 更新日 2025年10月17日

備考

中央区銀座3丁目 ⼀棟売りビル 4120 のローンシミュレーション

借入金額
56,570
頭金
毎月の返済額
頭金
支払い額万円※半角数字
金利
  • %※半角数字
返済年数
  • ※元利均等返済方式、最大優遇の場合で計算しています。
  • ※融資には個別審査があり、審査結果により、貸出条件(金利・貸出期間・借入額)が異なる場合がございます。
  • ※不動産のご購入に際しましては物件価格以外にその他諸費用が必要となります。
    諸費用に関する詳細につきましてはお問い合わせ下さいませ。

周辺地図

※建物周辺情報はGoogleMapを使用しており、実際とは若干異なる場合がございます。

掲載情報について

  • ※本掲載情報と現況に差異がある場合、現況を優先いたします。
  • ※掲載物件は売却済あるいは売出中止となる場合もあります。
  • ※掲載写真やパース(絵)、または間取図に描かれている家具や車などは、価格に含まれておりません。また、過去に撮影したものをそのまま利用している場合があり、名称・外観・背景等、実際のものとは異なる場合がございます。予めご了承ください。
  • ※仲介物件には所定の仲介手数料(消費税等相当額を含みます)が必要です。
  • ※想定年間賃料は賃貸中の物件については現在の賃料で、新築や空室中、一部空きがある物件については、周辺の賃料相場等に基づき、満室時の場合を想定して算出したものです。
  • ※利回りは現況または満室想定時での単純利回りで、公租公課・共益費・その他当該物件を維持するために必要な費用の控除前のものです。
  • ※賃料収入は、将来にわたって確実に得られることを保証するものではありません。
2冠達成 恵比寿不動産は物件数No.1 中古マンション数No.1

お問い合わせはこちらから

contact us
オフィス内観写真
オフィス外観写真

恵比寿不動産までお気軽にお問合せください

お電話でのお問い合わせはこちら:03-6421-0543 10:00 - 19:00 (水曜定休)

恵比寿不動産 渋谷区東3-25-11 TOKYU REIT恵比寿ビル4階店舗情報

最近見た物件

エスコート音羽 4階 最近見た物件画像

エスコート音羽 4階

  • 2,800
  • 利回り4.50%
  • 東京都文京区音羽2-1-16
  • 東京メトロ有楽町線「護国寺駅」徒歩2分
    東京メトロ丸ノ内線「茗荷谷駅」徒歩14分
  • 2001年8月
渋谷区初台1丁目 戸建て 3898 最近見た物件画像

渋谷区初台1丁目 戸建て 3898

  • 13,000
  • 利回り2.76%
  • 東京都渋谷区初台1
  • 京王新線「初台駅」徒歩5分
    小田急線「参宮橋駅」徒歩10分
  • 2014年6月
グランド・ガーラ銀座 11階 最近見た物件画像

グランド・ガーラ銀座 11階

  • 5,080
  • 利回り2.71%
  • 東京都中央区銀座1-23-10
  • 東京メトロ有楽町線「新富町駅」徒歩2分
    東京メトロ日比谷線「東銀座駅」徒歩5分
  • 2007年8月
勝どきザ・タワー 12階 最近見た物件画像

勝どきザ・タワー 12階

  • 15,500
  • 利回り2.09%
  • 東京都中央区勝どき5-3-1
  • 都営大江戸線「勝どき駅」徒歩6分
  • 2016年11月
グランド・ガーラ南麻布 2階 最近見た物件画像

グランド・ガーラ南麻布 2階

  • 3,200
  • 利回り3.56%
  • 東京都港区南麻布3-19-21
  • 東京メトロ南北線「白金高輪駅」徒歩10分
    都営三田線「白金高輪駅」徒歩10分
  • 2002年10月
画像準備中

グランポート深沢 1階

  • 14,000
  • 利回り5.90%
  • 東京都世田谷区深沢7-18-3
  • 東急田園都市線「桜新町駅」徒歩19分
    東急大井町線「上野毛駅」徒歩18分
  • 1992年2月