新宿アドレスの希少物件!投資・社員寮・相続対策・民泊に最適!
【特徴・設備】
■4駅3路線利用可能
■ネットワーク防犯カメラ
■オートロック・宅配BOX・メールBOX
■入居者無料Wi-Fi導入
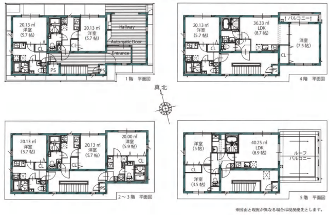
■1K×9戸 1LDK×2戸
■民泊会社一括借上げ
利回り 4.86%
年間予定賃料収入 25,200,000円

| 価格 | 5億1,800万円 |
毎月の返済額 (目安) |
|
|---|---|---|---|
| 想定利回り |
4.86%
|
想定年間賃料 |
2520.0万円
|
| 築年月 | 2025年3月 | 間取り | 1K×9戸 1LDK×2戸 |
| 専有面積/建物面積 | 342.10m2 | 土地面積 | 109.47m2 |
| 所在地 | 東京都新宿区北新宿4 | ||
|---|---|---|---|
| 交通 |
JR中央・総武線「東中野駅」徒歩8分 JR中央・総武線「大久保駅」徒歩11分 | ||
【特徴・設備】
■4駅3路線利用可能
■ネットワーク防犯カメラ
■オートロック・宅配BOX・メールBOX
■入居者無料Wi-Fi導入
■1K×9戸 1LDK×2戸
■民泊会社一括借上げ
利回り 4.86%
年間予定賃料収入 25,200,000円

| 物件名 | SAI北新宿 | ||||
|---|---|---|---|---|---|
| 種別 | 一棟マンション | ||||
| 所在地 | 東京都新宿区北新宿4 | ||||
| 交通 |
JR中央・総武線「東中野駅」徒歩8分 JR中央・総武線「大久保駅」徒歩11分 東京メトロ東西線「落合駅」徒歩12分 JR山手線「新大久保駅」徒歩14分 |
||||
| 問合せ番号 | 4219 | ||||
| 物件特徴 | なし | ||||
| 物件条件 | - | ||||
| 価格 | 5億1,800万円 | 想定利回り | 4.86% | ||
| 想定年間賃料 | 2520.0万円 | 管理費 | - | ||
| 修繕積立金 | - | その他費用 | - | ||
| 所在階 | - | 間取り | - | ||
| 方角 | - | 専有面積/建物面積 | 342.10m2 | ||
| 土地面積 | 109.47m2 | バルコニー面積 | - | ||
| 建物構造 | RC | 築年月 | 2025年3月 | ||
| 総戸数 | 10戸 | 総階数 | 地上5階 | ||
| 駐車場 | - | バイク置き場 | - | ||
| 駐輪場 | - | 土地権利 | 所有権 | ||
| 用途地域 | 近隣商業地域 | 地目 | - | ||
| 私道負担 | - | セットバック | - | ||
| 建ぺい率 | 80%/-/- | 容積率 | 400%/-/- | ||
| 接道状況 | 北側公道幅員約4m間口約14m | 都市計画 | - | ||
| 国土法届出 | - | 管理形態 | 自主管理 | ||
| 管理会社 | - | 分譲会社 | - | ||
| 施工会社 | - | 設計会社 | - | ||
| 取引態様 | 仲介 | 小学校学区 | - | ||
| 周辺情報 | - | 現況 | 賃貸中 | ||
| 引渡し | 相談 | 更新日 | 2025年11月18日 | ||
| 頭金 |
支払い額万円※半角数字
|
|---|---|
| 金利 |
|
| 返済年数 | 年 |
※建物周辺情報はGoogleMapを使用しており、実際とは若干異なる場合がございます。
掲載情報について

外観 物件画像1