江東区南砂3丁目 ⼀棟売りビル 4566

  • 総合トップ
  • 中古マンション
  • 一戸建て・土地
  • 投資・収益物件
  • 売りたい[売却査定]
  • 貸したい[賃料査定]

江東区南砂3丁目 ⼀棟売りビル 4566
新着

恵比寿不動産の強み
  • 一棟売りビル
  • 店舗・事務所
価格
22,000
毎月の返済額
(目安)
loansimulationIcon
想定利回り
-
想定年間賃料
-
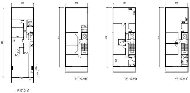
築年月 1966年8月 間取り
専有面積/建物面積 446.65m2 土地面積 158.67m2
所在地
交通

一棟ビル販売・民泊旅館可物件・東京メトロ東西線「南砂町」駅徒歩8分

【特徴・設備】
■都心へ、快適アクセス。
■暮らしやすさが詰まった街、南砂町。
■通勤・通学に、安心の日常を。
■緑と商業が交わる、南砂町。
■充実の街×アクセス抜群。南砂町駅界隈で叶える住まい。
■駅周辺の再開発が進み、ますます快適な住環境へ。
■簡易宿泊·民泊旅申請可能
■RC造+独立フロア
■民泊運用·フアミリー賃貸いずれも適用
■自主管理·自己使用も可能
■家族旅/グループ/ビジネス兼用いずれにも対応

2冠達成 恵比寿不動産は物件数No.1 中古マンション数No.1

お問い合わせはこちらから

contact us
オフィス内観写真
オフィス外観写真

恵比寿不動産までお気軽にお問合せください

お電話でのお問い合わせはこちら:03-6421-0543 10:00 - 19:00 (水曜定休)

恵比寿不動産 渋谷区東3-25-11 TOKYU REIT恵比寿ビル4階店舗情報

リフォーム無料お見積りサービス

物件概要

物件名 江東区南砂3丁目 ⼀棟売りビル
種別 一棟売りビル /店舗・事務所
所在地
交通
問合せ番号 4566
物件特徴 なし
物件条件 -
価格 22,000 想定利回り -
想定年間賃料 - 管理費 -
修繕積立金 - その他費用 -
所在階 - 間取り -
方角 - 専有面積/建物面積 446.65m2
土地面積 158.67m2 バルコニー面積 -
建物構造 RC 築年月 1966年8月
総戸数 - 総階数 地上4階 
駐車場 - バイク置き場 -
駐輪場 - 土地権利 所有権
用途地域 近隣商業地域 地目 宅地
私道負担 - セットバック -
建ぺい率 78%/-/- 容積率 300%/-/-
接道状況 北側 公道 幅員約7.38m 都市計画 市街化区域
国土法届出 - 管理形態 自主管理
管理会社 - 分譲会社 -
施工会社 - 設計会社 -
取引態様 仲介 小学校学区 -
周辺情報 ■大型商業施設「SUNAMO(スナモ)」徒歩7分
■コンビニエンスストア  徒歩3分
■イオンスタイル南砂 徒歩8分
■南砂三丁目公園 徒歩2分
■病院・クリニック、薬局 徒歩5分圏内
■江東区立第二南砂小学校 徒歩5分
現況 空室
引渡し 相談 更新日 2026年3月18日

備考

設備

  • エレベーター

江東区南砂3丁目 ⼀棟売りビル 4566 のローンシミュレーション

借入金額
22,000
頭金
毎月の返済額
頭金
支払い額万円※半角数字
金利
  • %※半角数字
返済年数
  • ※元利均等返済方式、最大優遇の場合で計算しています。
  • ※融資には個別審査があり、審査結果により、貸出条件(金利・貸出期間・借入額)が異なる場合がございます。
  • ※不動産のご購入に際しましては物件価格以外にその他諸費用が必要となります。
    諸費用に関する詳細につきましてはお問い合わせ下さいませ。

周辺地図

※建物周辺情報はGoogleMapを使用しており、実際とは若干異なる場合がございます。

掲載情報について

  • ※本掲載情報と現況に差異がある場合、現況を優先いたします。
  • ※掲載物件は売却済あるいは売出中止となる場合もあります。
  • ※掲載写真やパース(絵)、または間取図に描かれている家具や車などは、価格に含まれておりません。また、過去に撮影したものをそのまま利用している場合があり、名称・外観・背景等、実際のものとは異なる場合がございます。予めご了承ください。
  • ※仲介物件には所定の仲介手数料(消費税等相当額を含みます)が必要です。
  • ※想定年間賃料は賃貸中の物件については現在の賃料で、新築や空室中、一部空きがある物件については、周辺の賃料相場等に基づき、満室時の場合を想定して算出したものです。
  • ※利回りは現況または満室想定時での単純利回りで、公租公課・共益費・その他当該物件を維持するために必要な費用の控除前のものです。
  • ※賃料収入は、将来にわたって確実に得られることを保証するものではありません。
2冠達成 恵比寿不動産は物件数No.1 中古マンション数No.1

お問い合わせはこちらから

contact us
オフィス内観写真
オフィス外観写真

恵比寿不動産までお気軽にお問合せください

お電話でのお問い合わせはこちら:03-6421-0543 10:00 - 19:00 (水曜定休)

恵比寿不動産 渋谷区東3-25-11 TOKYU REIT恵比寿ビル4階店舗情報