高橋マンション

  • 総合トップ
  • 中古マンション
  • 一戸建て・土地
  • 投資・収益物件
  • 売りたい[売却査定]
  • 貸したい[賃料査定]

高橋マンション
新着

恵比寿不動産の強み
  • 一棟マンション
価格
9,800
毎月の返済額
(目安)
loansimulationIcon
想定利回り
5.27%
想定年間賃料
517.2
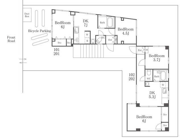
築年月 1986年 間取り 2DK
専有面積/建物面積 143.08m2 土地面積 140.90m2
所在地
交通

オーナーチェンジ物件!JR・西武線2路線利用可能で通勤通学に便利!

【特徴・設備】
■スーパーやコンビニが近隣にあり、生活に便利な住環境
■全室南側に採光面があり日当たり良好
■2021年に大規模修繕実施済
■外構はタイルも活用したデザイナー調物件です
■2DK4戸満室(2026年2月現在)
■101号および202号は大規模リフォーム実施済み
■各戸宅配ボックス有
■大規模修繕・全戸リフォーム工事時の履歴あり
■土地面積には約5.8㎡のセットバック部分を含む

想定利回り:5.27%
想定年間予定賃料収入:5,172,000円

2冠達成 恵比寿不動産は物件数No.1 中古マンション数No.1

お問い合わせはこちらから

contact us
オフィス内観写真
オフィス外観写真

恵比寿不動産までお気軽にお問合せください

お電話でのお問い合わせはこちら:03-6421-0543 10:00 - 19:00 (水曜定休)

恵比寿不動産 渋谷区東3-25-11 TOKYU REIT恵比寿ビル4階店舗情報

リフォーム無料お見積りサービス

物件概要

物件名 高橋マンション
種別 一棟マンション
所在地
交通
問合せ番号 4577
物件特徴 低層マンション
物件条件 -
価格 9,800 想定利回り 5.27%
想定年間賃料 517.2 管理費 -
修繕積立金 - その他費用 -
所在階 - 間取り -
方角 - 専有面積/建物面積 143.08m2
土地面積 140.90m2 バルコニー面積 -
建物構造 鉄骨造 築年月 1986年
総戸数 4戸 総階数 地上2階 
駐車場 - バイク置き場 -
駐輪場 - 土地権利 所有権
用途地域 第一種低層住居専用地域 地目 宅地
私道負担 - セットバック -
建ぺい率 60%/-/- 容積率 150%/-/-
接道状況 東側 第42条第2項道路幅員約3mに約7.55m接道 都市計画 市街化区域
国土法届出 - 管理形態 自主管理
管理会社 - 分譲会社 -
施工会社 - 設計会社 -
取引態様 仲介 小学校学区 -
周辺情報 ■まいばすけっと高円寺大和陸橋まで約5分
■ファミリーマート 中野新井二丁目店まで約3分
■スギ薬局 中野通り店まで約10分
現況 賃貸中
引渡し 相談 更新日 2026年3月20日

備考

設備

  • 宅配ボックス

高橋マンション のローンシミュレーション

借入金額
9,800
頭金
毎月の返済額
頭金
支払い額万円※半角数字
金利
  • %※半角数字
返済年数
  • ※元利均等返済方式、最大優遇の場合で計算しています。
  • ※融資には個別審査があり、審査結果により、貸出条件(金利・貸出期間・借入額)が異なる場合がございます。
  • ※不動産のご購入に際しましては物件価格以外にその他諸費用が必要となります。
    諸費用に関する詳細につきましてはお問い合わせ下さいませ。

周辺地図

※建物周辺情報はGoogleMapを使用しており、実際とは若干異なる場合がございます。

掲載情報について

  • ※本掲載情報と現況に差異がある場合、現況を優先いたします。
  • ※掲載物件は売却済あるいは売出中止となる場合もあります。
  • ※掲載写真やパース(絵)、または間取図に描かれている家具や車などは、価格に含まれておりません。また、過去に撮影したものをそのまま利用している場合があり、名称・外観・背景等、実際のものとは異なる場合がございます。予めご了承ください。
  • ※仲介物件には所定の仲介手数料(消費税等相当額を含みます)が必要です。
  • ※想定年間賃料は賃貸中の物件については現在の賃料で、新築や空室中、一部空きがある物件については、周辺の賃料相場等に基づき、満室時の場合を想定して算出したものです。
  • ※利回りは現況または満室想定時での単純利回りで、公租公課・共益費・その他当該物件を維持するために必要な費用の控除前のものです。
  • ※賃料収入は、将来にわたって確実に得られることを保証するものではありません。
2冠達成 恵比寿不動産は物件数No.1 中古マンション数No.1

お問い合わせはこちらから

contact us
オフィス内観写真
オフィス外観写真

恵比寿不動産までお気軽にお問合せください

お電話でのお問い合わせはこちら:03-6421-0543 10:00 - 19:00 (水曜定休)

恵比寿不動産 渋谷区東3-25-11 TOKYU REIT恵比寿ビル4階店舗情報