豊島区長崎5丁目 新築一戸建て 1号棟 2576

  • 総合トップ
  • 中古マンション
  • 一戸建て・土地
  • 投資・収益物件
  • 売りたい[売却査定]
  • 貸したい[賃料査定]

豊島区長崎5丁目 新築一戸建て 1号棟
新着

恵比寿不動産の強み
  • 新築一戸建て
価格
9,980
毎月の返済額
(目安)
loansimulationIcon
土地面積 75.30m2(約22.78坪)
建物面積 95.78m2(約28.97坪)
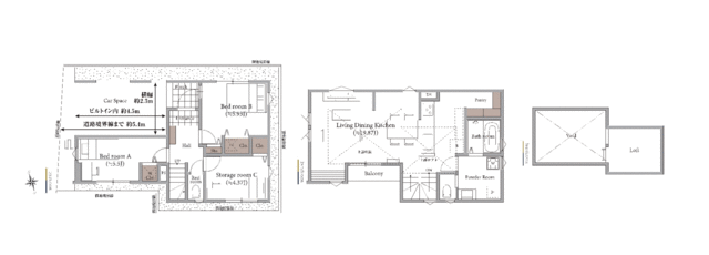
築年月 2025年12月 間取り 3LDK+SIC+ロフト
建ぺい率 60% 容積率 150%
所在地
交通

「東長崎」駅 徒歩5分!3LDK+車庫

【特徴・設備】
■西武池袋線「東長崎」駅 徒歩5分
■豊島区長崎アドレス
■システムキッチン・食洗機・パントリー
■広々リビング約15.75帖・床暖房・ロフト
■浴室乾燥機・シャワートイレ2ヶ所
■シューズインクローク・ストレージルーム

2冠達成 恵比寿不動産は物件数No.1 中古マンション数No.1

お問い合わせはこちらから

contact us
オフィス内観写真
オフィス外観写真

恵比寿不動産までお気軽にお問合せください

お電話でのお問い合わせはこちら:03-6421-0543 10:00 - 19:00 (水曜定休)

恵比寿不動産 渋谷区東3-25-11 TOKYU REIT恵比寿ビル4階店舗情報

リフォーム無料お見積りサービス

物件概要

物件名 豊島区長崎5丁目 新築一戸建て 1号棟
種別 一戸建て
所在地
交通
問合せ番号 2576
価格 9,980 借地料 -
借地期間 - その他費用 -
土地面積 75.30m2(約22.78坪) 建物面積 95.78m2(約28.97坪)
バルコニー面積 - 庭面積 -
構造 木造 総階数 地上2階
築年月 2025年12月 間取り 3LDK
方角 駐車場 有(ビルトインガレージ)
土地権利 所有権 用途地域 第一種低層住居専用地域
地目 宅地 私道負担 -
セットバック - 建ぺい率 60%
容積率 150% 接道状況 北西側 約4.0m 私道
都市計画 市街化区域 国土法届出 -
建築条件 - 取引態様 仲介
小学校学区 - 周辺情報 -
現況 未完成 引渡し 相談
更新日 2025年12月14日

備考

条件

  • 低層住居専用地域
  • 小学校まで徒歩10分以内
  • スーパーまで徒歩5分以内
  • 公園まで徒歩5分以内
  • TVドアホン
  • 駐車場付き
  • 閑静な住宅街
  • 独立洗面台
  • 追い焚き
  • 温水洗浄便座
  • 浴室乾燥機
  • システムキッチン
  • 食器洗浄機
  • 床暖房
  • シューズインクローゼット
  • フローリング
  • ロフト付き
  • バス・トイレ別
  • 浴室1坪以上

豊島区長崎5丁目 新築一戸建て 1号棟 のローンシミュレーション

借入金額
9,980
頭金
毎月の返済額
頭金
  • 支払い額万円※半角数字
金利
  • %※半角数字
返済年数
  • ※元利均等返済方式、最大優遇の場合で計算しています。
  • ※融資には個別審査があり、審査結果により、貸出条件(金利・貸出期間・借入額)が異なる場合がございます。
  • ※不動産のご購入に際しましては物件価格以外にその他諸費用が必要となります。
    諸費用に関する詳細につきましてはお問い合わせ下さいませ。

周辺地図

※建物周辺情報はGoogleMapを使用しており、実際とは若干異なる場合がございます。

掲載情報について

  • ※本掲載情報と現況に差異がある場合、現況を優先いたします。
  • ※掲載物件は売却済あるいは売出中止となる場合もあります。
  • ※掲載写真やパース(絵)、または間取図に描かれている家具や車などは、価格に含まれておりません。また、過去に撮影したものをそのまま利用している場合があり、名称・外観・背景等、実際のものとは異なる場合がございます。予めご了承ください。
  • ※仲介物件には所定の仲介手数料(消費税等相当額を含みます)が必要です。
2冠達成 恵比寿不動産は物件数No.1 中古マンション数No.1

お問い合わせはこちらから

contact us
オフィス内観写真
オフィス外観写真

恵比寿不動産までお気軽にお問合せください

お電話でのお問い合わせはこちら:03-6421-0543 10:00 - 19:00 (水曜定休)

恵比寿不動産 渋谷区東3-25-11 TOKYU REIT恵比寿ビル4階店舗情報