新宿区四谷三栄町 土地 838 成約済み(838)

  • 総合トップ
  • 中古マンション
  • 一戸建て・土地
  • 投資・収益物件
  • 売りたい[売却査定]
  • 貸したい[賃料査定]

新宿区四谷三栄町 土地 成約済み(838)

恵比寿不動産の強み

こちらの物件は既に成約済みです。

物件検索より最新の物件をお探しください。

  • 土地
価格
***
毎月の返済額
(目安)
loansimulationIcon
土地面積 270.68m2(約81.88坪)(実測)
建物面積 -
築年月 - 間取り -
建ぺい率 60% 容積率 300%
所在地
交通

建築条件なしの為お好きなハウスメーカーで建築可能!

【特徴】
■アクセス良好
■都心ながら閑静な住宅街の一角
■車複数台駐車可能
■通風・陽当り良好
■大型商業施設も徒歩圏内のロケーション
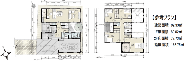
■参考プラン建物値段4,000万円

2冠達成 恵比寿不動産は物件数No.1 中古マンション数No.1

物件概要

物件名 新宿区四谷三栄町 土地
種別 土地
所在地
交通
問合せ番号 838
価格 *** 借地料 ***円
借地期間 - その他費用 ***円
土地面積 270.68m2(約81.88坪)(実測) 建物面積 -
バルコニー面積 - 庭面積 -
構造 - 総階数 -
築年月 - 間取り -
方角 - 駐車場 -
土地権利 所有権 用途地域 第一種中高層住居専用地域
地目 宅地 私道負担 -
セットバック - 建ぺい率 60%
容積率 300% 接道状況 西4m 公道
都市計画 - 国土法届出 -
建築条件 なし 取引態様 仲介
小学校学区 四谷小学校 周辺情報 -
現況 成約済 引渡し ***
更新日 2021年12月2日

備考

■引き渡しは2022年1月以降

条件

  • 小学校まで徒歩10分以内
  • スーパーまで徒歩5分以内
  • コンビニまで徒歩3分以内
  • 公園まで徒歩5分以内
  • 建物参考プラン有り
  • 建築条件なし

周辺地図

※建物周辺情報はGoogleMapを使用しており、実際とは若干異なる場合がございます。

掲載情報について

  • ※本掲載情報と現況に差異がある場合、現況を優先いたします。
  • ※掲載物件は売却済あるいは売出中止となる場合もあります。
  • ※掲載写真やパース(絵)、または間取図に描かれている家具や車などは、価格に含まれておりません。また、過去に撮影したものをそのまま利用している場合があり、名称・外観・背景等、実際のものとは異なる場合がございます。予めご了承ください。
  • ※仲介物件には所定の仲介手数料(消費税等相当額を含みます)が必要です。
2冠達成 恵比寿不動産は物件数No.1 中古マンション数No.1

最近見た物件

杉並区高円寺北3丁目 土地 最近見た物件画像

杉並区高円寺北3丁目 土地

  • 1763
  • 東京都杉並区高円寺北3
  • JR中央・総武線「高円寺駅」徒歩8分
    東京メトロ丸ノ内線「新高円寺駅」徒歩19分
  • 土地面積 101.65m2(約30.75坪)(実測)
  • 建物面積 -
  • -