内外装リフォーム物件。水回りを2階に配した3LDKの住まい
【特徴・設備】
■JR中央・総武線「東中野」駅徒歩9分
■新宿区北新宿アドレス
■北側が6m公道に面した敷地
■フルリフォーム物件
■2・3階にバルコニー付き

物件検索より最新の物件をお探しください。
| 価格 | ***万円 |
毎月の返済額 (目安) |
|
|---|---|---|---|
| 土地面積 | 47.14m2(約14.26坪)(公簿) | ||
| 建物面積 | 84.87m2(約25.67坪) | ||
| 築年月 | 2007年9月 | 間取り | 3R |
| 建ぺい率 | 60% | 容積率 | 240% |
| 所在地 | 東京都新宿区北新宿4 | ||
| 交通 |
JR中央・総武線「東中野駅」徒歩9分 JR中央・総武線「大久保駅」徒歩11分 | ||
【特徴・設備】
■JR中央・総武線「東中野」駅徒歩9分
■新宿区北新宿アドレス
■北側が6m公道に面した敷地
■フルリフォーム物件
■2・3階にバルコニー付き

| 物件名 | 新宿区北新宿4丁目 中古一戸建て | ||
|---|---|---|---|
| 種別 | 一戸建て | ||
| 所在地 | 東京都新宿区北新宿4 | ||
| 交通 |
JR中央・総武線「東中野駅」徒歩9分 JR中央・総武線「大久保駅」徒歩11分 |
||
| 問合せ番号 | 976 | ||
| 価格 | ***万円 | 借地料 | ***円 |
| 借地期間 | - | その他費用 | ***円 |
| 土地面積 | 47.14m2(約14.26坪)(公簿) | 建物面積 |
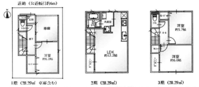
84.87m2(約25.67坪) ■1階28.29㎡ ■2階28.29㎡ ■3階28.29㎡ |
| バルコニー面積 | - | 庭面積 | - |
| 構造 | 木造 | 総階数 | 地上3階 |
| 築年月 | 2007年9月 | 間取り | 3R |
| 方角 | - | 駐車場 | 有 |
| 土地権利 | 所有権 | 用途地域 | 第一種住居地域 |
| 地目 | 宅地 | 私道負担 | - |
| セットバック | - | 建ぺい率 | 60% |
| 容積率 | 240% | 接道状況 | 北側約6m公道に接道 |
| 都市計画 | 市街化区域 | 国土法届出 | - |
| 建築条件 | - | 取引態様 | 仲介 |
| 小学校学区 | 淀橋第四小学校 | 周辺情報 | ■まいばすけっと 北新宿4丁目店まで約5分 ■ファミリーマート 小滝橋通り店まで約3分 ■ココカラファイン薬局 東中野5丁目店まで約9分 |
| 現況 | 成約済 | 引渡し | *** |
| 更新日 | 2024年1月27日 | ||
※建物周辺情報はGoogleMapを使用しており、実際とは若干異なる場合がございます。
掲載情報について

物件写真 物件画像1