デュオスカーラ浅草国際通り 11階

  • 総合トップ
  • 中古マンション
  • 一戸建て・土地
  • 投資・収益物件
  • 売りたい[売却査定]
  • 貸したい[賃料査定]

デュオスカーラ浅草国際通り 11階

恵比寿不動産の強み
  • 区分マンション
価格
3,850
毎月の返済額
(目安)
loansimulationIcon
想定利回り
4.17%
想定年間賃料
160.8
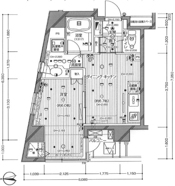
築年月 2003年2月 間取り 1DK
専有面積/建物面積 34.11m2 土地面積 -
所在地
交通

オーナーチェンジ物件!つくばエクスプレス「浅草駅」徒歩1分!

【特徴・設備】
■あ安心のオートロック・テレビモニター付インターフォン
■不在時に便利な宅配BOX
■システムキッチン
■BT別、ウォシュレット、浴室換気乾燥機、室内洗濯機置場
■南西角部屋・陽当り・眺望良好

現在総賃料134,000円で賃貸中。表⾯利回りは4.17%で稼働中です。

2冠達成 恵比寿不動産は物件数No.1 中古マンション数No.1

お問い合わせはこちらから

contact us
オフィス内観写真
オフィス外観写真

恵比寿不動産までお気軽にお問合せください

お電話でのお問い合わせはこちら:03-6421-0543 10:00 - 19:00 (水曜定休)

恵比寿不動産 渋谷区東3-25-11 TOKYU REIT恵比寿ビル4階店舗情報

リフォーム無料お見積りサービス

物件概要

物件名 デュオスカーラ浅草国際通り
種別 区分マンション
所在地
交通
問合せ番号 4294
物件特徴 なし
物件条件 -
価格 3,850 想定利回り 4.17%
想定年間賃料 160.8 管理費 12,790円/月
修繕積立金 6,920円/月 その他費用 -
所在階 11階 間取り 1DK
方角 南西 専有面積/建物面積 34.11m2
土地面積 - バルコニー面積 2.84m2
建物構造 RC 築年月 2003年2月
総戸数 29戸 総階数 地上11階 
駐車場 - バイク置き場 -
駐輪場 - 土地権利 所有権
用途地域 商業地域  地目 -
私道負担 - セットバック -
建ぺい率 - 容積率 -
接道状況 - 都市計画 -
国土法届出 - 管理形態 日勤管理
管理会社 日本ハウズイング株式会社 分譲会社 -
施工会社 名工建設株式会社 設計会社 -
取引態様 - 小学校学区 -
周辺情報 ■ライフ浅草店(スーパー)まで徒歩 1分
■オーケー 浅草店(スーパー)まで徒歩 1分
■ローソン H浅草二丁目店(コンビニ)まで徒歩 1分
■ユニバーサルドラッグ 浅草六区店(ドラッグストア)まで徒歩 1分
現況 賃貸中
引渡し 相談 更新日 2026年1月26日

備考

設備

  • エレベーター
  • オートロック
  • 宅配ボックス
  • TVドアホン
  • BS
  • CS
  • インターネット
  • バス・トイレ別
  • 独立洗面台
  • 温水洗浄便座
  • 浴室乾燥機
  • システムキッチン
  • 最上階
  • 角部屋
  • 南向き

デュオスカーラ浅草国際通り 11階 のローンシミュレーション

借入金額
3,850
頭金
毎月の返済額
頭金
支払い額万円※半角数字
金利
  • %※半角数字
返済年数
  • ※元利均等返済方式、最大優遇の場合で計算しています。
  • ※融資には個別審査があり、審査結果により、貸出条件(金利・貸出期間・借入額)が異なる場合がございます。
  • ※不動産のご購入に際しましては物件価格以外にその他諸費用が必要となります。
    諸費用に関する詳細につきましてはお問い合わせ下さいませ。

周辺地図

※建物周辺情報はGoogleMapを使用しており、実際とは若干異なる場合がございます。

掲載情報について

  • ※本掲載情報と現況に差異がある場合、現況を優先いたします。
  • ※掲載物件は売却済あるいは売出中止となる場合もあります。
  • ※掲載写真やパース(絵)、または間取図に描かれている家具や車などは、価格に含まれておりません。また、過去に撮影したものをそのまま利用している場合があり、名称・外観・背景等、実際のものとは異なる場合がございます。予めご了承ください。
  • ※仲介物件には所定の仲介手数料(消費税等相当額を含みます)が必要です。
  • ※想定年間賃料は賃貸中の物件については現在の賃料で、新築や空室中、一部空きがある物件については、周辺の賃料相場等に基づき、満室時の場合を想定して算出したものです。
  • ※利回りは現況または満室想定時での単純利回りで、公租公課・共益費・その他当該物件を維持するために必要な費用の控除前のものです。
  • ※賃料収入は、将来にわたって確実に得られることを保証するものではありません。
2冠達成 恵比寿不動産は物件数No.1 中古マンション数No.1

お問い合わせはこちらから

contact us
オフィス内観写真
オフィス外観写真

恵比寿不動産までお気軽にお問合せください

お電話でのお問い合わせはこちら:03-6421-0543 10:00 - 19:00 (水曜定休)

恵比寿不動産 渋谷区東3-25-11 TOKYU REIT恵比寿ビル4階店舗情報

最近見た物件

デュオスカーラ浅草国際通り 11階 最近見た物件画像

デュオスカーラ浅草国際通り 11階

  • 3,850
  • 利回り4.17%
  • 東京都台東区浅草2-13-7
  • つくばエクスプレス「浅草駅」徒歩1分
    東京メトロ銀座線「田原町駅」徒歩9分
  • 2003年2月
スカイコートグランメゾン御殿山 4階 最近見た物件画像

スカイコートグランメゾン御殿山 4階

  • 3,800
  • 利回り3.63%
  • 東京都品川区北品川5-18-19
  • 京急本線「北品川駅」徒歩11分
    JR山手線「大崎駅」徒歩14分
  • 2021年3月
外観

プレミアムキューブ大崎ドゥ 3階

  • 3,500
  • 利回り3.68%
  • 東京都品川区北品川4-9-7
  • JR山手線「大崎駅」徒歩9分
    京急本線「北品川駅」徒歩11分
  • 2016年3月