オーナーチェンジ物件!共同住宅・オフィス・店舗!
【特徴・設備】
■「蒲田」駅徒歩9分・「蓮沼」駅徒歩2分の好立地
■1988年5月築
■鉄骨・鉄筋コンクリート造陸屋根7階建
■改修工事実施(令和7年9月完了済)、1階エントランス、5階一部、7階一部、屋上防水
■現状空室1部屋:申込有
満室想定利回り 5.35%
満室想定賃料(年間) 19,261,800円

| 価格 | 3億6,000万円 |
毎月の返済額 (目安) |
|
|---|---|---|---|
| 想定利回り |
5.35%
|
想定年間賃料 |
1926.2万円
|
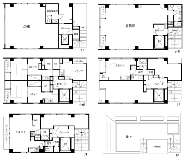
| 築年月 | 1988年5月 | 間取り | |
| 専有面積/建物面積 | 573.65m2 | 土地面積 | 116.82m2 |
| 所在地 | 東京都大田区西蒲田7-13-1 | ||
|---|---|---|---|
| 交通 |
JR京浜東北線「蒲田駅」徒歩9分 東急多摩川線「蒲田駅」徒歩9分 | ||
【特徴・設備】
■「蒲田」駅徒歩9分・「蓮沼」駅徒歩2分の好立地
■1988年5月築
■鉄骨・鉄筋コンクリート造陸屋根7階建
■改修工事実施(令和7年9月完了済)、1階エントランス、5階一部、7階一部、屋上防水
■現状空室1部屋:申込有
満室想定利回り 5.35%
満室想定賃料(年間) 19,261,800円

| 物件名 | TRUST VALUE 蒲田 | ||||
|---|---|---|---|---|---|
| 種別 | 一棟マンション /店舗・事務所 | ||||
| 所在地 | 東京都大田区西蒲田7-13-1 | ||||
| 交通 |
JR京浜東北線「蒲田駅」徒歩9分 東急多摩川線「蒲田駅」徒歩9分 東急池上線「蓮沼駅」徒歩2分 |
||||
| 問合せ番号 | 4298 | ||||
| 物件特徴 | なし | ||||
| 物件条件 | - | ||||
| 価格 | 3億6,000万円 | 想定利回り | 5.35% | ||
| 想定年間賃料 | 1926.2万円 | 管理費 | - | ||
| 修繕積立金 | - | その他費用 | - | ||
| 所在階 | - | 間取り | - | ||
| 方角 | - | 専有面積/建物面積 | 573.65m2 | ||
| 土地面積 | 116.82m2 | バルコニー面積 | - | ||
| 建物構造 | SRC | 築年月 | 1988年5月 | ||
| 総戸数 | - | 総階数 | 地上7階 | ||
| 駐車場 | 無 | バイク置き場 | - | ||
| 駐輪場 | - | 土地権利 | 所有権 | ||
| 用途地域 | 商業地域 | 地目 | 宅地 | ||
| 私道負担 | 無 | セットバック | 無 | ||
| 建ぺい率 | 80%/-/- | 容積率 | 500%/-/- | ||
| 接道状況 | 西側公道幅員約11.9mに約7.3m接道、北側公道幅員約4.0mに約14.1m接道 | 都市計画 | 市街化区域 | ||
| 国土法届出 | - | 管理形態 | 自主管理 | ||
| 管理会社 | - | 分譲会社 | - | ||
| 施工会社 | - | 設計会社 | - | ||
| 取引態様 | 仲介 | 小学校学区 | - | ||
| 周辺情報 | ■ライフ西蒲田店まで約3分 ■セブンイレブン 西蒲田すずらん通り店まで約1分 ■スギ薬局 東矢口店まで約3分 |
現況 | 賃貸中 | ||
| 引渡し | 相談 | 更新日 | 2025年12月16日 | ||
※その他の法令上の制限
・駐車場整備地区、道路斜線制限、隣地斜線制限景観法、航空法等
| 頭金 |
支払い額万円※半角数字
|
|---|---|
| 金利 |
|
| 返済年数 | 年 |
※建物周辺情報はGoogleMapを使用しており、実際とは若干異なる場合がございます。
掲載情報について

外観 物件画像1