14階部分、南東向き住戸!リノベーション物件!
【特徴・設備】
■全室窓あり
■家具の配置がしやすい間取り
■システムキッチン
■3口ガスコンロ
■WICがあり収納豊富
■独立洗面台
■室内洗濯置き場あり
■アフターサービス保証付
【リノベーション内容】
□床クロス
□洗面
□トイレ
□キッチン
□ユニットバス
□建具
□新規エアコン設置 等
| 価格 | 1億1,500万円 |
毎月の返済額 (目安) |
|
|---|---|---|---|
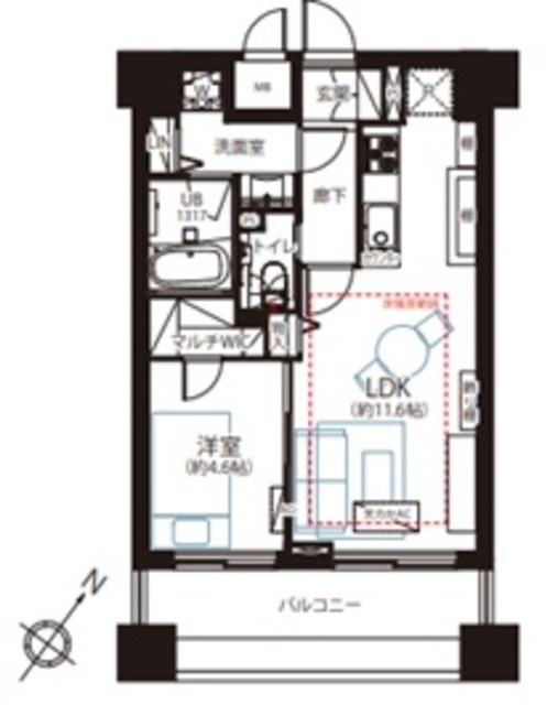
| 築年月 | 2005年10月 | 間取り | 1LDK+WIC |
| 専有面積 | 41.70m2 | 所在階 | 14階 |
| 方角 | 南東 | ||
| 所在地 | 東京都港区三田5-21-6 | ||
| 交通 | 東京メトロ南北線「白金高輪駅」徒歩4分 都営浅草線「泉岳寺駅」徒歩11分 |
||
【特徴・設備】
■全室窓あり
■家具の配置がしやすい間取り
■システムキッチン
■3口ガスコンロ
■WICがあり収納豊富
■独立洗面台
■室内洗濯置き場あり
■アフターサービス保証付
【リノベーション内容】
□床クロス
□洗面
□トイレ
□キッチン
□ユニットバス
□建具
□新規エアコン設置 等

| 物件名 | グラーサ白金高輪 | ||
|---|---|---|---|
| 所在地 | 東京都港区三田5-21-6 | ||
| 交通 |
東京メトロ南北線「白金高輪駅」徒歩4分 都営浅草線「泉岳寺駅」徒歩11分 |
||
| 問合せ番号 | 1018-1403 | ||
| 物件特徴 | - | ||
| 物件条件 | ペット可、SOHO・事務所可 | ||
| 価格 | 1億1,500万円 | 管理費 | 8,300円/月 |
| 修繕積立金 | 6,375円/月 | その他費用 | 525円/月 |
| 間取り | 1LDK | 方角 | 南東 |
| 専有面積 | 41.70m2 | バルコニー面積 | 8.64m2 |
| 建物構造 | RC | 築年月 | 2005年10月 |
| 総戸数 | 95戸 | 総階数 | 地上17階 地下2階 |
| 駐車場 | 上段:39,000円/月額 中断:37,000円/月額 下段:36,000円/月額 身障者様用 42,000円/月額 |
バイク置き場 | 12,000円/年額 ※排気量50cc以下 |
| 駐輪場 | 6,000円/年額 | 土地権利 | 所有権 |
| 用途地域 | 商業地域 、準工業地域 | 管理形態 | 巡回管理 |
| 管理会社 | 株式会社クレアスコミュニティ | 分譲会社 | (株)菱和ライフクリエイト |
| 施工会社 | (株)間組、 安藤建設(株) | 設計会社 | (株)六器建築設計事務所 |
| 取引態様 | 仲介 | 小学校学区 | 御田小学校 |
| 周辺情報 | ■ピーコックストア 高輪魚籃坂店(スーパー)まで約2分 ■セブンイレブン 魚籃坂店(コンビニ)まで約2分 ■ドラッグストア マツモトキヨシ 白金高輪店(ドラッグストア)まで約1分 |
||
| 現況 | 空室 | 入居/引渡時期 | 即時 |
| 更新日 | 2026年5月30日 | ||
| 頭金 |
|
|---|---|
| 金利 |
|
| 返済年数 | 年 |
※建物周辺情報はGoogleMapを使用しており、実際とは若干異なる場合がございます。
掲載情報について

外観 物件画像1