エンゼル大森グランディア 7階 成約済みの部屋 10610-715

  • 総合トップ
  • 中古マンション
  • 一戸建て・土地
  • 投資・収益物件
  • 売りたい[売却査定]
  • 貸したい[賃料査定]

エンゼル大森グランディア 成約済み物件 (10610-715)

こちらのお部屋は既に成約済みです。

お手数ですが、建物詳細ページより同マンションで売り出し中の別のお部屋をご覧いただくか、
物件検索より最新の物件をお探しください。

価格
***
毎月の返済額
(目安)
loansimulationIcon
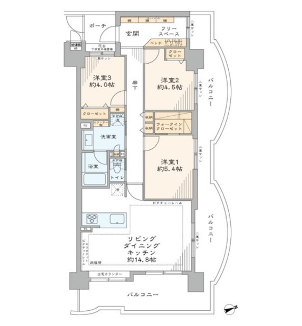
築年月 1999年1月 間取り 3LDK+WIC
専有面積 74.12m2 所在階 7階
方角
所在地 東京都大田区大森北5-16-1
交通 JR京浜東北線「大森駅」徒歩12分
京急本線「平和島駅」徒歩14分

7階部分、南東向き3方角部屋!新規内装リノベーション物件!

【特徴・設備】
■ペット飼育可
■二面バルコニー
■家具の配置がしやすい間取り
■カウンターキッチン
■3口ガスコンロ
■WICがあり収納豊富
■独立洗面台
■室内洗濯置き場あり
■アフターサービス保証付

【新規内装リノベーション内容】※2025年7月完了
□フローリング新規貼替
□給水管・給湯管新規交換(専有部)
□建具・玄関収納等新規交換
□LIXIL製洗面化粧台新規交換
□TOTO製洗浄便座付トイレ新規交換
□TOTO製ユニットバス新規交換(浴室換気乾燥機付)
□Panasonic製システムキッチン新規交換(食器洗い機付)
□壁・天井クロス新規貼替
□照明器具新規設置
□エアコン一基新規設置
□床暖パネル新規交換
□給湯器新規交換(追焚式) 等

2冠達成 恵比寿不動産は物件数No.1 中古マンション数No.1

物件概要

物件名 エンゼル大森グランディア
所在地
交通
問合せ番号 10610-715
物件特徴 大規模マンション
物件条件 -
価格 *** 管理費 ***円/月
修繕積立金 ***円/月 その他費用 ***
間取り 3LDK 方角
専有面積 74.12m2 バルコニー面積 33.44m2
建物構造 RC 築年月 1999年1月
総戸数 194戸 総階数 地上14階 
駐車場 月額23,000円~31,000円 バイク置き場 月額1,500円~
駐輪場 月額200円 土地権利 所有権
用途地域 準工業地域 管理形態 日勤管理
管理会社 日本ハウズイング株式会社 分譲会社 アゼル
施工会社 アゼル 設計会社 アゼル
取引態様 仲介 小学校学区 -
周辺情報 ■まいばすけっと大森北5丁目店 距離:349m
■スーパーオオゼキ大森北店 距離:380m
■セブンイレブン大田区大森西1丁目店 距離:219m
■MEGAドン・キホーテ大森山王店 距離:358m
■大田区立入新井第二小学校 距離:567m
■医療法人財団中島記念会大森山王病院 距離:436m
■大森郵便局 距離:317m
■大田区立入新井図書館 距離:840m
現況 成約済 入居/引渡時期 ***
更新日 2025年10月28日

備考

部屋設備

  • バス・トイレ別
  • 独立洗面台
  • 追い焚き
  • 温水洗浄便座
  • 浴室乾燥機
  • システムキッチン
  • カウンターキッチン
  • 食器洗浄機
  • 浄水器
  • ガスコンロ
  • 床暖房
  • エアコン
  • ウォークインクローゼット
  • フローリング
  • 角部屋
  • リノベーション

建物設備

  • エレベーター
  • オートロック
  • 宅配ボックス
  • 駐車場
  • バイク置き場
  • 駐輪場
  • キッズルーム
  • 24時間ゴミ出し可
  • 防犯カメラ
  • 閑静な住宅街

周辺地図

※建物周辺情報はGoogleMapを使用しており、実際とは若干異なる場合がございます。

掲載情報について

  • ※本掲載情報と現況に差異がある場合、現況を優先いたします。
  • ※掲載物件は売却済あるいは売出中止となる場合もあります。
  • ※掲載写真やパース(絵)、または間取図に描かれている家具や車などは、価格に含まれておりません。また、過去に撮影したものをそのまま利用している場合があり、名称・外観・背景等、実際のものとは異なる場合がございます。予めご了承ください。
  • ※仲介物件には所定の仲介手数料(消費税等相当額を含みます)が必要です。
2冠達成 恵比寿不動産は物件数No.1 中古マンション数No.1

部屋一覧

売出し待ちお知らせ希望 未公開情報の確認 お問い合わせ
所在階 間取り 専有面積 価格 お気に入り お問い合わせ 詳細
4F
リノベ
3LDK
67.52m2 7,990
お問い合わせ
詳細を見る

最近見た物件

ハイネス第2巣鴨おすすめ画像

ハイネス第2巣鴨 5階

3,770

  • 東京都豊島区巣鴨5-14-8
  • JR山手線「巣鴨駅」徒歩12分
    都営三田線「西巣鴨駅」徒歩7分
  • 2LDK  47.49m2
向島ダイヤモンドマンションおすすめ画像

向島ダイヤモンドマンション 6階

***

  • 東京都墨田区八広2-56-3
  • 京成押上線「京成曳舟駅」徒歩9分
    東武亀戸線「小村井駅」徒歩6分
  • 2LDK  50.40m2
外観

ジェイパーク武蔵小山3 5階

***

  • 東京都品川区小山1-9-10
  • 東急目黒線「不動前駅」徒歩6分
    東急目黒線「武蔵小山駅」徒歩7分
  • 3LDK  77.52m2
ワセダ山崎マンションおすすめ画像

ワセダ山崎マンション 4階

3,580

  • 東京都新宿区西早稲田1-10-6
  • 東京メトロ東西線「早稲田駅」徒歩9分
    都電荒川線「早稲田駅」徒歩4分
  • 2DK  38.53m2
画像準備中

木場サニータウン 11階

6,999

  • 東京都江東区枝川3-9-10
  • JR京葉線「潮見駅」徒歩7分
  • 3LDK  82.62m2
シャンボール武蔵小山おすすめ画像

シャンボール武蔵小山 2階

***

  • 東京都品川区荏原4-3-2
  • 東急目黒線「武蔵小山駅」徒歩8分
    東急池上線「戸越銀座駅」徒歩11分
  • 1LDK  33.75m2