コープ野村亀戸西棟 2階

  • 総合トップ
  • 中古マンション
  • 一戸建て・土地
  • 投資・収益物件
  • 売りたい[売却査定]
  • 貸したい[賃料査定]

コープ野村亀戸西棟 2階
新着

価格
6,480
毎月の返済額
(目安)
loansimulationIcon
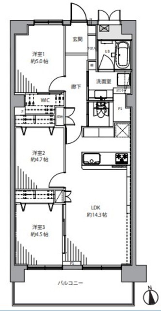
築年月 1982年6月 間取り 3LDK+WIC
専有面積 72.00m2 所在階 2階
方角 南西
所在地 東京都江東区亀戸1-43-9
交通 東京メトロ半蔵門線「錦糸町駅」徒歩7分
JR中央・総武線「錦糸町駅」徒歩8分

2階部分、南向き住戸!新規内装リノベーション物件!

【特徴・設備】
■LDK・洋室1・3は窓あり
■家具の配置がしやすい間取り
■カウンターキッチン
■3口ガスコンロ
■WICがあり収納豊富
■独立洗面台
■室内洗濯置き場あり
■アフターサービス保証付

【新規内装リノベーション内容】
□壁・天井クロス
□フローリング
□建具
□洗面・トイレフロアタイル 
□システムキッチン
□ユニットバス
□洗面化粧台
□トイレ
□下足入れ 
□可動棚
□エアコン
□網戸張替
□ダウンライト
□クリーニング 等

2冠達成 恵比寿不動産は物件数No.1 中古マンション数No.1

コープ野村亀戸西棟 2階の
購入に関するお問い合わせはこちらから

contact us

恵比寿不動産までお気軽にお問い合わせください

お電話でのお問い合わせはこちら:03-6421-0543 10:00 - 19:00 (水曜定休)
恵比寿不動産店舗情報渋谷区東3-25-11 TOKYU REIT恵比寿ビル4階
オフィス内観写真
オフィス外観写真
リフォーム無料お見積りサービス

物件概要

物件名 コープ野村亀戸西棟
所在地
交通
問合せ番号 10765-203
物件特徴 大規模マンション
物件条件 ペット可
価格 6,480 管理費 6,320円/月
修繕積立金 20,780円/月 その他費用 300円/月
間取り 3LDK 方角 南西
専有面積 72.00m2 バルコニー面積 8.34m2
建物構造 SRC 築年月 1982年6月
総戸数 426戸 総階数 地上13階 
駐車場 月額15,000円~20,000円 バイク置き場 月額900円~1,200円
駐輪場 月額200円 土地権利 所有権
用途地域 商業地域  管理形態 日勤管理
管理会社 野村不動産パートナーズ 分譲会社 野村不動産
施工会社 清水建設 設計会社 野村不動産、清水建設
取引態様 仲介 小学校学区 -
周辺情報 ■西友 錦糸町店 500m
■錦糸町PARCO(パルコ) 500m
■アトレ亀戸 650m
■ドン・キホーテ亀戸店 650m
■きんし保育園 120m
■ファミリーマート 錦糸町店 350m
■江東区立第一亀戸小学校 550m
■江東区立第三亀戸中学校 280m
■亀戸出張所 500m
■錦糸公園 400m
■東京都立墨東病院 350m
■TERMINA(テルミナ) 650m
現況 空室 入居/引渡時期 即時
更新日 2026年3月10日

備考

部屋設備

  • バス・トイレ別
  • 独立洗面台
  • 追い焚き
  • 温水洗浄便座
  • 浴室乾燥機
  • システムキッチン
  • カウンターキッチン
  • 食器洗浄機
  • 浄水器
  • ガスコンロ
  • エアコン
  • ウォークインクローゼット
  • フローリング
  • 南向き
  • リノベーション

建物設備

  • エレベーター
  • TVドアホン
  • 駐車場
  • バイク置き場
  • 駐輪場
  • 防犯カメラ
  • インターネット
  • ペット可
  • フラット35

コープ野村亀戸西棟 2階のローンシミュレーション

借入金額
6,480
頭金
0万円
毎月の返済額
頭金
  • 支払い額万円※半角数字
金利
  • %※半角数字
返済年数
  • ※元利均等返済方式、最大優遇の場合で計算しています。
  • ※融資には個別審査があり、審査結果により、貸出条件(金利・貸出期間・借入額)が異なる場合がございます。
  • ※不動産のご購入に際しましては物件価格以外にその他諸費用が必要となります。
    諸費用に関する詳細につきましてはお問い合わせ下さいませ。

周辺地図

※建物周辺情報はGoogleMapを使用しており、実際とは若干異なる場合がございます。

掲載情報について

  • ※本掲載情報と現況に差異がある場合、現況を優先いたします。
  • ※掲載物件は売却済あるいは売出中止となる場合もあります。
  • ※掲載写真やパース(絵)、または間取図に描かれている家具や車などは、価格に含まれておりません。また、過去に撮影したものをそのまま利用している場合があり、名称・外観・背景等、実際のものとは異なる場合がございます。予めご了承ください。
  • ※仲介物件には所定の仲介手数料(消費税等相当額を含みます)が必要です。
2冠達成 恵比寿不動産は物件数No.1 中古マンション数No.1

コープ野村亀戸西棟 2階の
購入に関するお問い合わせはこちらから

contact us

恵比寿不動産までお気軽にお問い合わせください

お電話でのお問い合わせはこちら:03-6421-0543 10:00 - 19:00 (水曜定休)
恵比寿不動産店舗情報渋谷区東3-25-11 TOKYU REIT恵比寿ビル4階
オフィス内観写真
オフィス外観写真

部屋一覧

売出し待ちお知らせ希望 未公開情報の確認 お問い合わせ
所在階 間取り 専有面積 価格 お気に入り お問い合わせ 詳細
新着
2F
リノベ
3LDK
72.00m2 6,480
お問い合わせ
詳細を見る

最近見た物件

ソプラタワーおすすめ画像

ソプラタワー 14階

15,980

  • 東京都目黒区青葉台3丁目7-17
  • 東急田園都市線「池尻大橋駅」徒歩9分
    京王井の頭線「神泉駅」徒歩13分
  • 2LDK  71.99m2
北砂四丁目住宅おすすめ画像

北砂四丁目住宅 7階

3,480

  • 東京都江東区北砂4-19-30
  • 東京メトロ東西線「南砂町駅」徒歩15分
  • 2LDK  58.59m2
クレストコート杉並宮前おすすめ画像

クレストコート杉並宮前 3階

7,980

  • 東京都杉並区宮前1-15-1
  • 京王井の頭線「富士見ヶ丘駅」徒歩10分
    京王井の頭線「久我山駅」徒歩15分
  • 3LDK  70.22m2