ライオンズマンション護国寺第3 7階

  • 総合トップ
  • 中古マンション
  • 一戸建て・土地
  • 投資・収益物件
  • 売りたい[売却査定]
  • 貸したい[賃料査定]

ライオンズマンション護国寺第3 7階
新着

価格
8,498
毎月の返済額
(目安)
loansimulationIcon
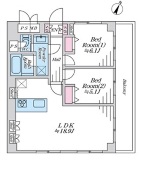
築年月 1984年6月 間取り 2LDK
専有面積 66.78m2 所在階 7階
方角 北東
所在地 東京都文京区音羽2-11-21
交通 東京メトロ有楽町線「護国寺駅」徒歩1分
東京メトロ丸ノ内線「新大塚駅」徒歩15分

7階部分、北東向き角部屋!リノベーション物件!

【特徴・設備】
■全室窓あり
■二面採光
■家具の配置がしやすい間取り
■カウンターキッチン
■3口ガスコンロ
■収納豊富
■独立洗面台
■室内洗濯置き場あり

2冠達成 恵比寿不動産は物件数No.1 中古マンション数No.1

ライオンズマンション護国寺第3 7階の
購入に関するお問い合わせはこちらから

contact us

恵比寿不動産までお気軽にお問い合わせください

お電話でのお問い合わせはこちら:03-6421-0543 10:00 - 19:00 (水曜定休)
恵比寿不動産店舗情報渋谷区東3-25-11 TOKYU REIT恵比寿ビル4階
オフィス内観写真
オフィス外観写真
リフォーム無料お見積りサービス

物件概要

物件名 ライオンズマンション護国寺第3
所在地
交通
問合せ番号 10779-701
物件特徴 -
物件条件 -
価格 8,498 管理費 19,400円/月
修繕積立金 20,770円/月 その他費用 -
間取り 2LDK 方角 北東
専有面積 66.78m2 バルコニー面積 10.8m2
建物構造 SRC 築年月 1984年6月
総戸数 71戸 総階数 地上12階 
駐車場 なし バイク置き場 -
駐輪場 - 土地権利 所有権
用途地域 商業地域  管理形態 日勤管理
管理会社 株式会社大京アステージ 分譲会社 大京観光
施工会社 熊谷組 設計会社 赤坂建築設計事務所
取引態様 仲介 小学校学区 -
周辺情報 ■ファミリーマート音羽2丁目店  徒歩2分
■マルエツプチ護国寺駅前     徒歩1分
■まいばすけっと目白台3丁目店  徒歩10分
■関口台公園           徒歩9分
■友成第二医院          徒歩5分          
■テンダーラビング保育園音羽   徒歩5分
■音羽幼稚園           徒歩4分
■青柳小学校           徒歩5分
■音羽中学校           徒歩9分
現況 空室 入居/引渡時期 相談
更新日 2026年4月25日

備考

部屋設備

  • バス・トイレ別
  • 独立洗面台
  • 追い焚き
  • 温水洗浄便座
  • 浴室乾燥機
  • システムキッチン
  • カウンターキッチン
  • 食器洗浄機
  • 浄水器
  • ガスコンロ
  • エアコン
  • フローリング
  • 角部屋
  • リノベーション

建物設備

  • エレベーター
  • オートロック

ライオンズマンション護国寺第3 7階のローンシミュレーション

借入金額
8,498
頭金
0万円
毎月の返済額
頭金
  • 支払い額万円※半角数字
金利
  • %※半角数字
返済年数
  • ※元利均等返済方式、最大優遇の場合で計算しています。
  • ※融資には個別審査があり、審査結果により、貸出条件(金利・貸出期間・借入額)が異なる場合がございます。
  • ※不動産のご購入に際しましては物件価格以外にその他諸費用が必要となります。
    諸費用に関する詳細につきましてはお問い合わせ下さいませ。

周辺地図

※建物周辺情報はGoogleMapを使用しており、実際とは若干異なる場合がございます。

掲載情報について

  • ※本掲載情報と現況に差異がある場合、現況を優先いたします。
  • ※掲載物件は売却済あるいは売出中止となる場合もあります。
  • ※掲載写真やパース(絵)、または間取図に描かれている家具や車などは、価格に含まれておりません。また、過去に撮影したものをそのまま利用している場合があり、名称・外観・背景等、実際のものとは異なる場合がございます。予めご了承ください。
  • ※仲介物件には所定の仲介手数料(消費税等相当額を含みます)が必要です。
2冠達成 恵比寿不動産は物件数No.1 中古マンション数No.1

ライオンズマンション護国寺第3 7階の
購入に関するお問い合わせはこちらから

contact us

恵比寿不動産までお気軽にお問い合わせください

お電話でのお問い合わせはこちら:03-6421-0543 10:00 - 19:00 (水曜定休)
恵比寿不動産店舗情報渋谷区東3-25-11 TOKYU REIT恵比寿ビル4階
オフィス内観写真
オフィス外観写真

部屋一覧

売出し待ちお知らせ希望 未公開情報の確認 お問い合わせ
所在階 間取り 専有面積 価格 お気に入り お問い合わせ 詳細
新着
7F
リノベ
2LDK
66.78m2 8,498
お問い合わせ
詳細を見る