21階部分、南西向き住戸!
【特徴・設備】
■全室窓あり
■家具の配置がしやすい間取り
■カウンターキッチン
■3口ガスコンロ
■収納豊富
■独立洗面台
■室内洗濯置き場あり
| 価格 | 2億1,500万円 |
毎月の返済額 (目安) |
|
|---|---|---|---|
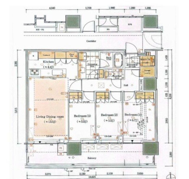
| 築年月 | 2023年11月 | 間取り | 3LDK+SIC |
| 専有面積 | 83.20m2 | 所在階 | 21階 |
| 方角 | 南西 | ||
| 所在地 | 東京都中央区晴海5-5-1 | ||
| 交通 | 都営大江戸線「勝どき駅」徒歩18分 | ||
【特徴・設備】
■全室窓あり
■家具の配置がしやすい間取り
■カウンターキッチン
■3口ガスコンロ
■収納豊富
■独立洗面台
■室内洗濯置き場あり

| 物件名 | 晴海フラッグサンビレッジ | ||
|---|---|---|---|
| 所在地 | 東京都中央区晴海5-5-1 | ||
| 交通 |
都営大江戸線「勝どき駅」徒歩18分 |
||
| 問合せ番号 | 10837-21F | ||
| 物件特徴 | 大規模マンション | ||
| 物件条件 | ペット可 | ||
| 価格 | 2億1,500万円 | 管理費 | 32,110円/月 |
| 修繕積立金 | 16,220円/月 | その他費用 | 3,350円/月 |
| 間取り | 3LDK | 方角 | 南西 |
| 専有面積 | 83.20m2 | バルコニー面積 | 19.47m2 |
| 建物構造 | RC | 築年月 | 2023年11月 |
| 総戸数 | 194戸 | 総階数 | 地上18階 |
| 駐車場 | あり | バイク置き場 | - |
| 駐輪場 | - | 土地権利 | 所有権 |
| 用途地域 | 商業地域 | 管理形態 | 日勤管理 |
| 管理会社 | 三井不動産レジデンシャルサービス(株) | 分譲会社 | 三菱地所レジデンス、野村不動産、 住友不動産 |
| 施工会社 | 前田建設工業 | 設計会社 | 三菱地所設計、 前田建設工業 |
| 取引態様 | 仲介 | 小学校学区 | - |
| 周辺情報 | ■マルエツ勝どき六丁目店(スーパー)まで約6分 ■ファミリーマートHARUMI FLAG店(コンビニ)まで約3分 ■さくら薬局豊海店(ドラッグストア)まで約4分 |
||
| 現況 | 空室 | 入居/引渡時期 | 即時 |
| 更新日 | 2026年1月10日 | ||
| 頭金 |
|
|---|---|
| 金利 |
|
| 返済年数 | 年 |
※建物周辺情報はGoogleMapを使用しており、実際とは若干異なる場合がございます。
掲載情報について

室内写真 物件画像1