晴海フラッグサンビレッジ 17階

  • 総合トップ
  • 中古マンション
  • 一戸建て・土地
  • 投資・収益物件
  • 売りたい[売却査定]
  • 貸したい[賃料査定]

晴海フラッグサンビレッジ 17階

価格
23,800
毎月の返済額
(目安)
loansimulationIcon
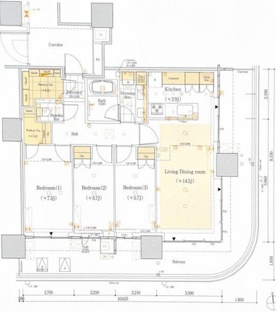
築年月 2023年11月 間取り 3LDK+SIC+WIC
専有面積 86.15m2 所在階 17階
方角
所在地 東京都中央区晴海5-5-1
交通 都営大江戸線「勝どき駅」徒歩18分

17階部分、南向き角部屋!新築未入居!

【特徴・設備】
■L字型バルコニー
■全室窓あり
■二面採光
■家具の配置がしやすい間取り
■カウンターキッチン
■3口ガスコンロ
■WICがあり収納豊富
■独立洗面台
■室内洗濯置き場あり

2冠達成 恵比寿不動産は物件数No.1 中古マンション数No.1

晴海フラッグサンビレッジ 17階の
購入に関するお問い合わせはこちらから

contact us

恵比寿不動産までお気軽にお問い合わせください

お電話でのお問い合わせはこちら:03-6421-0543 10:00 - 19:00 (水曜定休)
恵比寿不動産店舗情報渋谷区東3-25-11 TOKYU REIT恵比寿ビル4階
オフィス内観写真
オフィス外観写真
リフォーム無料お見積りサービス

物件概要

物件名 晴海フラッグサンビレッジ
所在地
交通
問合せ番号 10837-17F
物件特徴 大規模マンション
物件条件 ペット可
価格 23,800 管理費 33,260円/月
修繕積立金 16,800円/月 その他費用 -
間取り 3LDK 方角
専有面積 86.15m2 バルコニー面積 38.56m2
建物構造 RC 築年月 2023年11月
総戸数 194戸 総階数 地上18階 
駐車場 あり バイク置き場 -
駐輪場 - 土地権利 所有権
用途地域 商業地域  管理形態 日勤管理
管理会社 三井不動産レジデンシャルサービス(株) 分譲会社 三菱地所レジデンス、野村不動産、 住友不動産
施工会社 前田建設工業 設計会社 三菱地所設計、 前田建設工業
取引態様 仲介 小学校学区 -
周辺情報 ■マルエツ勝どき六丁目店(スーパー)まで約6分
■ファミリーマートHARUMI FLAG店(コンビニ)まで約3分
■さくら薬局豊海店(ドラッグストア)まで約4分
現況 空室 入居/引渡時期 即時
更新日 2025年12月2日

備考

インターネット使用料:2,200円/月
HARUMI FLAG CLUB会費:500円/月
共視聴設備利用料:550円/月

部屋設備

  • バス・トイレ別
  • 独立洗面台
  • 追い焚き
  • 温水洗浄便座
  • 浴室乾燥機
  • システムキッチン
  • カウンターキッチン
  • 食器洗浄機
  • 浄水器
  • ガスコンロ
  • エアコン
  • シューズインクローゼット
  • ウォークインクローゼット
  • フローリング
  • 角部屋
  • 南向き
  • リノベーション

建物設備

  • エレベーター
  • オートロック
  • 宅配ボックス
  • TVドアホン
  • 駐車場
  • 防犯カメラ
  • ペット可

晴海フラッグサンビレッジ 17階のローンシミュレーション

借入金額
23,800
頭金
0万円
毎月の返済額
頭金
  • 支払い額万円※半角数字
金利
  • %※半角数字
返済年数
  • ※元利均等返済方式、最大優遇の場合で計算しています。
  • ※融資には個別審査があり、審査結果により、貸出条件(金利・貸出期間・借入額)が異なる場合がございます。
  • ※不動産のご購入に際しましては物件価格以外にその他諸費用が必要となります。
    諸費用に関する詳細につきましてはお問い合わせ下さいませ。

周辺地図

※建物周辺情報はGoogleMapを使用しており、実際とは若干異なる場合がございます。

掲載情報について

  • ※本掲載情報と現況に差異がある場合、現況を優先いたします。
  • ※掲載物件は売却済あるいは売出中止となる場合もあります。
  • ※掲載写真やパース(絵)、または間取図に描かれている家具や車などは、価格に含まれておりません。また、過去に撮影したものをそのまま利用している場合があり、名称・外観・背景等、実際のものとは異なる場合がございます。予めご了承ください。
  • ※仲介物件には所定の仲介手数料(消費税等相当額を含みます)が必要です。
2冠達成 恵比寿不動産は物件数No.1 中古マンション数No.1

晴海フラッグサンビレッジ 17階の
購入に関するお問い合わせはこちらから

contact us

恵比寿不動産までお気軽にお問い合わせください

お電話でのお問い合わせはこちら:03-6421-0543 10:00 - 19:00 (水曜定休)
恵比寿不動産店舗情報渋谷区東3-25-11 TOKYU REIT恵比寿ビル4階
オフィス内観写真
オフィス外観写真

部屋一覧

売出し待ちお知らせ希望 未公開情報の確認 お問い合わせ
所在階 間取り 専有面積 価格 お気に入り お問い合わせ 詳細
改定
9F
リノベ
3LDK
83.20m2 16,500
お問い合わせ
詳細を見る
新着
12F
3LDK 82.84m2 13,200
お問い合わせ
詳細を見る
新着
13F
3LDK 72.84m2 12,100
お問い合わせ
詳細を見る
改定
14F
2LDK 61.18m2 12,180
お問い合わせ
詳細を見る
15F
リノベ
3LDK
84.20m2 21,800
お問い合わせ
詳細を見る
16F 3LDK 74.12m2 16,480
お問い合わせ
詳細を見る
17F
リノベ
3LDK
86.15m2 23,800
お問い合わせ
詳細を見る
17F
リノベ
3LDK
77.85m2 17,800
お問い合わせ
詳細を見る
21F
リノベ
3LDK
83.20m2 21,500
お問い合わせ
詳細を見る
22F 2LDK 62.56m2 15,800
お問い合わせ
詳細を見る
改定
22F
3LDK 71.51m2 16,780
お問い合わせ
詳細を見る
24F 1LDK 49.38m2 11,890
お問い合わせ
詳細を見る
35F 3LDK 73.53m2 2480
お問い合わせ
詳細を見る
37F 3LDK 71.51m2 18,210
お問い合わせ
詳細を見る
新着
40F
リノベ
2LDK
66.00m2 16,500
お問い合わせ
詳細を見る
新着
41F
リノベ
2LDK
66.00m2 16,800
お問い合わせ
詳細を見る
43F 3LDK 86.88m2 38,000
お問い合わせ
詳細を見る

その他7件を表示

最近見た物件

シティタワー武蔵小杉おすすめ画像

シティタワー武蔵小杉 23階

***

  • 神奈川県川崎市中原区市ノ坪449-3
  • 東急東横線「武蔵小杉駅」徒歩4分
    東急目黒線「武蔵小杉駅」徒歩4分
  • 2LDK  71.78m2
画像準備中

菱和パレス池袋駅前 6階

5,980

  • 東京都豊島区西池袋2-42-3
  • JR山手線「池袋駅」徒歩3分
    西武池袋線「池袋駅」徒歩3分
  • 1LDK  34.74m2
グランヴァーレ荏原東おすすめ画像

グランヴァーレ荏原東 3階

3,080

  • 東京都品川区荏原5-8-6
  • 東急目黒線「西小山駅」徒歩6分
    東急目黒線「武蔵小山駅」徒歩10分
  • 1R  54.68m2
外観

ライオンズプラザ池田山 10階

1780

  • 東京都品川区東五反田4‐10‐16
  • JR山手線「五反田駅」徒歩2分
    都営浅草線「五反田駅」徒歩2分
  • 2LDK  53.73m2
晴海フラッグサンビレッジおすすめ画像

晴海フラッグサンビレッジ 13階

12,100

  • 東京都中央区晴海5-5-1
  • 都営大江戸線「勝どき駅」徒歩18分
  • 3LDK  72.84m2
馬事公苑前シティハウスおすすめ画像

馬事公苑前シティハウス 3階

5,780

  • 東京都世田谷区桜3-17-11
  • 小田急線「千歳船橋駅」徒歩18分
    東急世田谷線「上町駅」徒歩19分
  • 3LDK  70.63m2