エンゼルハイム大森本町第2 12階

  • 総合トップ
  • 中古マンション
  • 一戸建て・土地
  • 投資・収益物件
  • 売りたい[売却査定]
  • 貸したい[賃料査定]

エンゼルハイム大森本町第2 12階
改定

価格
5,999
毎月の返済額
(目安)
loansimulationIcon
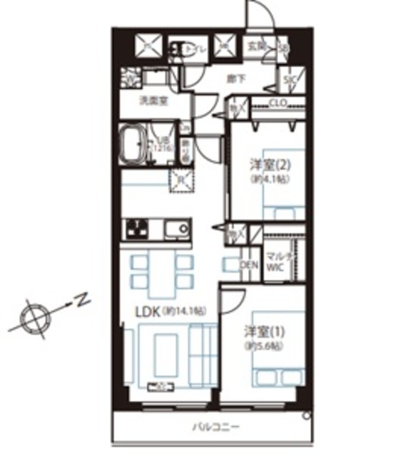
築年月 1982年8月 間取り 2LDK+WIC
専有面積 59.92m2 所在階 12階
方角 南東
所在地 東京都大田区大森本町2-4-20
交通 京急本線「平和島駅」徒歩2分
JR京浜東北線「大森駅」徒歩21分

12階部分、南東向き住戸!リノベーション物件!

【特徴・設備】
■LDK・洋室1は窓あり
■家具の配置がしやすい間取り
■カウンターキッチン
■3口ガスコンロ
■WICがあり収納豊富
■独立洗面台
■室内洗濯置き場あり
■アフターサービス保証付

【リノベーション内容】
□床クロス
□洗面
□トイレ
□キッチン
□ユニットバス
□建具
□新規エアコン設置(1台) 等

2冠達成 恵比寿不動産は物件数No.1 中古マンション数No.1

エンゼルハイム大森本町第2 12階の
購入に関するお問い合わせはこちらから

contact us

恵比寿不動産までお気軽にお問い合わせください

お電話でのお問い合わせはこちら:03-6421-0543 10:00 - 19:00 (水曜定休)
恵比寿不動産店舗情報渋谷区東3-25-11 TOKYU REIT恵比寿ビル4階
オフィス内観写真
オフィス外観写真
リフォーム無料お見積りサービス

物件概要

物件名 エンゼルハイム大森本町第2
所在地
交通
問合せ番号 11001- 1203
物件特徴 大規模マンション
物件条件 ペット可
価格 5,999 管理費 10,500円/月
修繕積立金 12,580円/月 その他費用 -
間取り 2LDK 方角 南東
専有面積 59.92m2 バルコニー面積 5.6m2
建物構造 SRC 築年月 1982年8月
総戸数 106戸 総階数 地上14階 
駐車場 月額/25,000円 バイク置き場 -
駐輪場 月額/500円 2台目以降1,000円 土地権利 -
用途地域 商業地域  管理形態 日勤管理
管理会社 ナイスコミュニティー株式会社 分譲会社 日榮建設工業(株)
施工会社 日榮建設工業(株) 設計会社 -
取引態様 仲介 小学校学区 -
周辺情報 ■京急ストア           約200m(徒歩3分)
■まいばすけっと         約407m(徒歩6分)
■セブンイレブン         約180m(徒歩3分)
■ローソン            約260m(徒歩4分)
■ファミリーマート        約240m(徒歩3分)
■ドン・キホーテBIGFUN平和島店 約830m(徒歩11分)
■平和の森公園          約300m(徒歩4分)
■大森ふるさとの浜辺公園     約1.2km(徒歩15分)
■しながわ水族館         約1.3km(徒歩16分)
現況 空室 入居/引渡時期 即時
更新日 2026年2月28日

備考

部屋設備

  • バス・トイレ別
  • 独立洗面台
  • 追い焚き
  • 温水洗浄便座
  • 浴室乾燥機
  • システムキッチン
  • カウンターキッチン
  • 食器洗浄機
  • 浄水器
  • ガスコンロ
  • 床暖房
  • エアコン
  • ウォークインクローゼット
  • フローリング
  • 南向き
  • リノベーション

建物設備

  • エレベーター
  • 駐車場
  • 駐輪場
  • ペット可

エンゼルハイム大森本町第2 12階のローンシミュレーション

借入金額
5,999
頭金
0万円
毎月の返済額
頭金
  • 支払い額万円※半角数字
金利
  • %※半角数字
返済年数
  • ※元利均等返済方式、最大優遇の場合で計算しています。
  • ※融資には個別審査があり、審査結果により、貸出条件(金利・貸出期間・借入額)が異なる場合がございます。
  • ※不動産のご購入に際しましては物件価格以外にその他諸費用が必要となります。
    諸費用に関する詳細につきましてはお問い合わせ下さいませ。

周辺地図

※建物周辺情報はGoogleMapを使用しており、実際とは若干異なる場合がございます。

掲載情報について

  • ※本掲載情報と現況に差異がある場合、現況を優先いたします。
  • ※掲載物件は売却済あるいは売出中止となる場合もあります。
  • ※掲載写真やパース(絵)、または間取図に描かれている家具や車などは、価格に含まれておりません。また、過去に撮影したものをそのまま利用している場合があり、名称・外観・背景等、実際のものとは異なる場合がございます。予めご了承ください。
  • ※仲介物件には所定の仲介手数料(消費税等相当額を含みます)が必要です。
2冠達成 恵比寿不動産は物件数No.1 中古マンション数No.1

エンゼルハイム大森本町第2 12階の
購入に関するお問い合わせはこちらから

contact us

恵比寿不動産までお気軽にお問い合わせください

お電話でのお問い合わせはこちら:03-6421-0543 10:00 - 19:00 (水曜定休)
恵比寿不動産店舗情報渋谷区東3-25-11 TOKYU REIT恵比寿ビル4階
オフィス内観写真
オフィス外観写真

部屋一覧

売出し待ちお知らせ希望 未公開情報の確認 お問い合わせ
所在階 間取り 専有面積 価格 お気に入り お問い合わせ 詳細
改定
12F
リノベ
2LDK
59.92m2 5,999
お問い合わせ
詳細を見る