2階部分、南向き角部屋!新規リノベーション物件!
【特徴・設備】
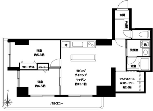
■陽当り良好
■L字型バルコニー
■全室窓あり
■家具の配置がしやすい間取り
■カウンターキッチン
■2口ガスコンロ
■収納豊富
■独立洗面台
■室内洗濯置き場あり
【新規リノベーション内容】※2025年2月10日完了
□ユニットバス(追焚・換気乾燥暖房機付)
□食洗機付システムキッチン
□防水パン
□フローリング・フロアタイル張替
□建具
□収納
□照明器具取付
□温水洗浄便座付トイレ
□全室天井・壁クロス
□給水給湯管(専有部分)
□クリーニング 等
