パレ・プラス大井町 1階

  • 総合トップ
  • 中古マンション
  • 一戸建て・土地
  • 投資・収益物件
  • 売りたい[売却査定]
  • 貸したい[賃料査定]

パレ・プラス大井町 1階
改定

価格
7,580
毎月の返済額
(目安)
loansimulationIcon
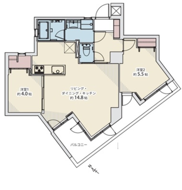
築年月 1995年10月 間取り 2LDK
専有面積 54.96m2 所在階 1階
方角 南西
所在地 東京都品川区東大井3-7-8
交通 JR京浜東北線「大井町駅」徒歩8分
東急大井町線「大井町駅」徒歩8分

1階部分、南西向き角部屋!リノベーション物件!

【特徴・設備】
■全室窓あり
■家具の配置がしやすい間取り
■カウンターキッチン
■3口ガスコンロ
■収納あり
■独立洗面台
■室内洗濯置き場あり
■アフターサービス保証付

2冠達成 恵比寿不動産は物件数No.1 中古マンション数No.1

パレ・プラス大井町 1階の
購入に関するお問い合わせはこちらから

contact us

恵比寿不動産までお気軽にお問い合わせください

お電話でのお問い合わせはこちら:03-6421-0543 10:00 - 19:00 (水曜定休)
恵比寿不動産店舗情報渋谷区東3-25-11 TOKYU REIT恵比寿ビル4階
オフィス内観写真
オフィス外観写真
リフォーム無料お見積りサービス

物件概要

物件名 パレ・プラス大井町
所在地
交通
問合せ番号 11075-106
物件特徴 -
物件条件 -
価格 7,580 管理費 17,420円/月
修繕積立金 28,200円/月 その他費用 -
間取り 2LDK 方角 南西
専有面積 54.96m2 バルコニー面積 10.85m2
建物構造 RC 築年月 1995年10月
総戸数 41戸 総階数 地上5階 
駐車場 分譲駐車場のみ バイク置き場 月額2,000円~2,500円(ステッカー貼付)
駐輪場 1台目 無料
2台目以降 月額200円(ステッカー貼付)
土地権利 所有権
用途地域 第一種中高層住居専用地域 管理形態 日勤管理
管理会社 日本ハウズイング株式会社 分譲会社 タケツー 、ハイエリア
施工会社 佐田建設 設計会社 アーキプラン
取引態様 仲介 小学校学区 立会小学校
周辺情報 ■東大井公園・・・・・・・・・・・・・・・・・徒歩5分
■アトレ大井町・・・・・・・・・・・・・・・徒歩15分
■阪急大井町ガーデン・・・・・・・・・徒歩12分
■ヤマダデンキ 品川大井町店・・徒歩11分
■品川区立立会小学校・・・・・・・・・徒歩4分
■品川区立浜川中学校・・・・・・・・・徒歩3分
現況 空室 入居/引渡時期 相談
更新日 2026年3月24日

備考

部屋設備

  • バス・トイレ別
  • 独立洗面台
  • 追い焚き
  • 温水洗浄便座
  • 浴室乾燥機
  • システムキッチン
  • カウンターキッチン
  • 食器洗浄機
  • 浄水器
  • ガスコンロ
  • エアコン
  • フローリング
  • 角部屋
  • 南向き
  • リノベーション

建物設備

  • エレベーター
  • オートロック
  • 駐車場
  • バイク置き場
  • 駐輪場
  • CATV
  • インターネット
  • 閑静な住宅街

パレ・プラス大井町 1階のローンシミュレーション

借入金額
7,580
頭金
0万円
毎月の返済額
頭金
  • 支払い額万円※半角数字
金利
  • %※半角数字
返済年数
  • ※元利均等返済方式、最大優遇の場合で計算しています。
  • ※融資には個別審査があり、審査結果により、貸出条件(金利・貸出期間・借入額)が異なる場合がございます。
  • ※不動産のご購入に際しましては物件価格以外にその他諸費用が必要となります。
    諸費用に関する詳細につきましてはお問い合わせ下さいませ。

周辺地図

※建物周辺情報はGoogleMapを使用しており、実際とは若干異なる場合がございます。

掲載情報について

  • ※本掲載情報と現況に差異がある場合、現況を優先いたします。
  • ※掲載物件は売却済あるいは売出中止となる場合もあります。
  • ※掲載写真やパース(絵)、または間取図に描かれている家具や車などは、価格に含まれておりません。また、過去に撮影したものをそのまま利用している場合があり、名称・外観・背景等、実際のものとは異なる場合がございます。予めご了承ください。
  • ※仲介物件には所定の仲介手数料(消費税等相当額を含みます)が必要です。
2冠達成 恵比寿不動産は物件数No.1 中古マンション数No.1

パレ・プラス大井町 1階の
購入に関するお問い合わせはこちらから

contact us

恵比寿不動産までお気軽にお問い合わせください

お電話でのお問い合わせはこちら:03-6421-0543 10:00 - 19:00 (水曜定休)
恵比寿不動産店舗情報渋谷区東3-25-11 TOKYU REIT恵比寿ビル4階
オフィス内観写真
オフィス外観写真

部屋一覧

売出し待ちお知らせ希望 未公開情報の確認 お問い合わせ
所在階 間取り 専有面積 価格 お気に入り お問い合わせ 詳細
改定
1F
リノベ
2LDK
54.96m2 7,580
お問い合わせ
詳細を見る

最近見た物件

画像準備中

ラミアール鶯谷駅前 1階

5,980

  • 東京都台東区根岸1-6-11
  • JR山手線「鶯谷駅」徒歩2分
    東京メトロ日比谷線「入谷駅」徒歩10分
  • 3LDK  58.68m2
画像準備中

プレール・ドゥーク浅草松が谷 9階

***

  • 東京都台東区松が谷1-10-10
  • 東京メトロ銀座線「田原町駅」徒歩5分
    東京メトロ銀座線「稲荷町駅」徒歩8分
  • 1LDK  41.13m2
藤和西新宿コープおすすめ画像

藤和西新宿コープ 6階

***

  • 東京都新宿区西新宿4-40-6
  • 京王新線「初台駅」徒歩6分
    都営大江戸線「西新宿五丁目駅」徒歩7分
  • 2LDK  47.74m2
メインステージ入谷2おすすめ画像

メインステージ入谷2 13階

***

  • 東京都台東区竜泉1-13-2
  • 東京メトロ日比谷線「入谷駅」徒歩4分
    東京メトロ日比谷線「三ノ輪駅」徒歩10分
  • 2LDK  59.70m2
画像準備中

オープンレジデンシア文京西片 2階

***

  • 東京都文京区西片1-10-162
  • 都営三田線「春日駅」徒歩5分
    都営大江戸線「春日駅」徒歩5分
  • 2LDK  50.61m2
ライオンズマンション菊川おすすめ画像

ライオンズマンション菊川 7階

***

  • 東京都墨田区菊川1-10-2
  • 都営新宿線「菊川駅」徒歩3分
    都営新宿線「森下駅」徒歩7分
  • 1LDK  40.77m2